Preferiti

Sponsorizza

Stampa

Appartamento bilocale in vendita nuovo a Roma

  • 450.000€
  • 2 locali
  • 54 mq
  • Vendesi

Ancora non ha trovato un bilocale inzona? Probabilmente quanto segue potr essere di Suo interesse.
Soggiorno con angolo cottura e zona notte in vendita in Via Germanico, nel cuore del quartiere Prati, sicuramente la zona pi vivace di Roma. Questo quartiere fu costituito ufficialmente nell'agosto del 1921. Una delle sue particolarit che limpianto urbanistico stradale fu progettato in modo tale che nessuna delle nuove vie avesse come sfondo la cupola della Basilica di San Pietro, poich i rapporti tra il nuovo Stato italiano e la Santa Sede a quei tempi erano tesi. Per questo motivo, i nomi delle vie del nuovo rione furono scelti tra personaggi storici della Roma repubblicana e imperiale.
Ad uno di questi personaggi fa riferimento la nota Via Germanico, che collega Via Leone IV con Piazza dei Quiriti.
Allaltezza di Via Fabio Massimo, in uno stabile storico dotato di ascensore, si trova una propriet che l'agenzia immobiliare Grimaldi Roma Prati ha il piacere di presentarLe.
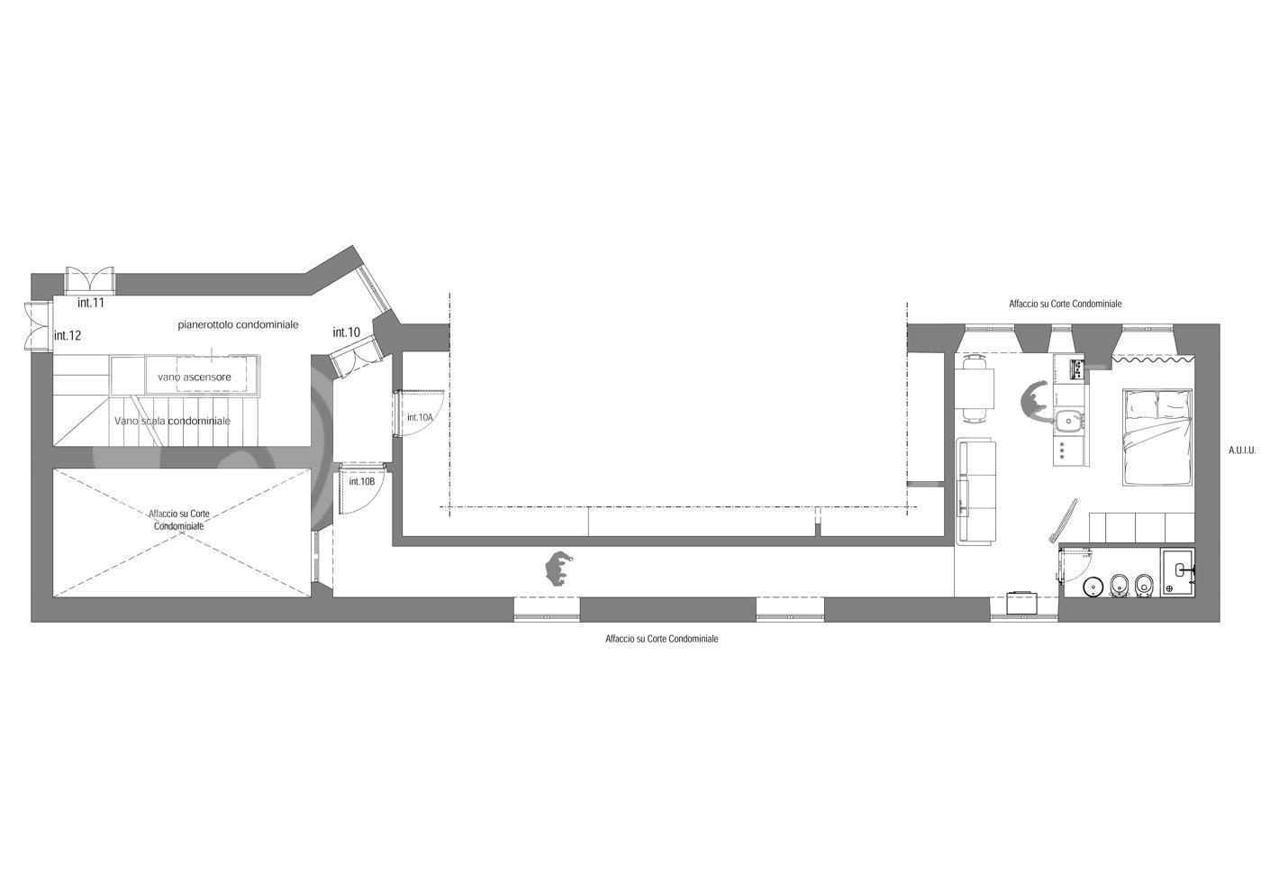
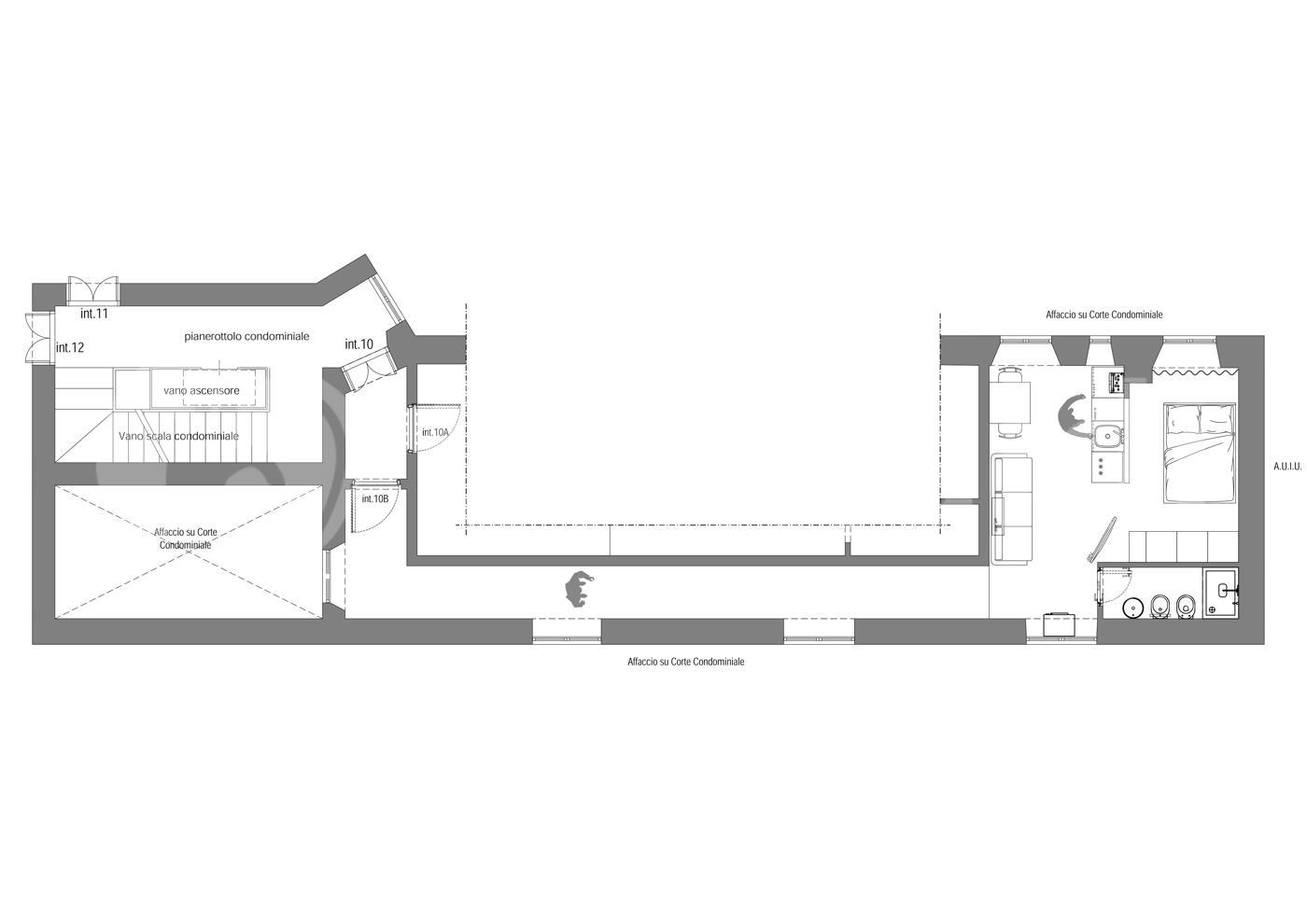
Limmobile sito al quarto piano e si sviluppa su una superficie catastale di circa 54 mq. Appena si entra un lungo corridoio, che come una galleria, collega l'ingresso dell' appartamento alla zona living.
Peculiarit la presenza di sette finestre che donano al appartamento un importante riscontro di luce e di aria. Alla fine di questo lungo corridoio troviamo quindi un soggiorno con angolo cottura con tre finestre, una zona notte dotata anche essa di finestra e un bagno cieco.
L'immobile verr consegnato finemente ristrutturato.
La propriet adatta anche come struttura ricettiva.
Il prezzo richiesto di euro 450.000 *Le presenti informazioni, planimetrie, immagini,video e descrizione immobile, sono meramente indicative e non costituiscono elementi contrattuali e sono da approfondire in sede di visita. Contatta l'inserzionista

Studio Fabio Massimo S.r.l.Studio Fabio Massimo S.r.l.
Via Fabio Massimo 66
, Roma (Roma)
Visualizza Telefono

INFORMAZIONI SULL'IMMOBILE

  • Riferimento: Cod. rif 3265544VRG
  • Tipologia: Appartamento in Vendita
  • Locali: 2 Locali ( 1 camera, cucina abitabile e un bagno)
  • Piano: Quarto
  • Stato: Nuovo
  • Prezzo: 450.000 €
  • Prezzo al mq: 8.333 €
  • Spazio Auto: No
  • Modificato il: 07/10/2025
  • Scheda: SC9473813

Stabile

  • Piano: 4
  • Classe Energetica: n.d.

Mappa e indirizzo

00135 Roma (Roma)
Prati, Borgo, Mazzini, Delle Vittorie
mappa mostra l'annuncio su mappa

Metropolitana
MA
Fermata Ottaviano a 310m
circa 5/7 min a piedi
Metropolitana
MA
Fermata Lepanto a 460m
circa 7/9 min a piedi

Galleria Fotografica

Contatta l'inserzionista

Studio Fabio Massimo S.r.l.

Studio Fabio Massimo S.r.l. di Roma propone in vendita questo immobile, contattali subito!

Annunci simili

Annunci immobiliari a Roma (RM)

Copyright Š 2026 PCase.it. All rights reserved. Sede operativa MILANO. P.IVA 08508420968 - Condizioni d'uso e privacy