Preferiti

Sponsorizza

Stampa

Appartamento bilocale in vendita da ristrutturare a Roma in piazza s. apollonia

  • trattativa riservata
  • 2 locali
  • 64 mq
  • Vendesi

Nel cuore di Trastevere, precisamente in Via del Moro, proponiamo in vendita un appartamento al primo piano di un incantevole palazzo d'epoca, privo di ascensore.
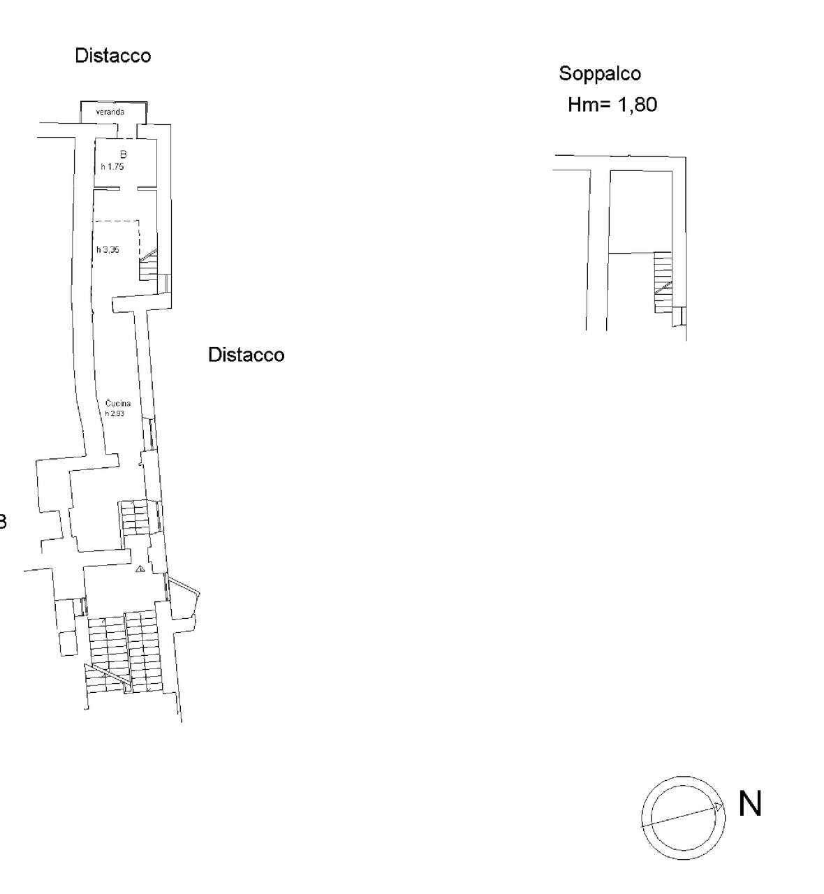
L'appartamento, che si sviluppa in lunghezza per un totale di 64 mq, è completamente da ristrutturare, offrendo la possibilità di ridisegnare gli spazi secondo le proprie esigenze.
Attualmente, la proprietà si compone di un ingresso, un ampio disimpegno raggiungibile salendo alcuni gradini, una cucina a vista lungo il corridoio, un soggiorno e un bagno.
La camera da letto si trova su un caratteristico soppalco.
Per chi desidera ampliare la metratura e le potenzialità dell'immobile, è disponibile, prezzo a parte, un'ulteriore unità di 156 mq da unire all'appartamento esistente.
Questa proprietà rappresenta un'opportunità unica per creare una residenza su misura nel cuore di uno dei quartieri più suggestivi e vivaci di Roma. (Cod.11964) Contatta l'inserzionista

INFORMAZIONI SULL'IMMOBILE

  • Riferimento: 11964
  • Tipologia: Appartamento in Vendita
  • Locali: 2 Locali ( 1 camera e un bagno)
  • Piano: Primo
  • Stato: da Ristrutturare
  • Spazio Auto: No
  • Modificato il: 02/04/2026
  • Scheda: SC9170930

Stabile

  • Piano: 1 su 5 totali
I.P.E.
1Kwh/m2
G

Mappa e indirizzo

Appartamento sito in piazza s. apollonia
00135 Roma (Roma)
Testaccio, Trastevere
mappa mostra l'annuncio su mappa

Galleria Fotografica

Contatta l'inserzionista

TFT BUILDING MANAGEMENT GEST. SERV. IMMOBILIARI

TFT BUILDING MANAGEMENT GEST. SERV. IMMOBILIARI di Roma propone in vendita questo immobile, contattali subito!

Annunci simili

Annunci immobiliari a Roma (RM)

Copyright Š 2026 PCase.it. All rights reserved. Sede operativa MILANO. P.IVA 08508420968 - Condizioni d'uso e privacy