Preferiti

Sponsorizza

Stampa

Attività commerciale in vendita a Grosseto in via matteotti

  • 270.000€
  • 120 mq
  • Vendesi

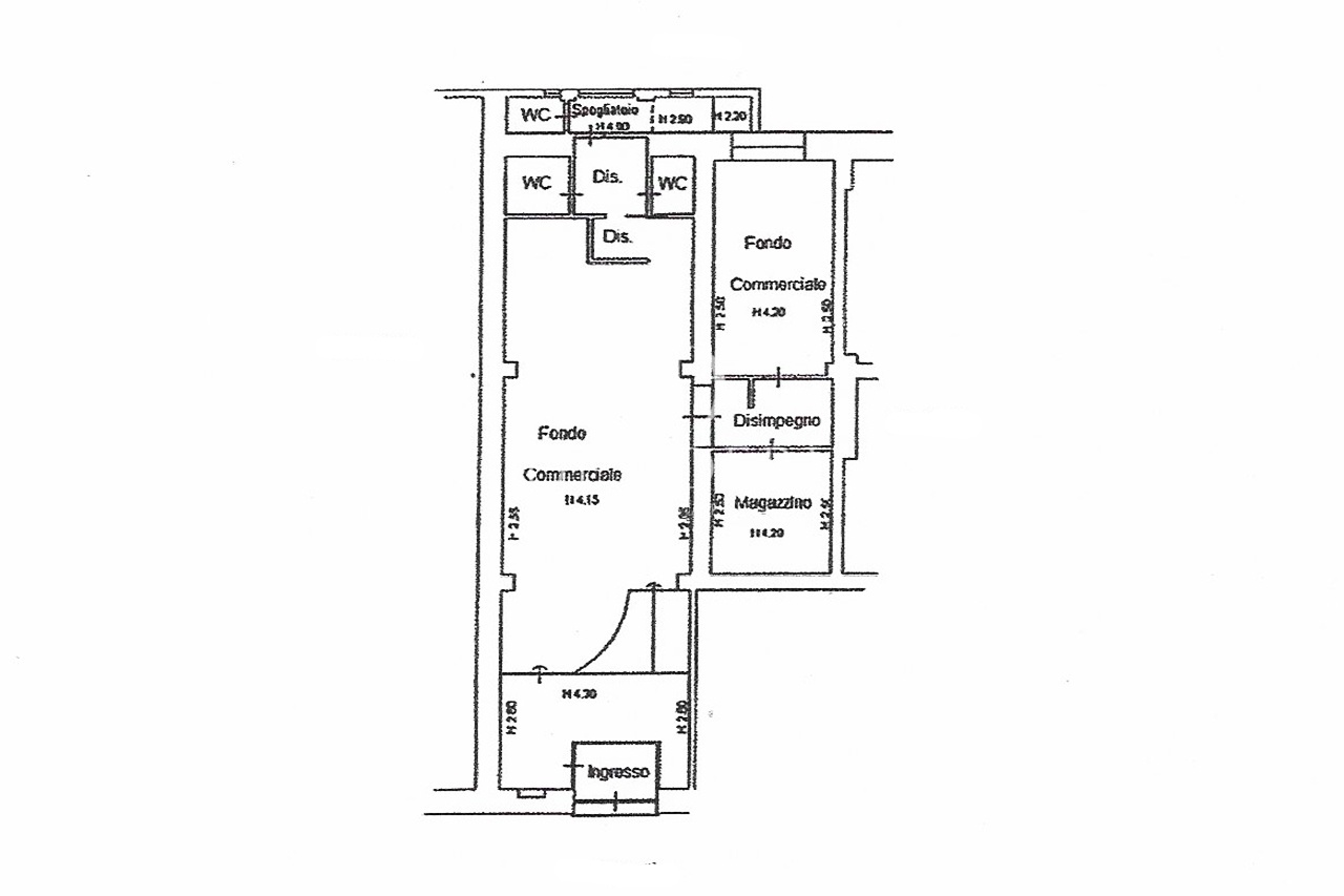
D/CD3547 - Nel centro strategico della città di Grosseto, adiacente piazza Rosselli, zona con alto passaggio veicolare e pedonale con nuove e importanti aperture di attività commerciali, si trova fondo commerciale in vendita, ristrutturato per uso ristorazione.
Il fondo è stato sempre rivisto nel tempo, si compone di ampia sala con magazzino e cucina, servizi per i clienti e per gli operanti nella attività. Impiantisticamente in ottimo stato. Contatta l'inserzionista

I DESIDERII DESIDERI
VIA RICASOLI 3
58100, Grosseto (Grosseto)
Visualizza Telefono

INFORMAZIONI SULL'IMMOBILE

  • Riferimento: D/CD3547_1
  • Tipologia: Attività commerciale in Vendita
  • Piano: Terra
  • Stato: Ottimo
  • Bagni: 2
  • Prezzo: 270.000 €
  • Prezzo al mq: 2.250 €
  • Riscaldamento: Autonomo
  • Spazio Auto: No
  • Cantina: Si
  • Modificato il: 04/03/2026
  • Scheda: SC9578309

Stabile

  • Piano: Terra su 4 totali
G

Mappa e indirizzo

Attività commerciale sito in via matteotti
58100 Grosseto (Grosseto)
Centro, Semi-Centro
mappa mostra l'annuncio su mappa

Galleria Fotografica

Contatta l'inserzionista

I DESIDERI

I DESIDERI di Grosseto propone in vendita questo immobile, contattali subito!

Annunci simili

Annunci immobiliari a Grosseto (GR)

Copyright © 2026 PCase.it. All rights reserved. Sede operativa MILANO. P.IVA 08508420968 - Condizioni d'uso e privacy