Preferiti

Sponsorizza

Stampa

Attività commerciale in vendita a Monteroni d'Arbia in monteroni d'arbia

  • 120.000€
  • 125 mq
  • Vendesi

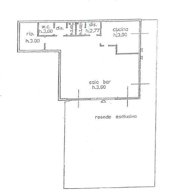
Monteroni d Arbia in strada di grande passaggio si vende fondo accatastato in c1 (negozi e botteghe) ad oggi adibito a bar con un contratto di affitto di circa 130 mq e con un grande resede esclusivo.
Per informazioni 338 5495159 Contatta l'inserzionista

AD Immobiliare di Brogi GianniAD Immobiliare di Brogi Gianni
VIA CASSIA NORD 22
53035, Monteriggioni (Siena)
Visualizza Telefono

INFORMAZIONI SULL'IMMOBILE

  • Riferimento: FV72
  • Tipologia: Attività commerciale in Vendita
  • Prezzo: 120.000 €
  • Prezzo al mq: 960 €
  • Riscaldamento: Autonomo
  • Modificato il: 26/11/2025
  • Scheda: SC9508493

Stabile

G

Galleria Fotografica

Contatta l'inserzionista

AD Immobiliare di Brogi Gianni

AD Immobiliare di Brogi Gianni di Monteriggioni propone in vendita questo immobile, contattali subito!

Annunci immobiliari a Monteroni d'Arbia (SI)

Copyright © 2026 PCase.it. All rights reserved. Sede operativa MILANO. P.IVA 08508420968 - Condizioni d'uso e privacy