Preferiti

Sponsorizza

Stampa

Attività commerciale in vendita a Maniago

  • trattativa riservata
  • Vendesi

AZIENDA AGRICOLA CON TERRENI E VIGNETI SM56 --Vendesi in un'unica soluzione importante compendio agricolo composto da terreni a seminativo e vigneti (Prosecco Doc e Pinot Grigio Doc) in corpo unico, con casa rurale e capannone agricolo interamente ristrutturato e completo di attrezzature.
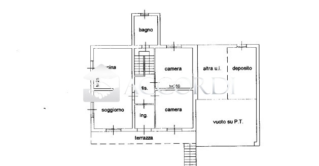
La proprietà comprende inoltre un'abitazione suddivisa in due appartamenti indipendenti di circa 80 mq ciascuno, ideale sia per uso familiare che per attività connesse all'azienda agricola.
Soluzione interessante per imprenditori agricoli o per chi desidera investire nel settore vitivinicolo o agrivoltaico.
La proprietà si distingue per l'eccellente stato di manutenzione e gestione, curata in ogni dettaglio.
Informazioni e prezzo su richiesta.
Si intende precisare che gli indirizzi presenti negli annunci non sono identificativi dell'ubicazione precisa dell'immobile, danno un riferimento solo generico della zona al cliente che ricerca, al fine di tutelare la privacy e riservatezza del venditore.
Per visionare l'immobile o per ricevere ulteriori informazioni contattateci: 0438.1962179.
- Le nostre sedi : Montebelluna (TV) - Maser (TV) - Conegliano (TV) - Jesolo (VE) - Montegrotto Terme (PD). Contatta l'inserzionista

ACCORDI AGENZIA CONEGLIANOACCORDI AGENZIA CONEGLIANO
via Madonna 1
31015, Conegliano (Treviso)
Visualizza Telefono

INFORMAZIONI SULL'IMMOBILE

  • Riferimento: SM55
  • Tipologia: Attività commerciale in Vendita
  • Modificato il: 22/05/2026
  • Scheda: SC9607403

Stabile

G

Mappa e indirizzo

33085 Maniago (Pordenone)
mappa mostra l'annuncio su mappa

Galleria Fotografica

Contatta l'inserzionista

ACCORDI AGENZIA CONEGLIANO

ACCORDI AGENZIA CONEGLIANO di Conegliano propone in vendita questo immobile, contattali subito!

Annunci immobiliari a Maniago (PN)

Copyright © 2026 PCase.it. All rights reserved. Sede operativa MILANO. P.IVA 08508420968 - Condizioni d'uso e privacy