Preferiti

Sponsorizza

Stampa

Ristorante e pizzeria in vendita a Milano

  • 175.000€
  • 3 locali
  • 90 mq
  • Vendesi

Via Torricelli, vi proponiamo interessante opportunit di investimento nel cuore di Milano, citt simbolo della vivace scena culinaria e della cultura gastronomica italiana.
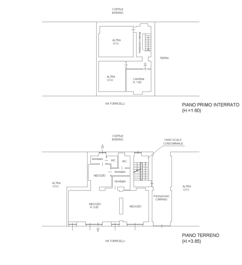
Il ristorante, si sviluppa su una superficie di circa 90 mq ed situato in una posizione strategica e di forte passaggio, con ottima visibilit e facile accesso per la clientela.
Gli ambienti interni, suddivisi in tre locali, consentono di accogliere un numero confortevole di ospiti, mentre il servizio garantisce funzionalit e comodit.
Un ulteriore punto di forza rappresentato dalle 4 ampie vetrine su strada, che assicurano massima visibilit commerciale, eccellente luminosit naturale e un forte impatto per il passaggio pedonale e veicolare.
Limmobile dispone inoltre di contratto di locazione in essere a condizioni particolarmente vantaggiose, elemento che garantisce stabilit e sostenibilit dei costi di gestione, rendendo linvestimento ancora pi interessante.
Zona e adiacenze: Limmobile si trova in una delle aree pi dinamiche della citt, nelle immediate vicinanze di Navigli, Porta Genova, Ticinese e Bocconi, contesto caratterizzato da unintensa presenza di attivit commerciali, locali serali, uffici e residenze.
La zona frequentata quotidianamente da residenti, professionisti, studenti universitari e turisti, assicurando un costante flusso pedonale durante tutto larco della giornata.
Mezzi di trasporto e collegamenti: La posizione ottimamente servita dai mezzi pubblici: Metropolitana, Linea M2 (verde) fermata Porta Genova Tram, Linea 3 e Linea 15 Autobus, Linee 59, 71, 90, 91 e linee notturne Questa combinazione di posizione strategica, quattro vetrine su strada, contratto di locazione a ottimo prezzo e collegamenti eccellenti rende limmobile unopportunit ideale per chi desidera investire in un settore solido e in continua crescita.
Contattateci per maggiori informazioni o per organizzare una visita e scoprire tutte le potenzialit di questo interessante ristorante in Via Torricelli a Milano. Contatta l'inserzionista

RC Homey SrlRC Homey Srl
Via Gabriele D’Annunzio 25
, Milano (Milano)
Visualizza Telefono

INFORMAZIONI SULL'IMMOBILE

  • Riferimento: Cod. rif 3295759VCG
  • Tipologia: Ristorante in Vendita
  • Locali: 3 Locali (2 camere e un bagno)
  • Piano: Terra
  • Prezzo: 175.000 €
  • Prezzo al mq: 1.944 €
  • Spazio Auto: No
  • Modificato il: 29/04/2026
  • Scheda: SC9645861

Stabile

  • Piano: Terra
  • Classe Energetica: n.d.

Mappa e indirizzo

20131 Milano (Milano)
Navigli
mappa mostra l'annuncio su mappa

Metropolitana
M2
Fermata Romolo a 900m
circa 15/17 min a piedi

Galleria Fotografica

Contatta l'inserzionista

RC Homey Srl

RC Homey Srl di Milano propone in vendita questo immobile, contattali subito!

Annunci immobiliari a Milano (MI)

Copyright © 2026 PCase.it. All rights reserved. Sede operativa MILANO. P.IVA 08508420968 - Condizioni d'uso e privacy