Preferiti

Sponsorizza

Stampa

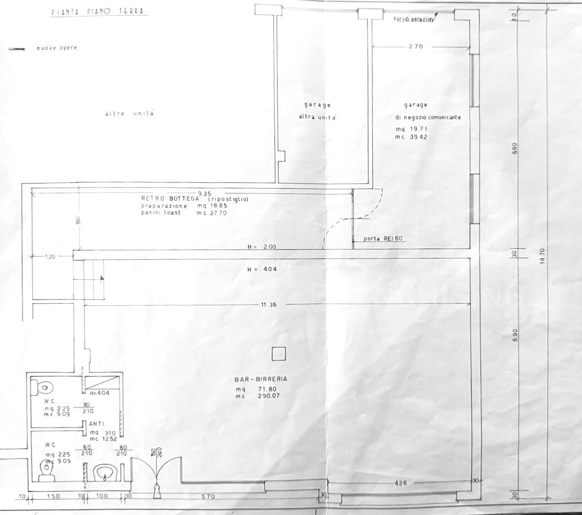
Ristorante e pizzeria in vendita a Casalserugo

  • 59.000€
  • 109 mq
  • Vendesi

Attivit - Casalserugo (PD) - Contatta l'inserzionista

INFORMAZIONI SULL'IMMOBILE

  • Riferimento: AL0284VCG
  • Tipologia: Ristorante in Vendita
  • Locali: Ristorante e pizzeria di 109 m²
  • Piano: Terra
  • Prezzo: 59.000 €
  • Prezzo al mq: 541 €
  • Spazio Auto: No
  • Modificato il: 24/03/2026
  • Scheda: SC9619883

Stabile

  • Piano: Terra
  • Classe Energetica: n.d.

Mappa e indirizzo

35020 Casalserugo (Padova)
mappa mostra l'annuncio su mappa

Galleria Fotografica

Contatta l'inserzionista

Pace s.n.c. di Visentini Antonella & c.

Pace s.n.c. di Visentini Antonella & c. di Albignasego propone in vendita questo immobile, contattali subito!

Annunci immobiliari a Casalserugo (PD)

Copyright © 2026 PCase.it. All rights reserved. Sede operativa MILANO. P.IVA 08508420968 - Condizioni d'uso e privacy