Preferiti

Sponsorizza

Stampa

Attività commerciale in gestione a Sant'Anastasia

  • trattativa riservata
  • 459 mq
  • Affittasi

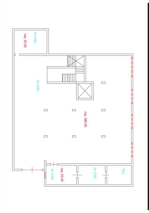
GABETTI FRANCHISING SANTANASTASIA PROPONE IN LOCAZIONE Via Pomigliano SantAnastasia (NA) In posizione strategica e ben collegata, proponiamo in locazione ampio locale ad uso deposito/attivit posto al piano seminterrato, con accesso carrabile diretto da strada tramite comoda rampa privata.
Limmobile si distingue per la notevole metratura open space, caratterizzata da ambienti ampi e facilmente modulabili grazie alla presenza di pilastri centrali che consentono diverse soluzioni di utilizzo.
Gli spazi interni, attualmente allo stato libero, risultano ideali per: * deposito merci * attivit logistiche * showroom * laboratori o attivit artigianali Presente inoltre zona ufficio separata, utile per gestione operativa o accoglienza clienti.
Punto di forza laccesso carrabile diretto, che rende limmobile particolarmente funzionale per carico e scarico anche con mezzi, oltre alla facilit di manovra allinterno dellarea.
Contesto riservato ma ben collegato, a pochi minuti dal centro e dalle principali arterie stradali.
Soluzione ideale per chi cerca spazio, praticit e accessibilit in ununica proposta.
CONTATTI Gabetti Franchising SantAnastasia Via Roma 61 SantAnastasia (NA) Tel. 081 17804305 Cell. 333 548 2246 379 253 2678 Email: *******@******* Contatta l'inserzionista

Di Costanzo SalvatoreDi Costanzo Salvatore
Via Roma 61
, Sant'Anastasia (Napoli)
Visualizza Telefono

INFORMAZIONI SULL'IMMOBILE

  • Riferimento: Cod. rif 3244596ACG
  • Tipologia: Attività commerciale in Gestione
  • Piano: Terra
  • Spazio Auto: No
  • Modificato il: 17/04/2026
  • Scheda: SC9482325

Stabile

  • Piano: Terra
  • Classe Energetica: n.d.

Mappa e indirizzo

80048 Sant'Anastasia (Napoli)
mappa mostra l'annuncio su mappa

Galleria Fotografica

Contatta l'inserzionista

Di Costanzo Salvatore

Di Costanzo Salvatore di Sant'Anastasia propone in affitto questo immobile, contattali subito!

Annunci immobiliari a Sant'Anastasia (NA)

Copyright © 2026 PCase.it. All rights reserved. Sede operativa MILANO. P.IVA 08508420968 - Condizioni d'uso e privacy