Preferiti

Sponsorizza

Stampa

Attico in vendita con terrazzo a Monte Argentario in via caravaggio snc - porto ercole

  • 780.000€
  • zona porto ercole
  • 8 locali
  • 147 mq
  • Vendesi

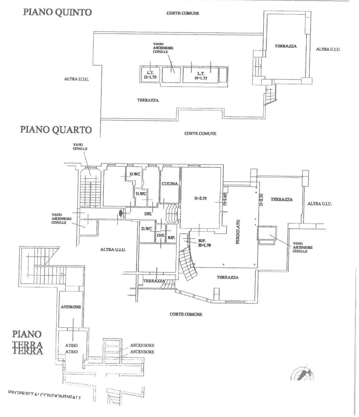
Porto Ercole Attico da ristrutturare con grandi terrazze nel prestigioso Condominio di Villa Consani -Le immagini presenti sono rendering a scopo illustrativo e rappresentano una possibile ipotesi di ristrutturazione dellimmobile per valorizzare gli spazi.
Non costituiscono lo stato attuale.- Nel rinomato contesto di Villa Consani, uno dei condomìni più esclusivi di Porto Ercole, proponiamo in vendita un attico di ampie dimensioni, servito da ascensore e distribuito tra il quarto e quinto piano, completamente da ristrutturare e ricco di potenzialità. Una proprietà unica, ideale per dare vita a una residenza esclusiva nel cuore dellArgentario.
Limmobile si compone di tre camere, ciascuna dotata di bagno en-suite, una cucina indipendente e un ampio salone con zona pranzo, caratterizzato da spazi generosi e grande luminosità. Il vero valore aggiunto della proprietà è rappresentato dalle ampie terrazze, disposte su due livelli, che regalano un raro senso di apertura e libertà. Gli spazi esterni includono aree perfette per pranzi allaperto, zone relax e angoli panoramici, oltre a ripostiglio e spogliatoio, ideali per organizzare al meglio la vita estiva.
Un attico dalle potenzialità straordinarie, inserito in un contesto signorile e immerso nel verde, perfetto per chi è alla ricerca di un progetto da personalizzare e trasformare in una dimora di grande charme nel cuore di Porto Ercole. Contatta l'inserzionista

Casaba Group International RealtyCasaba Group International Realty
Via della Marina 6/8
58018, Monte Argentario (Grosseto)
Visualizza Telefono

INFORMAZIONI SULL'IMMOBILE

  • Riferimento: CG162
  • Tipologia: Attico in Vendita
  • Locali: 8 Locali
  • Piano: Quarto
  • Stato: da Ristrutturare
  • Bagni: 3
  • Cucina: Abitabile
  • Prezzo: 780.000 €
  • Prezzo al mq: 5.306 €
  • Terrazzi: 4
  • Modificato il: 14/04/2026
  • Scheda: SC9510913

Stabile

  • Piano: 4
  • Portineria: Si
  • Classe Energetica: n.d.

Mappa e indirizzo

Attico sito in via caravaggio snc
58019 Monte Argentario (Grosseto), zona porto ercole
mappa mostra l'annuncio su mappa

Galleria Fotografica

Contatta l'inserzionista

Casaba Group International Realty

Casaba Group International Realty di Monte Argentario propone in vendita questo immobile, contattali subito!

Annunci simili

Annunci immobiliari a Monte Argentario (GR)

Copyright Š 2026 PCase.it. All rights reserved. Sede operativa MILANO. P.IVA 08508420968 - Condizioni d'uso e privacy