Preferiti

Sponsorizza

Stampa

Appartamento in vendita a Siena in scacciapensieri

  • 399.000€
  • 5 locali
  • 115 mq
  • Vendesi

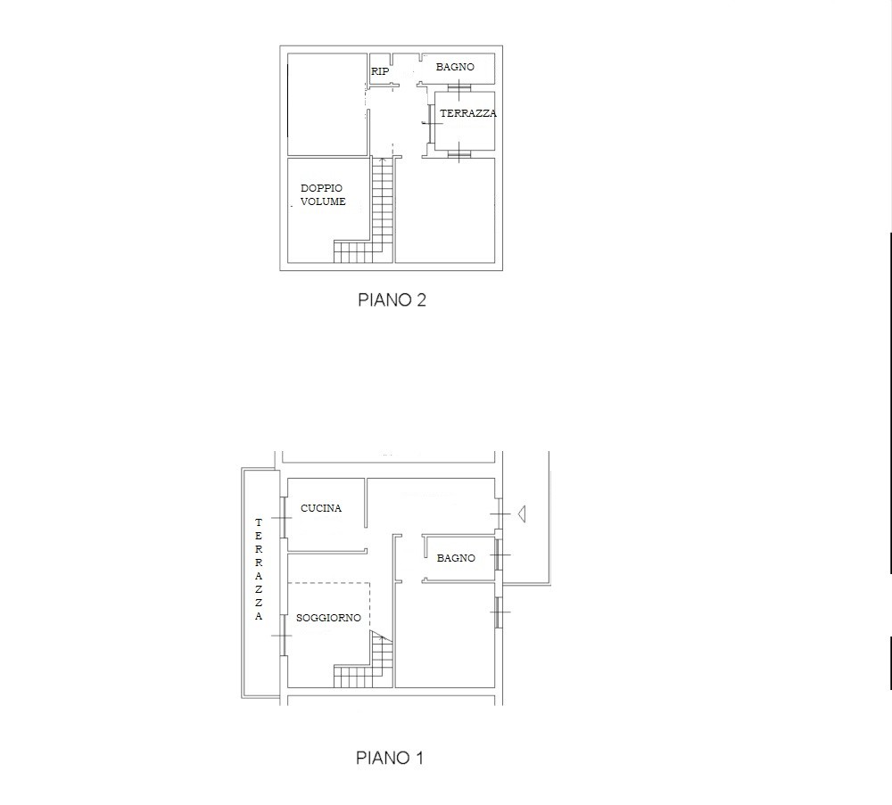
Via Orlandi, Scacciapensieri, all interno di elegante complesso residenziale, vendesi appartamento su due livelli di complessivi 115 mq su due livelli oltre balcone e terrazza a tasca.
Il piano primo si divide tra ingresso, soggiorno alto (doppio volume) con balcone, camera matrimoniale e bagno oltre alle scale di accesso al piano secondo che comprende altre due camere, il secondo bagno, un ripostiglio ed una terrazza a tasca.
Immobile completamente ristrutturato nel 2021 e pertanto in perfette condizioni con impianti a norma e certificati.
Utenze autonome, spese condominiali euro 100 al mese circa che comprendono tutte le voci classiche ed anche il consumo dell acqua che è rilevato da sottocontatore.
Anche le parti condominiali sono in ottime condizioni con la facciata rifatta nel 2022 e nell occasione revisionato il tetto.
Per informazioni 338 5495159 Contatta l'inserzionista

AD Immobiliare di Brogi GianniAD Immobiliare di Brogi Gianni
VIA CASSIA NORD 22
53035, Monteriggioni (Siena)
Visualizza Telefono

INFORMAZIONI SULL'IMMOBILE

  • Riferimento: AN803
  • Tipologia: Appartamento in Vendita
  • Locali: 5 Locali
  • Piano: Primo
  • Bagni: 2
  • Prezzo: 399.000 €
  • Prezzo al mq: 3.470 €
  • Spese: 1.200,00 € (annuali)
  • Balconi: 1
  • Riscaldamento: Autonomo
  • Modificato il: 25/11/2025
  • Scheda: SC9475574

Stabile

  • Piano: 1 su 2 totali
I.P.E.
163,6Kwh/m2
F

Galleria Fotografica

Contatta l'inserzionista

AD Immobiliare di Brogi Gianni

AD Immobiliare di Brogi Gianni di Monteriggioni propone in vendita questo immobile, contattali subito!

Annunci simili

Annunci immobiliari a Siena (SI)

Copyright Š 2026 PCase.it. All rights reserved. Sede operativa MILANO. P.IVA 08508420968 - Condizioni d'uso e privacy