Preferiti

Sponsorizza

Stampa

Appartamento in vendita a Pontedera

  • 198.000€
  • 5 locali
  • 163 mq
  • Vendesi

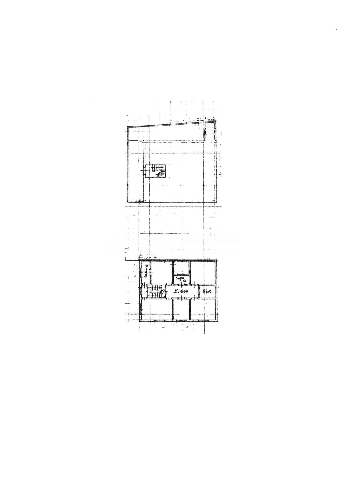
***.*******.** 2389-s - CAPOLUOGO - Pontedera- Vendesi ampio appartamento di oltre 160 mq CON INGRESSO INDIPENDENTE.
L'immobile, posto nelle primissime vicinanze del centro, ha tutti i principali servizi nelle vicinanze.
L'appartamento si compone in: resede di arrivo, al primo piano troviamo grande soggiorno, cucinotto con tinello, TRE camere, bagno e ripostiglio oltre a soffitta.
Classe energetica: G - Rif. 2389-s Contatta l'inserzionista

SALUTINI ANDREA Agenzia ImmobiliareSALUTINI ANDREA Agenzia Immobiliare
Via Pacinotti, 11
, Pontedera (Pisa)
Visualizza Telefono

INFORMAZIONI SULL'IMMOBILE

  • Riferimento: 1393874/1361/2389-s
  • Tipologia: Appartamento in Vendita
  • Locali: 5 Locali
  • Piano: Ultimo Piano
  • Stato: Buono
  • Bagni: 1
  • Cucina: Abitabile
  • Prezzo: 198.000 €
  • Prezzo al mq: 1.215 €
  • Riscaldamento: Autonomo
  • Modificato il: 08/05/2026
  • Scheda: SC9598874

Stabile

  • Piano: 1 su 1 totali
  • Classe Energetica: n.d.

Mappa e indirizzo

56025 Pontedera (Pisa)
mappa mostra l'annuncio su mappa

Galleria Fotografica

Contatta l'inserzionista

SALUTINI ANDREA Agenzia Immobiliare

SALUTINI ANDREA Agenzia Immobiliare di Pontedera propone in vendita questo immobile, contattali subito!

Annunci simili

Annunci immobiliari a Pontedera (PI)

Copyright Š 2026 PCase.it. All rights reserved. Sede operativa MILANO. P.IVA 08508420968 - Condizioni d'uso e privacy