Preferiti

Sponsorizza

Stampa

Appartamento in vendita da ristrutturare a Cosenza

  • 120.000€
  • 5 locali
  • 135 mq
  • Vendesi

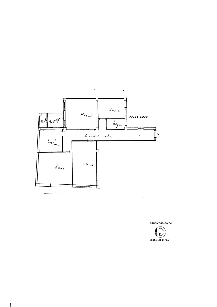
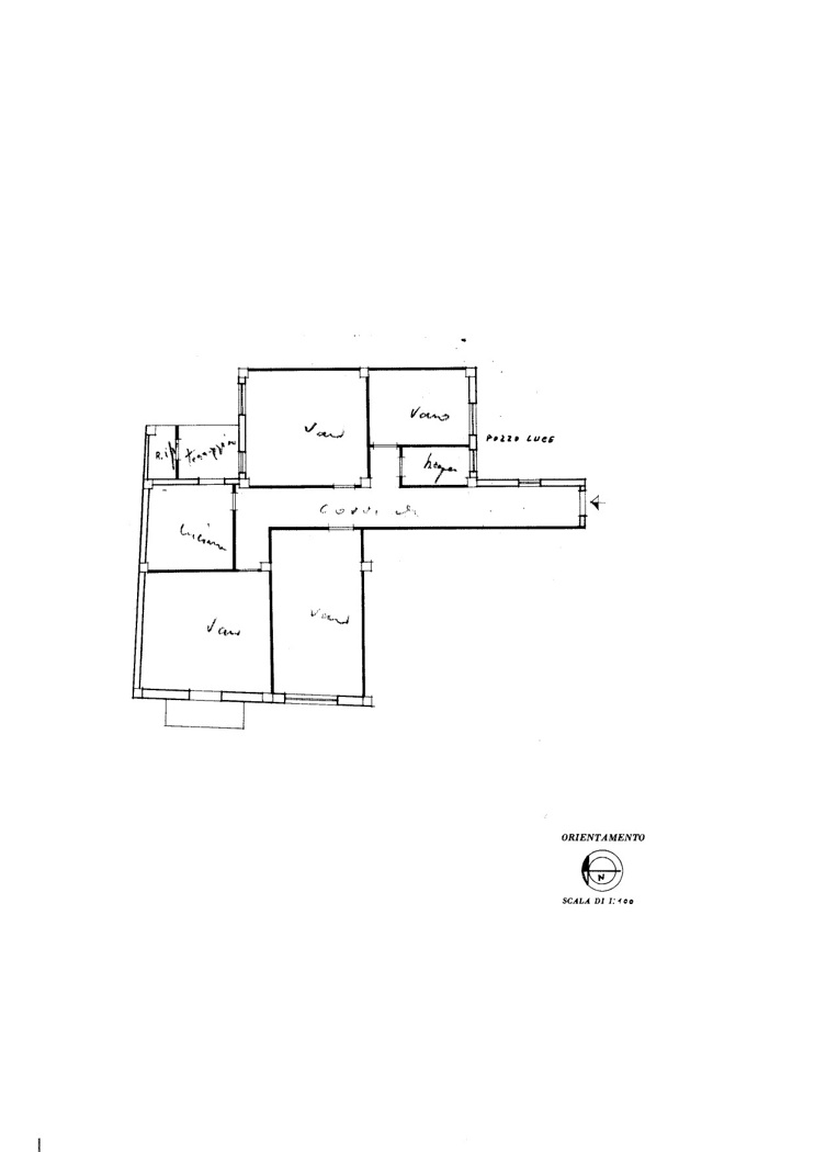
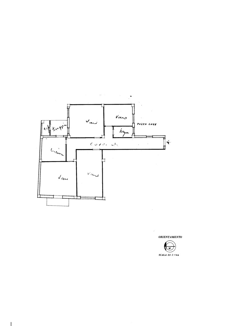
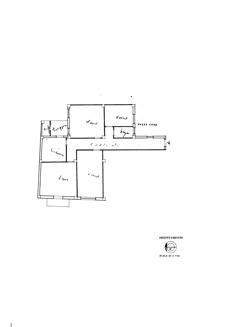
Proponiamo in vendita un comodo appartamento ad uso abitativo nel cuore di Cosenza, situato al 5° piano con ascensore in viale delle Medaglie D'Oro 42. Con una superficie di circa 135 mq, l'immobile offre un ampio ingresso che conduce al luminoso soggiorno, una cucina abitabile, tre camere da letto e un bagno.
Completa la propriet un balcone e un terrazzo con un comodo ripostiglio.
L'appartamento, con una disposizione interna ottimale e spazi ben distribuiti, ideale per chi cerca comfort e funzionalit.
La posizione centrale permette di godere di tutti i servizi e le comodit della zona, rendendolo un'ottima soluzione abitativa per famiglie o professionisti.
Contattaci per organizzare una visita e scoprire tutte le potenzialit di questa propriet. Contatta l'inserzionista

GEOM. GIAMPIERO RIZZUTOGEOM. GIAMPIERO RIZZUTO
Viale degli Alimena 113
, Cosenza (Cosenza)
Visualizza Telefono

INFORMAZIONI SULL'IMMOBILE

  • Riferimento: Cod. rif 3306306VRG
  • Tipologia: Appartamento in Vendita
  • Locali: 5 Locali
  • Piano: Ultimo Piano
  • Stato: da Ristrutturare
  • Bagni: 1
  • Cucina: Abitabile
  • Prezzo: 120.000 €
  • Prezzo al mq: 889 €
  • Balconi: 1
  • Riscaldamento: Autonomo
  • Spazio Auto: No
  • Modificato il: 23/04/2026
  • Scheda: SC9627321

Stabile

  • Piano: 5 su 5 totali
  • Classe Energetica: n.d.

Mappa e indirizzo

87100 Cosenza (Cosenza)
mappa mostra l'annuncio su mappa

Galleria Fotografica

Contatta l'inserzionista

GEOM. GIAMPIERO RIZZUTO

GEOM. GIAMPIERO RIZZUTO di Cosenza propone in vendita questo immobile, contattali subito!

Annunci simili

Annunci immobiliari a Cosenza (CS)

Copyright Š 2026 PCase.it. All rights reserved. Sede operativa MILANO. P.IVA 08508420968 - Condizioni d'uso e privacy