Preferiti

Sponsorizza

Stampa

Appartamento in vendita ristrutturato a Pisa

  • Prezzo ribassato -1%
  • € 545.000 535.000€
  • 5 locali
  • 140 mq
  • Vendesi

***.*******.** 1324 - Pisa. Piazza Santa Caterina.
Meraviglioso appartamento ristrutturato.
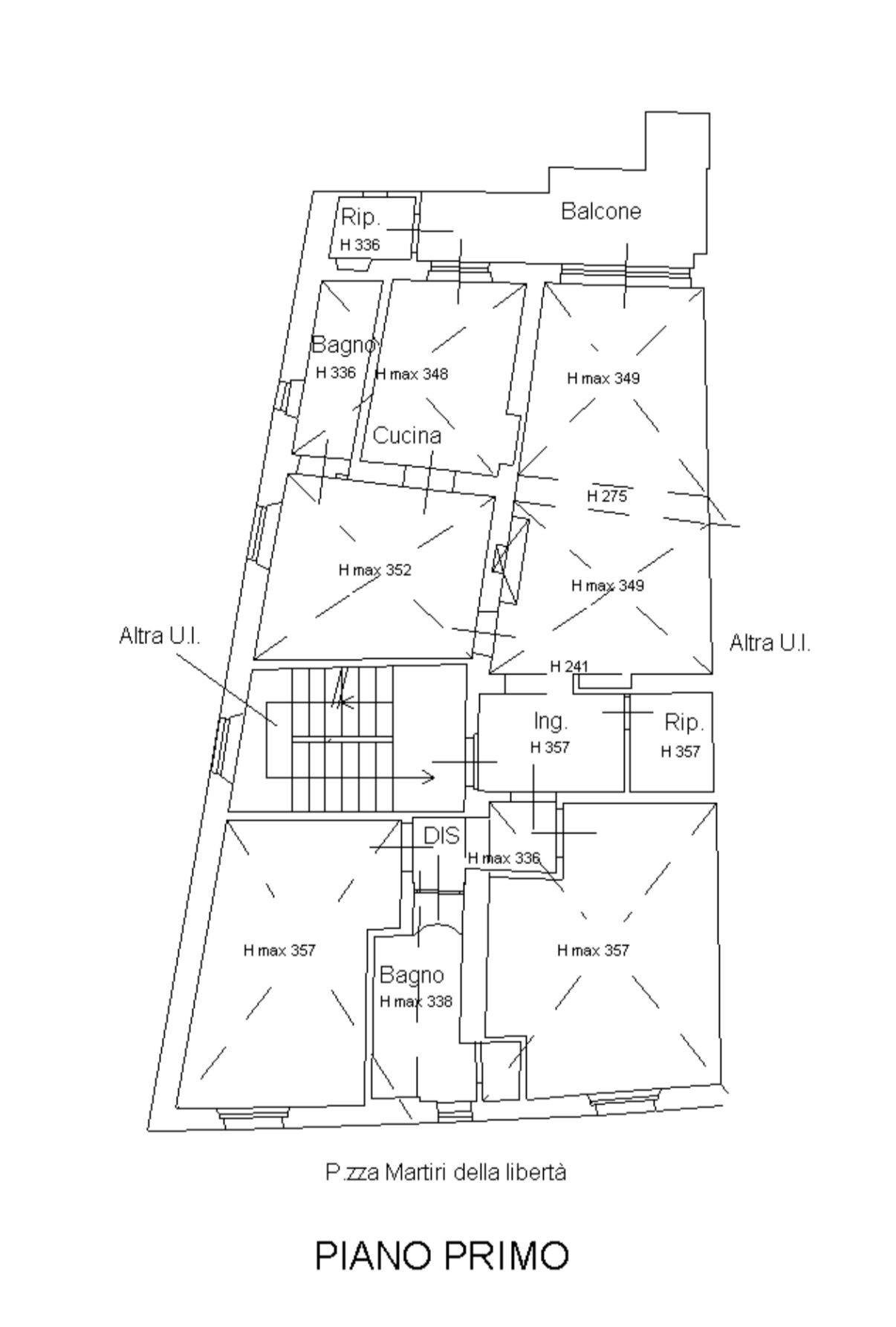
Nel cuore autentico di Pisa, nella suggestiva cornice di Piazza Santa Caterina, proponiamo in vendita un affascinante appartamento di ampia metratura, situato al primo piano di un palazzo storico.
Limmobile, di 135 mq calpestabili, è stato finemente ristrutturato nel 2018, con un perfetto equilibrio tra il fascino dellepoca e il comfort contemporaneo.
A rendere questa proprietà unica sono gli splendidi affreschi del 1700, autentici elementi di pregio che impreziosiscono gli ambienti e conferiscono unatmosfera elegante e senza tempo.
Gli spazi, ampi e ben distribuiti, si sviluppano in una grande sala di rappresentanza, due camere, una cucina abitabile, due bagni e una piacevole terrazza.
Tre finestre affacciano direttamente sulla piazza, regalando luce naturale e una vista esclusiva su uno degli angoli più caratteristici della città. La ristrutturazione ha valorizzato ogni dettaglio: parquet in tutta la casa, porte restaurate, ingresso con mattonelle originali recuperate, camino restaurato, radiatori nuovi e infissi con doppio vetro.
Limmobile è inoltre dotato di impianto di climatizzazione caldo/freddo, riscaldamento autonomo con caldaia esterna e sistema di antifurto.
Una soluzione di grande charme, ideale per chi desidera vivere il centro storico senza rinunciare a comfort e qualità, oppure per un investimento di prestigio.
Libero da subito.
Prezzo richiesto: ?545.000. Contatta l'inserzionista

ICONACASA PISAICONACASA PISA
Via Santa Marta, 23
, Pisa (Pisa)
Visualizza Telefono

INFORMAZIONI SULL'IMMOBILE

  • Riferimento: 1402885/2110/1324
  • Tipologia: Appartamento in Vendita
  • Locali: 5 Locali
  • Piano: Primo
  • Stato: Ristrutturato
  • Bagni: 2
  • Prezzo: 535.000 €
  • Prezzo al mq: 3.821 €
  • Balconi: 1
  • Riscaldamento: Autonomo
  • Modificato il: 20/04/2026
  • Scheda: SC9623832

Stabile

  • Piano: 1 su 3 totali
  • Classe Energetica: n.d.

Mappa e indirizzo

56128 Pisa (Pisa)
Centro
mappa mostra l'annuncio su mappa

Galleria Fotografica

Contatta l'inserzionista

ICONACASA PISA

ICONACASA PISA di Pisa propone in vendita questo immobile, contattali subito!

Annunci simili

Annunci immobiliari a Pisa (PI)

Copyright Š 2026 PCase.it. All rights reserved. Sede operativa MILANO. P.IVA 08508420968 - Condizioni d'uso e privacy