Preferiti

Sponsorizza

Stampa

Appartamento in vendita con giardino a Grottaglie

  • 328.000€
  • 5 locali
  • 170 mq
  • Vendesi

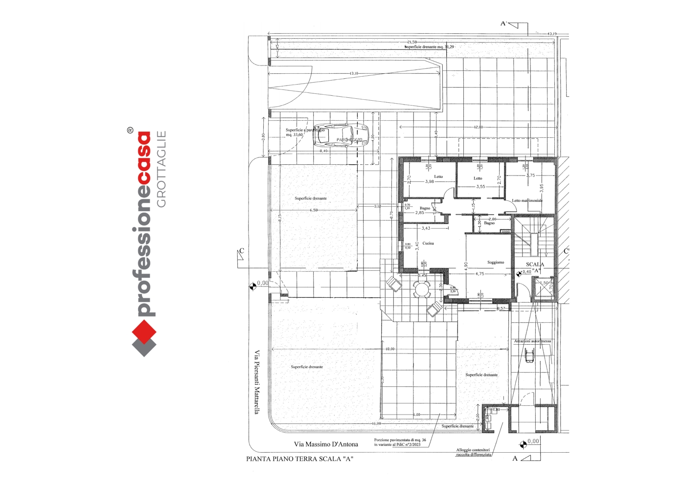
GROTTAGLIE - Appartamento di nuova costruzione in Classe A Se sei alla ricerca di un'abitazione moderna, in un contesto di poche unit abitative, con ingresso indipendente e con ampi spazi esterni, abbiamo l'opportunit perfetta per te! Vi presentiamo un appartamento di nuova costruzione in classe A, con tripla esposizione solare, situato ad angolo tra Via D'Antona e Via Mattarella.
Nel particolare, posto al piano terra con ingresso esclusivo da Via Mattarella, e gli accessi allunit abitativa sono due, uno pedonale ed uno carrabile.
Questa singolare proposta vanta unarea esterna di 450mq che si alterna tra piazzale pavimentato e area a verde, perfetta per godersi il bel tempo e respirare aria fresca.
Lappartamento, di metratura interna pari a circa 105 mq, prevede una zona living pensata come open-space, spaziosa e luminosa, tre camere da letto e doppi servizi.
Lunit abitativa sar inoltre dotata di impianti all'avanguardia, tra cui impianto fotovoltaico da 1,5 Kwatt, pannello solare termico, riscaldamento e raffreddamento a pavimento e videocitofono a colori gestibile direttamente dallo smartphone.
Una dimora che unisce l'efficienza energetica al massimo comfort abitativo.
Avrai la possibilit di personalizzare i rivestimenti, i pavimenti e il colore delle porte interne, rendendo la tua casa un vero rifugio su misura per te e la tua famiglia.
La particolarit di questo corpo scala, oltre allesposizione angolare che garantisce unottima luce agli appartamenti, che ogni piano prevede un solo appartamento e laltezza delle unit abitative sar di 3metri (a differenza dei canonici 2.7m). Si notifica la possibilit di accorpare un box auto al piano seminterrato o una cantina.
Non lasciarti sfuggire questa straordinaria opportunit di vivere nella casa dei tuoi sogni.
Contattaci oggi stesso per maggiori informazioni e per prenotare una visita.
Il tuo nuovo stile di vita ti attende! N.B. Qualora la planimetria risultasse sgranata, possibile contattarci per prenderne visione in qualit superiore.
Rif. DG2405 Contatta l'inserzionista

Planet RE Agency SrlPlanet RE Agency Srl
Via la Sorte 36
74023, Grottaglie (Taranto)
Visualizza Telefono

INFORMAZIONI SULL'IMMOBILE

  • Riferimento: DG2405VRG
  • Tipologia: Appartamento in Vendita
  • Locali: 5 Locali
  • Piano: Terra
  • Stato: Nuovo
  • Bagni: 2
  • Cucina: Abitabile
  • Prezzo: 328.000 €
  • Prezzo al mq: 1.929 €
  • Riscaldamento: Autonomo
  • Giardino: Privato
  • Spazio Auto: Box doppio in larghezza
  • Modificato il: 10/03/2026
  • Scheda: SC9047721

Stabile

  • Anno: 2026
  • Piano: Terra su 3 totali
  • Ascensore: Si
  • Portineria: No
  • Classe Energetica: n.d.

Mappa e indirizzo

74023 Grottaglie (Taranto)
mappa mostra l'annuncio su mappa

Galleria Fotografica

Contatta l'inserzionista

Planet RE Agency Srl

Planet RE Agency Srl di Grottaglie propone in vendita questo immobile, contattali subito!

Annunci simili

Annunci immobiliari a Grottaglie (TA)

Copyright Š 2026 PCase.it. All rights reserved. Sede operativa MILANO. P.IVA 08508420968 - Condizioni d'uso e privacy