Preferiti

Sponsorizza

Stampa

Appartamento in vendita da ristrutturare a Biella in via sant'eusebio 26

  • 52.256€
  • 5 locali
  • 144 mq
  • Vendesi

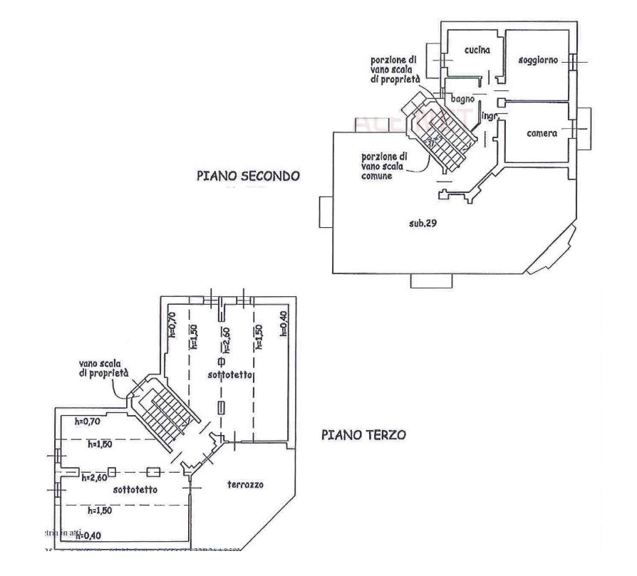
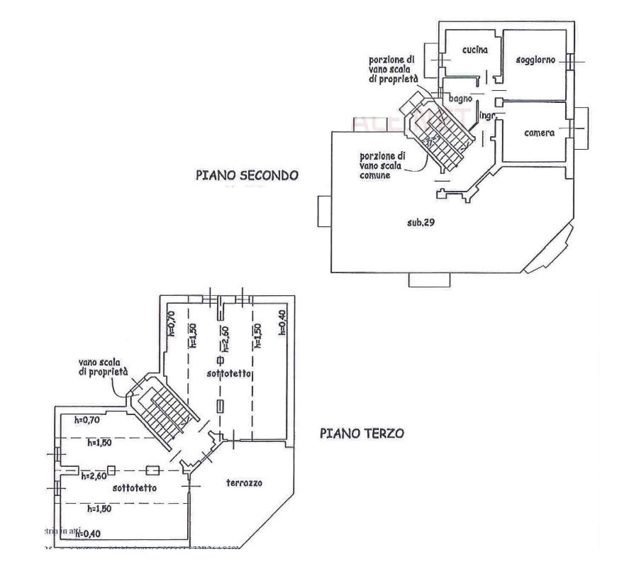
Appartamento al piano secondo di ingresso, bagno, cucina abitabile, soggiorno, una camera da letto e due balconi con ampio doppio locale sottotetto al piano terzo e adiacente al fabbricato condominiale, area libera recintata con piccolo fabbricato adibito a tettoia con locale deposito.
- Il Prezzo visualizzato è la Base d'Asta in quanto limmobile è oggetto di esecuzione immobiliare venduto tramite Asta Giudiziaria.
- L'immobile aggiudicato, viene venduto libero e sgombro da persone cose ed ipoteche nello stato di fatto e di diritto in cui si trova.
- Non rappresentiamo il Tribunale, ma lavoriamo nell'esclusivo interesse del potenziale acquirente per garantire un acquisto sicuro.
- I consulenti di ASTE ITALIA ti assisteranno in tutte le attività dell'iter giudiziario dalla visita dell'immobile fino alla consegna chiavi.
- Contatta il nostro Servizio Clienti , i nostri operatori sono a disposizione per chiarire i molteplici dubbi per partecipare alle ASTE. Contatta l'inserzionista

DOMY ONLINE S.R.L.DOMY ONLINE S.R.L.
Via San Lorenzo 5 Int. 41
16123, Genova (Genova)
Visualizza Telefono

INFORMAZIONI SULL'IMMOBILE

  • Riferimento: BI4/25L4-1612-25-153
  • Tipologia: Appartamento in Vendita
  • Locali: 5 Locali
  • Piano: Secondo
  • Stato: da Ristrutturare
  • Bagni: 1
  • Cucina: Abitabile
  • Prezzo: 52.256 €
  • Prezzo al mq: 363 €
  • Balconi: 2
  • Modificato il: 17/12/2025
  • Scheda: SC9481314

Stabile

  • Piano: 2
G

Mappa e indirizzo

Appartamento sito in via sant'eusebio 26
13900 Biella (Biella)
mappa mostra l'annuncio su mappa

Galleria Fotografica

Contatta l'inserzionista

DOMY ONLINE S.R.L.

DOMY ONLINE S.R.L. di Genova propone in vendita questo immobile, contattali subito!

Annunci immobiliari a Biella (BI)

Copyright Š 2026 PCase.it. All rights reserved. Sede operativa MILANO. P.IVA 08508420968 - Condizioni d'uso e privacy