Preferiti

Sponsorizza

Stampa

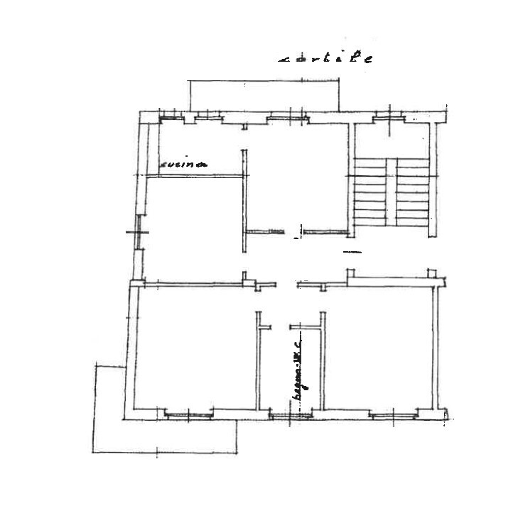
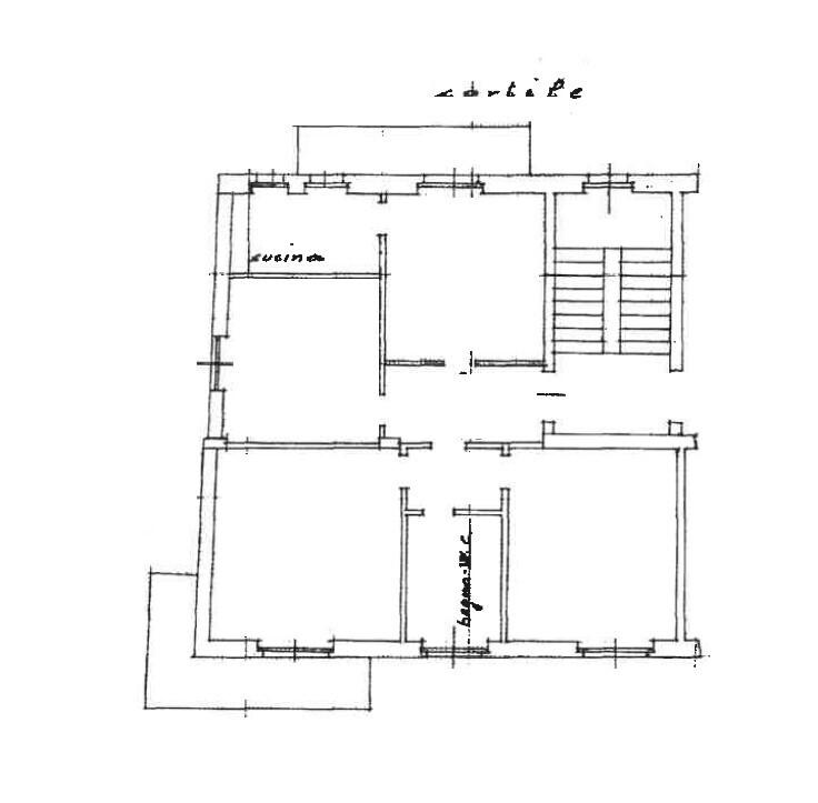
Appartamento in vendita da ristrutturare a Tortona in via caduti della libertà 13

  • 36.563€
  • 5 locali
  • 106 mq
  • Vendesi

Piena proprietà di un appartamento al piano primo con cantina al piano seminterrato di un fabbricato condominiale denominato "Condominio Pattarelli 1", comprensivo di un box auto al piano seminterrato con accesso dal cortile condominiale il tutto comune di Tortona, Via Caduti della Libertà n. 13. - Il Prezzo visualizzato è la Base d'Asta in quanto limmobile è oggetto di esecuzione immobiliare venduto tramite Asta Giudiziaria.
- L'immobile aggiudicato, viene venduto libero e sgombro da persone cose ed ipoteche nello stato di fatto e di diritto in cui si trova.
- Non rappresentiamo il Tribunale, ma lavoriamo nell'esclusivo interesse del potenziale acquirente per garantire un acquisto sicuro.
- I consulenti di ASTE ITALIA ti assisteranno in tutte le attività dell'iter giudiziario dalla visita dell'immobile fino alla consegna chiavi.
- Contatta il nostro Servizio Clienti , i nostri operatori sono a disposizione per chiarire i molteplici dubbi per partecipare alle ASTE. Contatta l'inserzionista

DOMY ONLINE S.R.L.DOMY ONLINE S.R.L.
Via San Lorenzo 5 Int. 41
16123, Genova (Genova)
Visualizza Telefono

INFORMAZIONI SULL'IMMOBILE

  • Riferimento: AL173/24LU-0807-26-0
  • Tipologia: Appartamento in Vendita
  • Locali: 5 Locali
  • Piano: Primo
  • Stato: da Ristrutturare
  • Bagni: 1
  • Prezzo: 36.563 €
  • Prezzo al mq: 345 €
  • Balconi: 2
  • Modificato il: 26/03/2026
  • Scheda: SC9514364

Stabile

  • Piano: 1
G

Mappa e indirizzo

Appartamento sito in via caduti della libertà 13
15057 Tortona (Alessandria)
mappa mostra l'annuncio su mappa

Galleria Fotografica

Contatta l'inserzionista

DOMY ONLINE S.R.L.

DOMY ONLINE S.R.L. di Genova propone in vendita questo immobile, contattali subito!

Annunci simili

Annunci immobiliari a Tortona (AL)

Copyright © 2026 PCase.it. All rights reserved. Sede operativa MILANO. P.IVA 08508420968 - Condizioni d'uso e privacy