Preferiti

Sponsorizza

Stampa

Appartamento in vendita con terrazzo a Arquata Scrivia in via xxv aprile 2

  • 37.575€
  • 6 locali
  • 136 mq
  • Vendesi

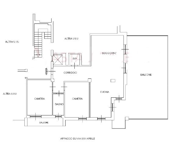
Piena proprietà di unità immobiliare a destinazione residenziale, posta al 1°piano di un fabbricato plurifamiliare, con accesso dal vano scala condominiale.
Lalloggio risulta composto da un corridoio di ingresso, un piccolo ripostiglio, un ampio soggiorno comunicante con la cucina, due camere da letto, un servizio igienico, un piccolo balcone con affaccio da una camera e un ampio terrazzo con affaccio dalla cucina e dal ***.*******.** a box posto al piano seminterrato accessibile da corte condominiale.
- Il Prezzo visualizzato è la Base d'Asta in quanto limmobile è oggetto di esecuzione immobiliare venduto tramite Asta Giudiziaria.
- L'immobile aggiudicato, viene venduto libero e sgombro da persone cose ed ipoteche nello stato di fatto e di diritto in cui si trova.
- Non rappresentiamo il Tribunale, ma lavoriamo nell'esclusivo interesse del potenziale acquirente per garantire un acquisto sicuro.
- I consulenti di ASTE ITALIA ti assisteranno in tutte le attività dell'iter giudiziario dalla visita dell'immobile fino alla consegna chiavi.
- Contatta il nostro Servizio Clienti , i nostri operatori sono a disposizione per chiarire i molteplici dubbi per partecipare alle ASTE. Contatta l'inserzionista

DOMY ONLINE S.R.L.DOMY ONLINE S.R.L.
Via San Lorenzo 5 Int. 41
16123, Genova (Genova)
Visualizza Telefono

INFORMAZIONI SULL'IMMOBILE

  • Riferimento: AL197/24LU-1706-26-1
  • Tipologia: Appartamento in Vendita
  • Locali: 6 Locali
  • Piano: Primo
  • Stato: da Ristrutturare
  • Bagni: 1
  • Cucina: Angolo cottura
  • Prezzo: 37.575 €
  • Prezzo al mq: 276 €
  • Balconi: 1
  • Terrazzi: 1 - 55 Mq
  • Modificato il: 06/03/2026
  • Scheda: SC9614091

Stabile

  • Piano: 1
G

Mappa e indirizzo

Appartamento sito in via xxv aprile 2
15061 Arquata Scrivia (Alessandria)
mappa mostra l'annuncio su mappa

Galleria Fotografica

Contatta l'inserzionista

DOMY ONLINE S.R.L.

DOMY ONLINE S.R.L. di Genova propone in vendita questo immobile, contattali subito!

Annunci simili

Annunci immobiliari a Arquata Scrivia (AL)

Copyright Š 2026 PCase.it. All rights reserved. Sede operativa MILANO. P.IVA 08508420968 - Condizioni d'uso e privacy