Preferiti

Sponsorizza

Stampa

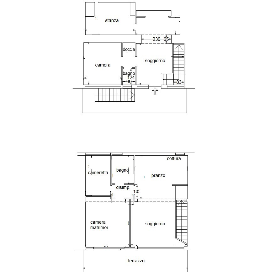
Appartamento in vendita con terrazzo a Zoagli in via parco tigullio 20

  • 250.275€
  • 6 locali
  • 122 mq
  • Vendesi

Appartamento sito in Zoagli con box di pertinenza.
- Il Prezzo visualizzato è la Base d'Asta in quanto limmobile è oggetto di esecuzione immobiliare venduto tramite Asta Giudiziaria.
- L'immobile aggiudicato, viene venduto libero e sgombro da persone cose ed ipoteche nello stato di fatto e di diritto in cui si trova.
- Non rappresentiamo il Tribunale, ma lavoriamo nell'esclusivo interesse del potenziale acquirente per garantire un acquisto sicuro.
- I consulenti di ASTE ITALIA ti assisteranno in tutte le attività dell'iter giudiziario dalla visita dell'immobile fino alla consegna chiavi.
- Contatta il nostro Servizio Clienti , i nostri operatori sono a disposizione per chiarire i molteplici dubbi per partecipare alle ASTE. Contatta l'inserzionista

DOMY ONLINE S.R.L.DOMY ONLINE S.R.L.
Via San Lorenzo 5 Int. 41
16123, Genova (Genova)
Visualizza Telefono

INFORMAZIONI SULL'IMMOBILE

  • Riferimento: GE196/25LU-0506-26-1
  • Tipologia: Appartamento in Vendita
  • Locali: 6 Locali
  • Piano: Terra
  • Stato: da Ristrutturare
  • Bagni: 2
  • Cucina: Angolo cottura
  • Prezzo: 250.275 €
  • Prezzo al mq: 2.051 €
  • Balconi: 1
  • Terrazzi: 1 - 15 Mq
  • Modificato il: 31/03/2026
  • Scheda: SC9635071

Stabile

  • Piano: Terra
G

Mappa e indirizzo

Appartamento sito in via parco tigullio 20
16030 Zoagli (Genova)
mappa mostra l'annuncio su mappa

Galleria Fotografica

Contatta l'inserzionista

DOMY ONLINE S.R.L.

DOMY ONLINE S.R.L. di Genova propone in vendita questo immobile, contattali subito!

Annunci simili

Annunci immobiliari a Zoagli (GE)

Copyright Š 2026 PCase.it. All rights reserved. Sede operativa MILANO. P.IVA 08508420968 - Condizioni d'uso e privacy