Preferiti

Sponsorizza

Stampa

Appartamento in vendita con terrazzo a Grosseto in via mazzini

  • 290.000€
  • 5 locali
  • 150 mq
  • Vendesi

D/CD3816 - In via Mazzini, al terzo piano di un elegante edificio residenziale recentemente ristrutturato, proponiamo in vendita un appartamento di ampia metratura, con doppia esposizione.
Protagoniste della proprietà sono senza dubbio le eleganti rifiniture e le numerose vetrate, che valorizzano la luce naturale e donano all'appartamento un'aria accogliente.
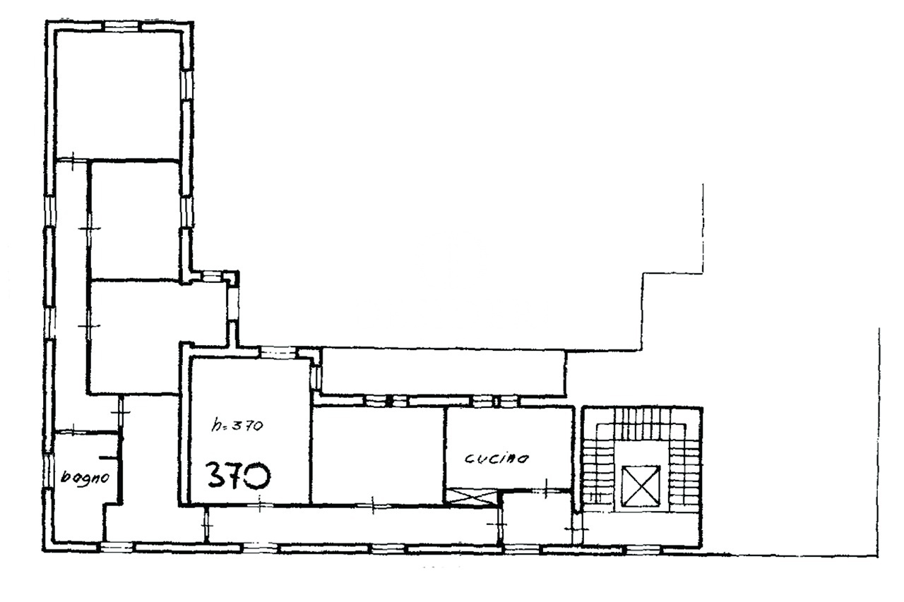
Internamente segue una pianta regolare, così composto: ingresso, cucina abitabile con terrazzo, studio e ampio soggiorno.
La zona notte include tre stanze da letto e un bagno.
Questa proprietà, unica nel suo genere, è la soluzione ideale per una clientela amante del centro storico, in una zona centrale, ben collegata e servita e che si distingue per la qualità dell'abitato.
A corredo della proprietà cantina al piano terra. Contatta l'inserzionista

I DESIDERII DESIDERI
VIA RICASOLI 3
58100, Grosseto (Grosseto)
Visualizza Telefono

INFORMAZIONI SULL'IMMOBILE

  • Riferimento: D/CD3816
  • Tipologia: Appartamento in Vendita
  • Locali: 5 Locali
  • Piano: Ultimo Piano con ascensore
  • Stato: Buono
  • Bagni: 1
  • Cucina: Abitabile
  • Prezzo: 290.000 €
  • Prezzo al mq: 1.933 €
  • Spese: 1.140,00 € (annuali)
  • Terrazzi: 1
  • Riscaldamento: Autonomo
  • Spazio Auto: No
  • Cantina: Si
  • Modificato il: 10/04/2026
  • Scheda: SC9635804

Stabile

  • Piano: 3 su 3 totali
  • Ascensore: Si
G

Mappa e indirizzo

Appartamento sito in via mazzini
58100 Grosseto (Grosseto)
Centro, Semi-Centro
mappa mostra l'annuncio su mappa

Galleria Fotografica

Contatta l'inserzionista

I DESIDERI

I DESIDERI di Grosseto propone in vendita questo immobile, contattali subito!

Annunci simili

Annunci immobiliari a Grosseto (GR)

Copyright Š 2026 PCase.it. All rights reserved. Sede operativa MILANO. P.IVA 08508420968 - Condizioni d'uso e privacy