Preferiti

Sponsorizza

Stampa

Appartamento in vendita con terrazzo a Livorno in via calzabigi 110 - calzabigi

  • 295.000€
  • zona calzabigi
  • 7 locali
  • 154 mq
  • Vendesi

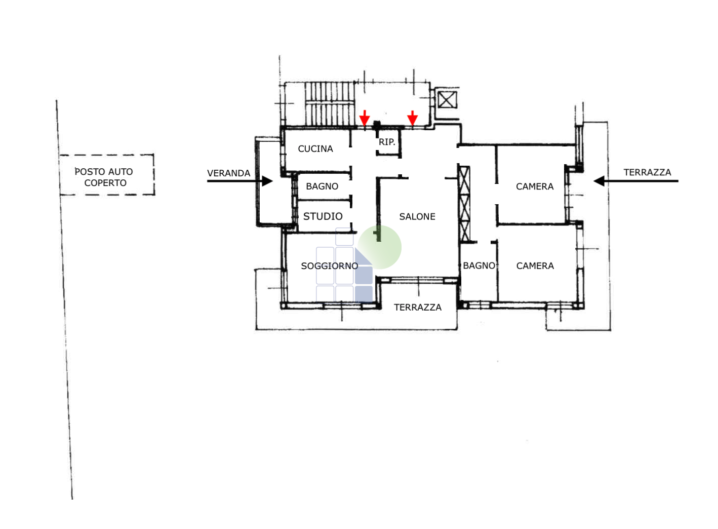
NOVITA' SUL MERCATO E NOSTRA ESCLUSIVA! ELEGANTE ED AMPIO APPARTAMENTO CON POSTO AUTO COPERTO DI PROPRIETA' vendesi ad Euro 295.000 ***.*******.** in esclusiva la vendita di bell'appartamento di circa 144 mq, interni oltre ampi spazi esterni, posto in elegante palazzo, con ascensore, situato nella alberata Via Calzabigi, e dotato di doppio ingresso, uno sulla zona notte ed uno principale sulla zona giorno, Si entra nell'ampia zona di ingresso da dove si ripartiscono le varie stanze, di fronte troviamo subito il doppio salone con ampie vetrate che si affacciano sul terrazzo, a destra il corridoio con la cucina abitabile con ampia veranda che serve anche da zona lavanderia e stesa panni, il ripostiglio, bagno di servizio, finestrato, e stanza uso studio; a sinistra dell'ingresso si entra nella zona notte con spaziosa e comoda armadiatura a muro, due camere matrimoniali, affacciate sul lungo balcone perimetrale, e bel bagno ristrutturato di recente, anch'esso finestrato.
Gli spazi interni permettono ulteriori modifiche per rendere gli ambienti ancora più moderni e sicuramente è possibile adibire una parte del salone a terza camera matrimoniale.
la maggior parte della pavimentazione è in marmo e le camere in parquet, riscaldamento centralizzato con termovalvole.
Il tutto è reso ancora più interessante per la presenza di POSTO AUTO COPERTO DI PROPRIETA', introvabile nella zona, e da un'ulteriore spazio offerto dalla porzione di cantina e dal posto cicli coperto.
Le spese condominiali fisse, come da Bilancio Preventivo 2025-2026, sono di circa Euro 96 mensili, a cui vanno aggiunti il costo a consumo di riscaldamento ed acqua.
Riferimento annuncio n.3507 Contatta l'inserzionista

INTERMEDIA IMMOBILIAREINTERMEDIA IMMOBILIARE
Via Niccolò Machiavelli, 47
57128, Livorno (Livorno)
Visualizza Telefono

INFORMAZIONI SULL'IMMOBILE

  • Riferimento: 3507
  • Tipologia: Appartamento in Vendita
  • Locali: 7 Locali
  • Piano: Primo
  • Stato: Buono
  • Bagni: 2
  • Cucina: Abitabile
  • Prezzo: 295.000 €
  • Prezzo al mq: 1.916 €
  • Spese: 1.152,00 € (annuali)
  • Balconi: 1
  • Terrazzi: 1 - 10 Mq
  • Modificato il: 14/04/2026
  • Scheda: SC9588128

Stabile

  • Piano: 1 su 7 totali
I.P.E.
137,68Kwh/m2
F

Mappa e indirizzo

Appartamento sito in via calzabigi 110
57128 Livorno (Livorno), zona calzabigi
Magenta
mappa mostra l'annuncio su mappa

Galleria Fotografica

Contatta l'inserzionista

INTERMEDIA IMMOBILIARE

INTERMEDIA IMMOBILIARE di Livorno propone in vendita questo immobile, contattali subito!

Annunci simili

Annunci immobiliari a Livorno (LI)

Copyright © 2026 PCase.it. All rights reserved. Sede operativa MILANO. P.IVA 08508420968 - Condizioni d'uso e privacy