Preferiti

Sponsorizza

Stampa

Appartamento in vendita con giardino a Firenze in viale matteotti

  • 680.000€
  • 5 locali
  • 120 mq
  • Vendesi

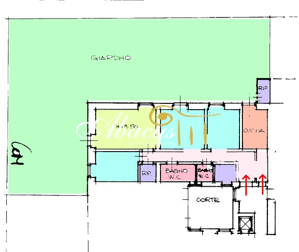
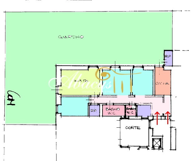
Piazza Libertà pressi - Viale Giacomo Matteotti - Situato in zona strategica, a pochi minuti dal centro della città, vicino a servizi e mezzi pubblici come la tramvia, si propone la vendita in ESCLUSIVA di signorile appartamento di 5 vani di circa 120 mq utili con giardino privato di 250 mq. L' appartamento (Categoria catastale A/1) si trova all'interno di prestigiosa palazzina dell' ottocento in cui è disponibile il servizio di portierato, posto al piano terreno, dispone di due ingressi.
L'attuale disposizione prevede una cucina abitabile, sala pranzo, sala studio, ampio salone, camere da letto, cameretta/studiolo oltre due bagni finestrati, guardaroba e ripostiglio/lavanderia esterno.
Tutto l'appartamento affaccia sul giardino circostante di 250 mq a cui vi si accede da 3 stanze che gode di una buona privacy.
(Facilemente ripristinabile l' originaria disposizione con cucina, soggiorno, 3 camere letto oppure cucina, soggiorno doppio e 2 camere letto come da planimetria in foto) Completa la proprietà una cantina al piano seminterrato.
Il riscaldamento centralizzato.
Spese condominiali ammontano a circa 300 mensili comprensive di servizio portierato e riscaldamento.
Classe energetica G 175 kWh/***.*******.** Richiesta Euro 680.000,00 (Rif. ABA/215) La nostra agenzia offre ai propri clienti una vasta gamma di servizi di consulenza e assistenza atti a garantire una compravendita e locazione immobiliare in totale tranquillità. Abacus immobiliare mette a disposizione la propria serietà , professionalità ed esperienza accompagnandovi passo passo dalla proposta fino al rogito notarile così come nella stipula del contratto di locazione, con l' impegno e la discrezione che ci contraddistingue.
Si offrono consulenze e stime immobiliari gratuite e senza impegno.
(*) Le indicazioni e le foto riportate devono essere considerate indicative e non hanno alcun contenuto contrattuale.
Le planimetrie e le metrature commerciali sono puramente indicative.
L' indirizzo può non rispecchiare l'esatta ubicazione dell'immobile ed è utile al solo fine di fornire un riferimento generico per la sua localizzazione per garantire la privacy dei proprietari. Contatta l'inserzionista

ABACUS IMMOBILIAREABACUS IMMOBILIARE
PIAZZA DELLA LIBERTA 2/R
50129, Firenze (Firenze)
Visualizza Telefono

INFORMAZIONI SULL'IMMOBILE

  • Riferimento: ABA/215_1
  • Tipologia: Appartamento in Vendita
  • Locali: 5 Locali
  • Piano: Terra
  • Stato: Buono
  • Bagni: 2
  • Cucina: Abitabile
  • Prezzo: 680.000 €
  • Prezzo al mq: 5.667 €
  • Spese: 3.600,00 € (annuali)
  • Riscaldamento: Centralizzato
  • Giardino: Privato - 250 Mq
  • Spazio Auto: No
  • Cantina: Si
  • Modificato il: 31/03/2026
  • Scheda: SC9580204

Stabile

  • Piano: Terra su 4 totali
  • Ascensore: Si
I.P.E.
175Kwh/m2
G

Mappa e indirizzo

Appartamento sito in viale matteotti
50142 Firenze (Firenze)
Campo di Marte, Libertà
mappa mostra l'annuncio su mappa

Galleria Fotografica

Contatta l'inserzionista

ABACUS IMMOBILIARE

ABACUS IMMOBILIARE di Firenze propone in vendita questo immobile, contattali subito!

Annunci simili

Annunci immobiliari a Firenze (FI)

Copyright © 2026 PCase.it. All rights reserved. Sede operativa MILANO. P.IVA 08508420968 - Condizioni d'uso e privacy