Preferiti

Sponsorizza

Stampa

Appartamento in vendita con giardino a Genova in via san carlo di cese 36h

  • 54.660€
  • 5 locali
  • 112 mq
  • Vendesi

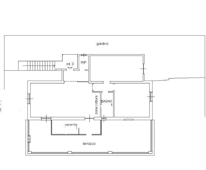
Immobile in Comune di Genova (GE) Via San Carlo di Cese, Edificio 36H, interno 3, esteso su tutto il piano secondo di palazzina a tre livelli sopraelevata rispetto alla strada con accesso autonomo e indipendente a mezzo scala esterna composto da ingresso, soggiorno con angolo di cottura, veranda, due camere, bagno, ripostiglio con vano doccia oltre terrazza al piano e giardino.
- Il Prezzo visualizzato è la Base d'Asta in quanto limmobile è oggetto di esecuzione immobiliare venduto tramite Asta Giudiziaria.
- L'immobile aggiudicato, viene venduto libero e sgombro da persone cose ed ipoteche nello stato di fatto e di diritto in cui si trova.
- Non rappresentiamo il Tribunale, ma lavoriamo nell'esclusivo interesse del potenziale acquirente per garantire un acquisto sicuro.
- I consulenti di ASTE ITALIA ti assisteranno in tutte le attività dell'iter giudiziario dalla visita dell'immobile fino alla consegna chiavi.
- Contatta il nostro Servizio Clienti , i nostri operatori sono a disposizione per chiarire i molteplici dubbi per partecipare alle ASTE. Contatta l'inserzionista

DOMY ONLINE S.R.L.DOMY ONLINE S.R.L.
Via San Lorenzo 5 Int. 41
16123, Genova (Genova)
Visualizza Telefono

INFORMAZIONI SULL'IMMOBILE

  • Riferimento: GE199/24L1-2703-26-1
  • Tipologia: Appartamento in Vendita
  • Locali: 5 Locali
  • Piano: Secondo
  • Stato: da Ristrutturare
  • Bagni: 1
  • Cucina: Angolo cottura
  • Prezzo: 54.660 €
  • Prezzo al mq: 488 €
  • Terrazzi: 1 - 39 Mq
  • Giardino: Privato
  • Modificato il: 30/03/2026
  • Scheda: SC9585372

Stabile

  • Piano: 2
G

Mappa e indirizzo

Appartamento sito in via san carlo di cese 36h
16159 Genova (Genova)
Ponente Entroterra
mappa mostra l'annuncio su mappa

Galleria Fotografica

Contatta l'inserzionista

DOMY ONLINE S.R.L.

DOMY ONLINE S.R.L. di Genova propone in vendita questo immobile, contattali subito!

Annunci simili

Annunci immobiliari a Genova (GE)

Copyright Š 2026 PCase.it. All rights reserved. Sede operativa MILANO. P.IVA 08508420968 - Condizioni d'uso e privacy