Preferiti

Sponsorizza

Stampa

Appartamento in vendita con giardino a Cesena in via ferrara

  • 290.000€
  • 107 mq
  • Vendesi

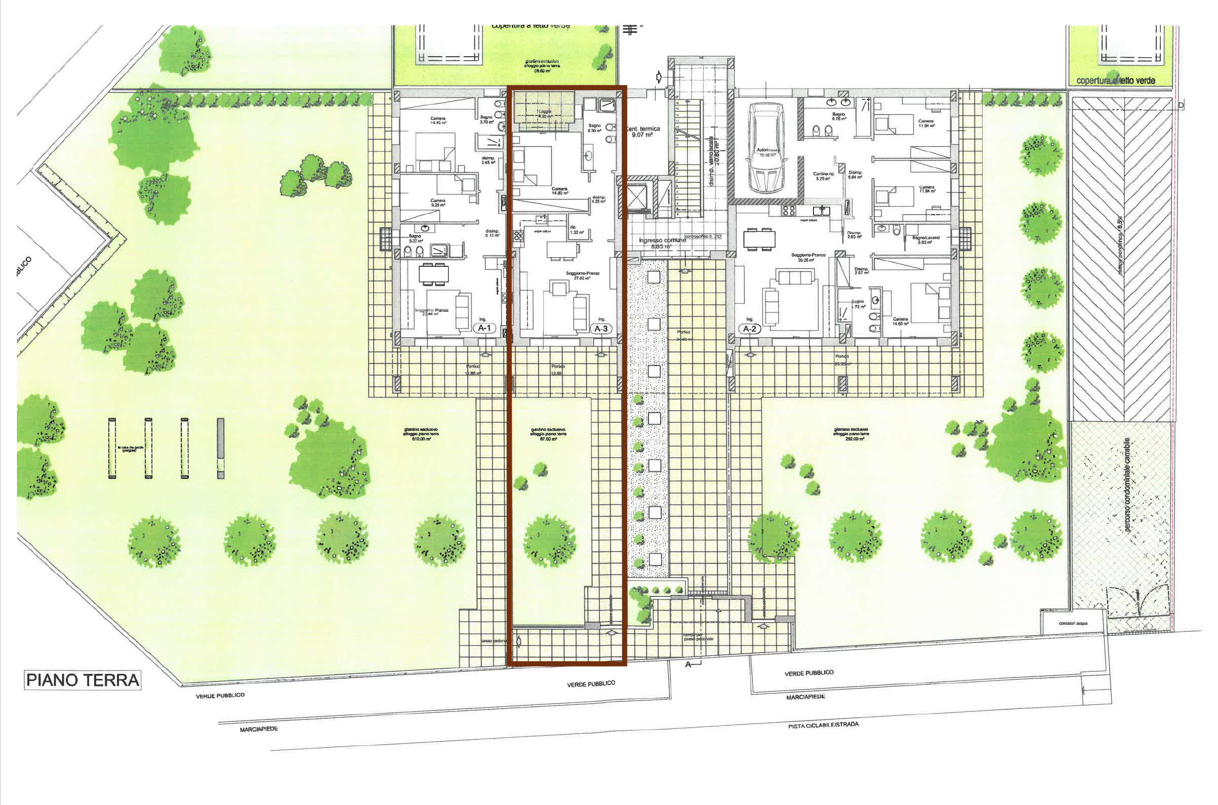
APPARTAMENTO AL PIANO TERRA IN COSTRUZIONE CON GIARDINO CLASSE ENERGETICA ELEVATA In zona residenziale tranquilla, proponiamo appartamento di nuova costruzione al piano terra, con ingresso indipendente e ampio giardino privato di circa 90 mq, ideale per chi desidera comfort, privacy e spazi esterni generosi.
Limmobile, attualmente in fase di costruzione, è caratterizzato da finiture moderne, soluzioni tecnologiche allavanguardia ed elevati standard energetici ed è così composto: Ingresso indipendente Zona giorno e cucina a vista, con accesso diretto al giardino Camera da letto matrimoniale con accesso ad una loggia Ampio bagno finestrato Possibilità di acquistare il garage al piano interrato Il giardino privato, offre spazi ideali per vivere lesterno, creare zone relax, area pranzo o spazi verdi personalizzati.
Il fabbricato sarà completato con impianti di ultima generazione, massima attenzione allefficienza energetica e al comfort abitativo, con classe energetica di alto livello.
Consegna prevista: primavera 2027 Possibilità di personalizzazione degli interni in base allo stato di avanzamento lavori Possibilità di acquistare servizi aggiuntivi, quali posti auto esterni e cantine Soluzione ideale per famiglie o per chi cerca un appartamento moderno al piano terra, con ampi spazi esterni e dotazioni complete.
Contattaci per maggiori informazioni, capitolato e per fissare un appuntamento.
Alina Pantiru +39 320 0525653 *******@******* Contatta l'inserzionista

Immobiliare Romagna SrlsImmobiliare Romagna Srls
Via Della Valle 232
47522, Cesena (Forlė-Cesena)

INFORMAZIONI SULL'IMMOBILE

  • Riferimento: 632
  • Tipologia: Appartamento in Vendita
  • Piano: Terra
  • Stato: Nuovo
  • Bagni: 1
  • Cucina: Angolo cottura
  • Prezzo: 290.000 €
  • Prezzo al mq: 2.710 €
  • Giardino: Privato
  • Modificato il: 15/01/2026
  • Scheda: SC9582550

Stabile

  • Anno: 2027
  • Piano: Terra
A4

Mappa e indirizzo

Appartamento sito in via ferrara
47023 Cesena (Forlė-Cesena)
mappa mostra l'annuncio su mappa

Galleria Fotografica

Contatta l'inserzionista

Immobiliare Romagna Srls

Immobiliare Romagna Srls di Cesena propone in vendita questo immobile, contattali subito!

Annunci simili

Annunci immobiliari a Cesena (FC)

Copyright Š 2026 PCase.it. All rights reserved. Sede operativa MILANO. P.IVA 08508420968 - Condizioni d'uso e privacy