Preferiti

Sponsorizza

Stampa

Appartamento in vendita con giardino a Grosseto in via delle viole

  • 269.000€
  • 5 locali
  • 103 mq
  • Vendesi

D/CD3821_1 - Proponiamo un appartamento di 5 vani situato in posizione strategica a Marina di Grosseto, proprio di fronte alla pineta, che regala privacy, tranquillità e un'atmosfera rilassante in ogni stagione.
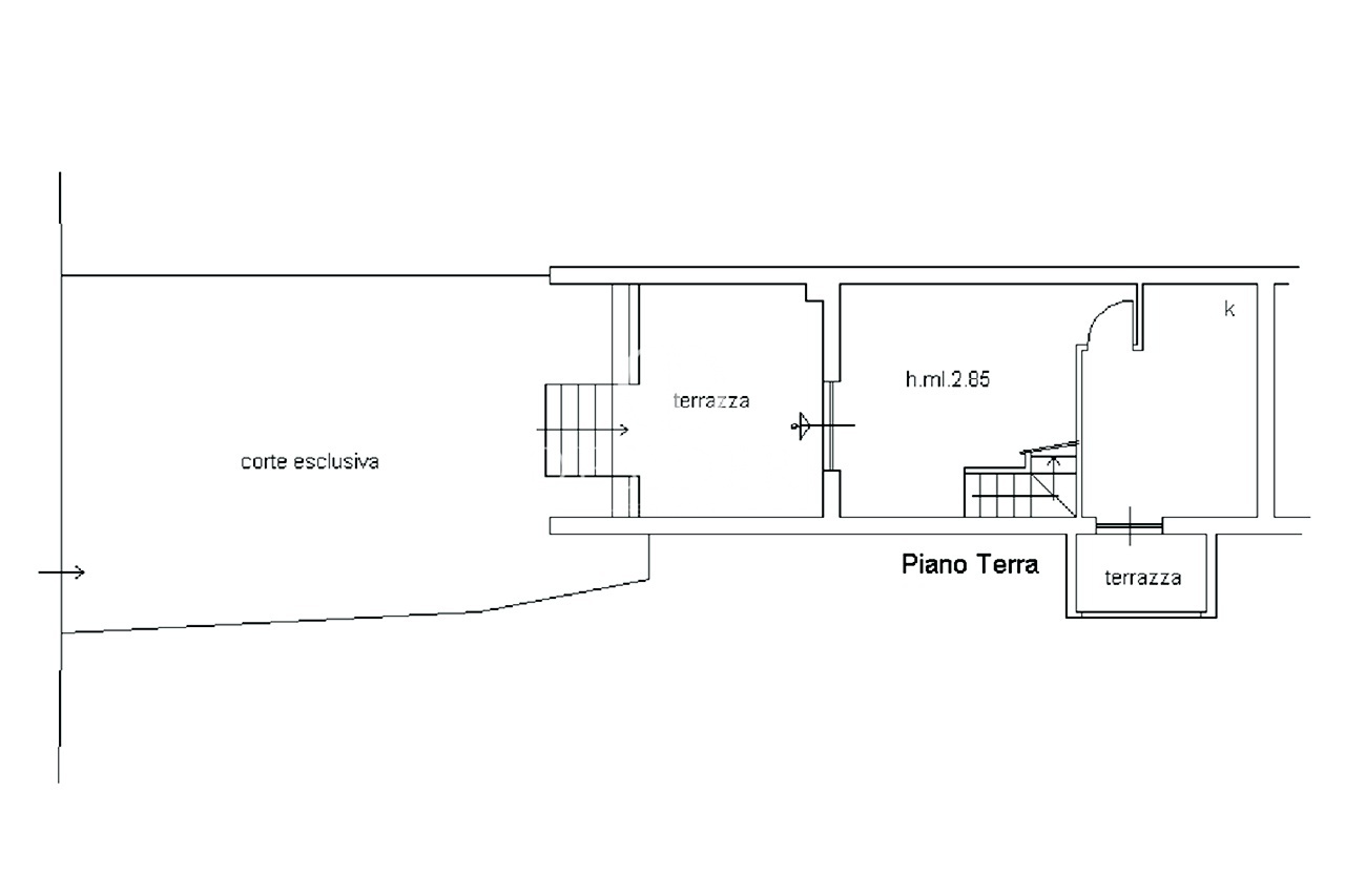
L'immobile, posto al piano terra con ingresso indipendente si sviluppa su più livelli per una superficie di 103 mq, si presenta in buone condizioni generali con ingresso dal giardino privato di 60 mq. La disposizione interna è così articolata: al piano rialzato soggiorno con affaccio alla terrazza di 20 mq., ideale per pranzi e momenti di relax all'aperto, cucinotto con secondo balcone di servizio; piano primo due camere da letto, entrambe con accesso al balcone di servizio e un bagno di servizio; al piano superiore e ultimo sottotetto con due locali e bagno di servizio.
La proprietà si trova a soli 350 metri dal mare, facilmente raggiungibile a piedi o in bicicletta.
Un'ottima soluzione sia come casa vacanze che come abitazione per vivere il mare e la natura anche durante l'inverno.
Pronta consegna. Contatta l'inserzionista

I DESIDERII DESIDERI
VIA RICASOLI 3
58100, Grosseto (Grosseto)
Visualizza Telefono

INFORMAZIONI SULL'IMMOBILE

  • Riferimento: D/CD3821_1
  • Tipologia: Appartamento in Vendita
  • Locali: 5 Locali
  • Piano: Terra
  • Stato: Ottimo
  • Bagni: 2
  • Cucina: Abitabile
  • Prezzo: 269.000 €
  • Prezzo al mq: 2.612 €
  • Balconi: 1
  • Terrazzi: 1
  • Riscaldamento: Autonomo
  • Giardino: Privato
  • Spazio Auto: No
  • Modificato il: 20/04/2026
  • Scheda: SC9640897

Stabile

  • Piano: Terra su 2 totali
  • Classe Energetica: n.d.

Mappa e indirizzo

Appartamento sito in via delle viole
58100 Grosseto (Grosseto)
Grosseto Sud
mappa mostra l'annuncio su mappa

Galleria Fotografica

Contatta l'inserzionista

I DESIDERI

I DESIDERI di Grosseto propone in vendita questo immobile, contattali subito!

Annunci simili

Annunci immobiliari a Grosseto (GR)

Copyright Š 2026 PCase.it. All rights reserved. Sede operativa MILANO. P.IVA 08508420968 - Condizioni d'uso e privacy