Preferiti

Sponsorizza

Stampa

Appartamento in vendita con giardino a San Miniato

  • 390.000€
  • 5 locali
  • 160 mq
  • Vendesi

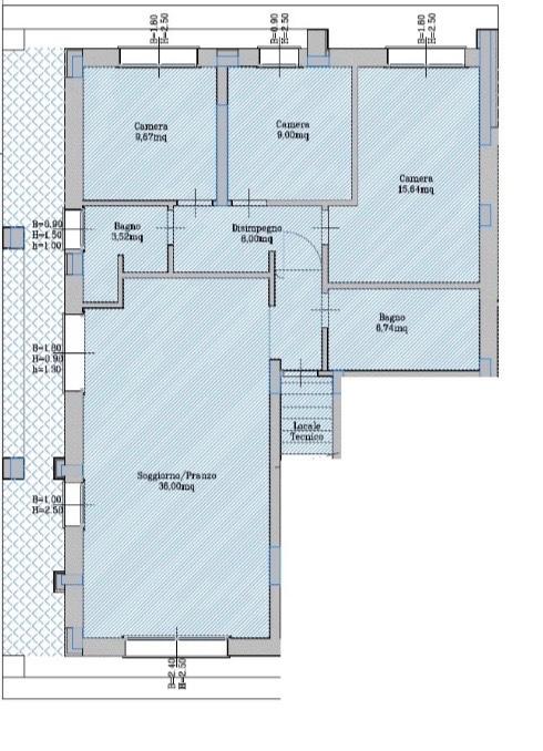
***.*******.** 1/1023 - SAN MINIATO BASSO, NUOVO 5 VANI DOPPI SERVIZI CON INGRESSO INDIPENDENTE, GIARDINO E GARAGE - RIF. 1/1023 - In bel contesto residenziale, bellissimo appartamento al piano terra in fase di costruzione con ingresso indipendente.
L'immobile, libero su tre lati e circondato da giardino di circa 200 mq e loggia, è composto da ampia zona soggiorno-pranzo open space di oltre 35 mq, disimpegno notte, tre camere di cui una matrimoniale, due bagni oltre al locale tecnico.
Garage al piano terra.
SUL appartamento 122 mq: ampi spazi ben distribuiti.
L'immobile verrà consegnato finito e rifinito con materiali di eccellente qualità a disposizione e scelta dell'acquirente.
Riscaldamento a pavimento, pannelli fotovoltaici.
Consegna prevista primavera/estate 2027. Bella zona e ottimo contesto, posizione strategica per la vicinanza ai servizi e alla Fi Pi Li. Si precisa che l'indirizzo presente non identifica l'esatta ubicazione dell'immobile questo al fine di tutelare la privacy e la riservatezza del venditore.
CLASSE ENERGETICA A4 - Rif. 1/1023 - EURO 390.000 Contatta l'inserzionista

Agenzia immobiliare Antonella GhizzaniAgenzia immobiliare Antonella Ghizzani
Piazza Matteotti, 12
, Empoli (Firenze)
Visualizza Telefono

INFORMAZIONI SULL'IMMOBILE

  • Riferimento: 1400349/17/1/1023
  • Tipologia: Appartamento in Vendita
  • Locali: 5 Locali
  • Piano: Terra
  • Stato: Nuovo
  • Bagni: 2
  • Cucina: Abitabile
  • Prezzo: 390.000 €
  • Prezzo al mq: 2.438 €
  • Riscaldamento: Autonomo
  • Giardino: Privato - 220 Mq
  • Modificato il: 18/03/2026
  • Scheda: SC9621842

Stabile

  • Piano: Terra su 1 totali
A+

Mappa e indirizzo

56028 San Miniato (Pisa)
mappa mostra l'annuncio su mappa

Galleria Fotografica

Contatta l'inserzionista

Agenzia immobiliare Antonella Ghizzani

Agenzia immobiliare Antonella Ghizzani di Empoli propone in vendita questo immobile, contattali subito!

Annunci simili

Annunci immobiliari a San Miniato (PI)

Copyright Š 2026 PCase.it. All rights reserved. Sede operativa MILANO. P.IVA 08508420968 - Condizioni d'uso e privacy