Preferiti

Sponsorizza

Stampa

Appartamento in vendita con giardino a Firenze

  • 2.850.000€
  • 5 locali
  • 825 mq
  • Vendesi

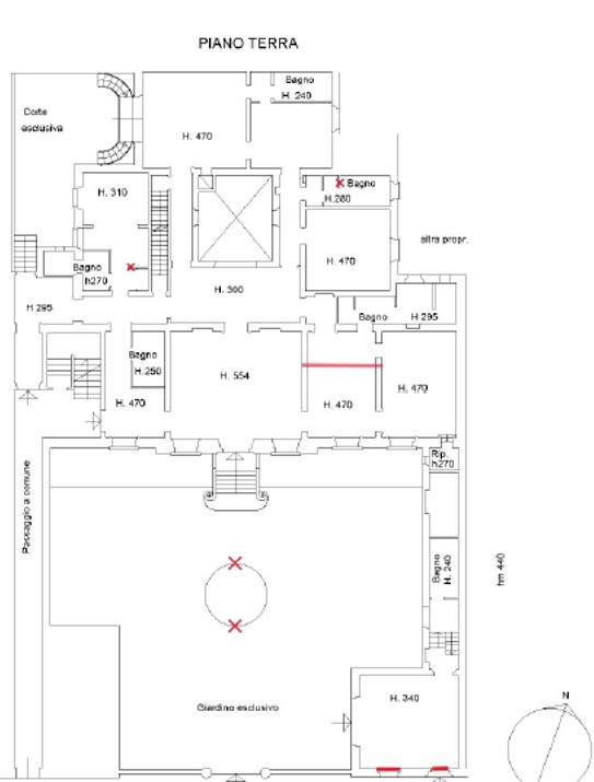
Appartamento Signorile Zona Libertà In vendita un prestigioso appartamento situato nel signorile quartiere della Libertà a Firenze, un'ottima opportunità per chi cerca un'abitazione di lusso, un ufficio di rappresentanza, in una delle zone più ricercate della città. Questo affascinante immobile di 825 mq si sviluppa su due livelli al piano terra con tre ingressi, due indipendenti, garantendo privacy e comodità. L' appartamento in precedenza adibito a residenza d'epoca, ma al momento libero e non arredato, si presenta in buone condizioni di manutenzione.
Al piano terreno troviamo il piano nobile, affreschi sul soffitto porte e infissi di grosse dimensioni.
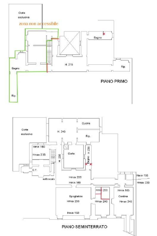
Al piano ammezzato un ulteriore appartamento di circa 4 vani. Completa la proprietà un resede di circa 250 mq con posti auto. Le condizioni dell'immobile sono buone e il riscaldamento è autonomo.
Situato in un contesto signorile, questo appartamento rappresenta un'opportunità unica per vivere nel cuore di Firenze, con tutte le comodità e i servizi a portata di mano. Contatta l'inserzionista

STUDIO IMMOBILIARE TANCREDISTUDIO IMMOBILIARE TANCREDI
PIAZZA NICCOLO' TOMMASEO 12
50135, Firenze (Firenze)
Visualizza Telefono

INFORMAZIONI SULL'IMMOBILE

  • Riferimento: RV26/3151
  • Tipologia: Appartamento in Vendita
  • Locali: 5 Locali
  • Piano: Terra
  • Stato: Buono
  • Prezzo: 2.850.000 €
  • Prezzo al mq: 3.455 €
  • Riscaldamento: Autonomo
  • Giardino: Privato
  • Spazio Auto: Posto auto scoperto
  • Modificato il: 24/03/2026
  • Scheda: SC9624841

Stabile

  • Piano: Terra
  • Classe Energetica: n.d.

Galleria Fotografica

Contatta l'inserzionista

STUDIO IMMOBILIARE TANCREDI

STUDIO IMMOBILIARE TANCREDI di Firenze propone in vendita questo immobile, contattali subito!

Annunci immobiliari a Firenze (FI)

Copyright Š 2026 PCase.it. All rights reserved. Sede operativa MILANO. P.IVA 08508420968 - Condizioni d'uso e privacy