Preferiti

Sponsorizza

Stampa

Appartamento in vendita con giardino a Fauglia - acciaiolo

  • 360.000€
  • zona acciaiolo
  • 5 locali
  • 260 mq
  • Vendesi

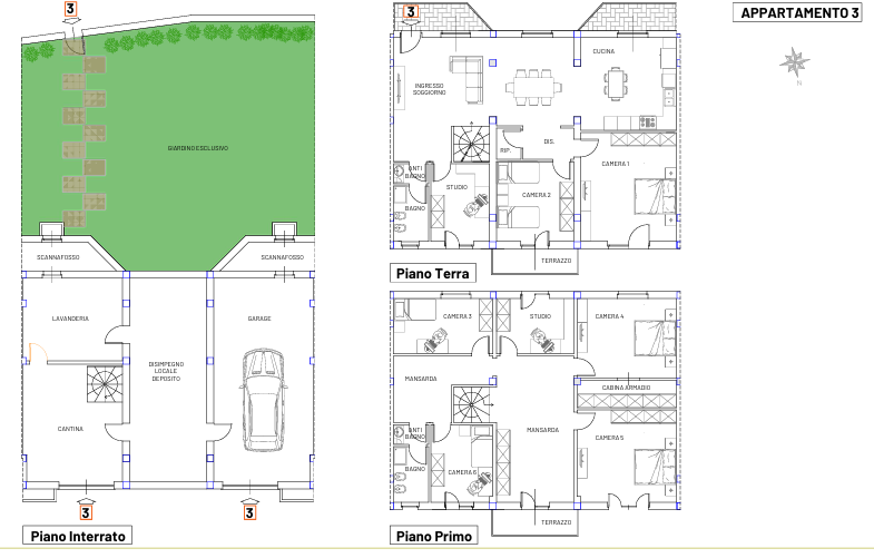
***.*******.** WV3874AQ - Acciaiolo (Fauglia) - VENDESI villetta a schiera di nuova costruzione, centrale, facente parte di una serie di altre 4 villette.
tutte complete di garage, giardino e vari posti auto. Superficie lorda circa 260 mq, 10 vani distribuiti tra piano seminterrato e 1°piano.
Nel p. seminterrato vi sono garage, cantina, lavanderia e locale deposito, a piano terra soggiorno, cucina abitabile, camera matrimoniale, camera singola, studio, bagno con antibagno, ripostiglio e disimpegno, al 1°piano 2 camere matrimoniali, separate dalla cabina armadio, 2 singole, studio e bagno con antibagno, sopra ancora mansarda abitabile.
Classe energetica ancora da certificare.
Superficie commerciale di quasi 400 mq! Prezzo indicativo nell'ordina di ? 360.000 ? più IVA. Rif. WV3874AQ Contatta l'inserzionista

VALERIO TERRENI ImmobiliareVALERIO TERRENI Immobiliare
Via Magellano, 12/A
, Vicopisano (Pisa)
Visualizza Telefono

INFORMAZIONI SULL'IMMOBILE

  • Riferimento: 1382584/575/WV3874AQ
  • Tipologia: Appartamento in Vendita
  • Locali: 5 Locali
  • Piano: Interrato
  • Stato: Nuovo
  • Bagni: 2
  • Cucina: Abitabile
  • Prezzo: 360.000 €
  • Prezzo al mq: 1.385 €
  • Balconi: 2
  • Riscaldamento: Autonomo
  • Giardino: Privato - 132 Mq
  • Mansarda: Si
  • Modificato il: 31/12/2025
  • Scheda: SC9576431

Stabile

  • Piano: Interrato
I.P.E.
160Kwh/m2
G

Mappa e indirizzo

56043 Fauglia (Pisa), zona acciaiolo
mappa mostra l'annuncio su mappa

Galleria Fotografica

Contatta l'inserzionista

VALERIO TERRENI Immobiliare

VALERIO TERRENI Immobiliare di Vicopisano propone in vendita questo immobile, contattali subito!

Annunci immobiliari a Fauglia (PI)

Copyright Š 2026 PCase.it. All rights reserved. Sede operativa MILANO. P.IVA 08508420968 - Condizioni d'uso e privacy