Preferiti

Sponsorizza

Stampa

Appartamento in vendita con giardino a Empoli - pretura

  • 495.000€
  • zona pretura
  • 5 locali
  • 100 mq
  • Vendesi

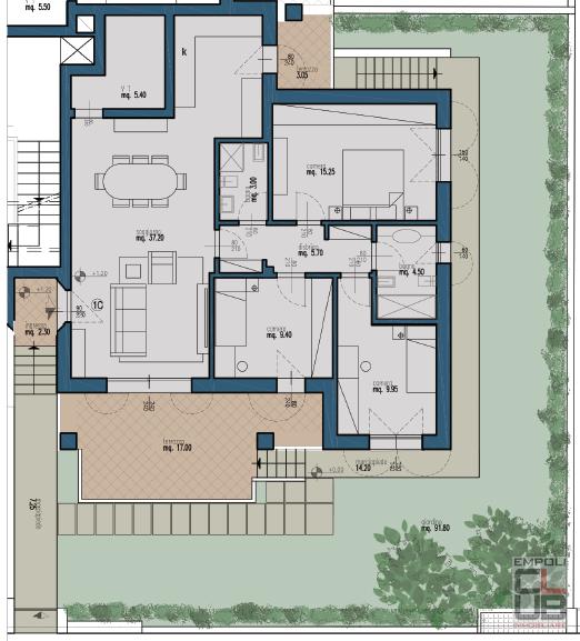
***.*******.** F/0754 - CAPOLUOGO - Empoli - Zona Pretura - Rif. F/0754 - APPARTAMENTO 1C - Moderno e signorile appartamento angolare con ingresso indipendente di totali mq 100 circa distribuiti su unico livello; ubicato in zona strategica della cittadina e progettato nel dettaglio per la comodità quotidiana della famiglia con figli grazie anche ai copiosi accessori (garage posto auto protetto e ampia cantina). Limmobile è così composto: ingresso alla proprietà da spazio pubblico, bel giardino privato sul fronte abitazione, ed al piano rialzato lingresso all abitazione così costituita: ingresso/disimpegno, zona living/divani, a seguire la cucina (open con il soggiorno ma volendo anche separabile) con attiguo vano tecnico parzialmente utilizzabile a dispensa/lavanderia; disimpegno tre camere due servizi igienici.
Al piano interrato un garage privato con accesso pedonale e carrabile dalla rampa esterna e la cantina.
Esternamente il posto auto privato.
Loggetto si contraddistingue per 4 fondamentali peculiarità: ZONA STRATEGICA: 1,5 Km dal centro storico e dalla stazione ferroviaria; 1 Km dal polo scolastico Ragioneria, Iti, Pontormo; 800 metri dalluscita FI-PI-LI Empoli Centro; 500 metri dal centro commerciale; 2 Km dal polo ospedaliero; zona verde, silenziosa e ben dotata di spazi pubblici.
PROGETTO ARCHITETTONICO: se osservate la planimetria dellimmobile nellarea planimetrie con a fianco un vostro amico o parente esperto di progettazione, potrete essere confortati sullattenzione architettonica prestata ai vani ed agli spazi in genere che, anche nelle minime metrature, risultano sempre ben pensati e fruibili.
Questo grazie ad un progettista che non ha ignorato le necessità del vivere quotidiano vano per vano persona per persona.
PROGETTO TECNOLOGICO: capitolato di livello in tutte le sue sfaccettature in cui è stata dedicata una particolare attenzione al tema del risparmio energetico.
Tamponamenti esterni isolanti con laterizio termico di spessore 40 cm; gestione dei ponti termici con coibentazioni nelle parti in cemento armato, serramenti con vetri di spessore maggiorati per soddisfacimento standard acustico e termico, impianto di riscaldamento a pannelli radianti di ultima generazione con sistema combinato composto da una Pompa di Calore, e da un Accumulo di acqua di 200 litri.
Pannelli fotovoltaici in copertura ad integrazione della Pompa di Calore per produzione acqua a bassa temperatura per gli stessi pannelli radianti e per laccumulo di acqua per lacqua calda sanitaria.
Raffrescamento sempre garantito dal pannello radiante con predisposizione di apposito deumidificatore su richiesta dellacquirente.
Tutto il pacchetto permetterà di raggiungere una classificazione energetica di livello A. PREZZO INTERESSANTE: in città introvabile questa tipologia in questa location al prezzo proposto, progettata a livello architettonico e tecnologico come indicato sopra.
Foto di repertorio a scopo puramente indicativo.
Classe energetica: A prezzo 495.000,00 Contatta l'inserzionista

EMPOLI CLUB IMMOBILIAREEMPOLI CLUB IMMOBILIARE
Via Roma, 77
, Empoli (Firenze)
Visualizza Telefono

INFORMAZIONI SULL'IMMOBILE

  • Riferimento: 1352331/144/F/0754
  • Tipologia: Appartamento in Vendita
  • Locali: 5 Locali
  • Piano: Rialzato
  • Stato: Nuovo
  • Bagni: 2
  • Cucina: A vista
  • Prezzo: 495.000 €
  • Prezzo al mq: 4.950 €
  • Terrazzi: 1 - 1 Mq
  • Riscaldamento: Autonomo
  • Giardino: Privato - 120 Mq
  • Cantina: Si
  • Modificato il: 04/02/2026
  • Scheda: SC9476706

Stabile

  • Piano: Rialzato su 3 totali
  • Ascensore: Si
I.P.E.
10Kwh/m2
A+

Mappa e indirizzo

50053 Empoli (Firenze), zona pretura
mappa mostra l'annuncio su mappa

Virtual Tour

Galleria Fotografica

Contatta l'inserzionista

EMPOLI CLUB IMMOBILIARE

EMPOLI CLUB IMMOBILIARE di Empoli propone in vendita questo immobile, contattali subito!

Annunci simili

Annunci immobiliari a Empoli (FI)

Copyright Š 2026 PCase.it. All rights reserved. Sede operativa MILANO. P.IVA 08508420968 - Condizioni d'uso e privacy