Preferiti

Sponsorizza

Stampa

Appartamento in vendita classe A1 a Luzzara

  • 290.000€
  • 5 locali
  • 160 mq
  • Vendesi

In vendita in centro storico a Luzzara in palazzina completamente ristrutturata a nuovo di 4 unita' abitative e con ascensore montacarichi.
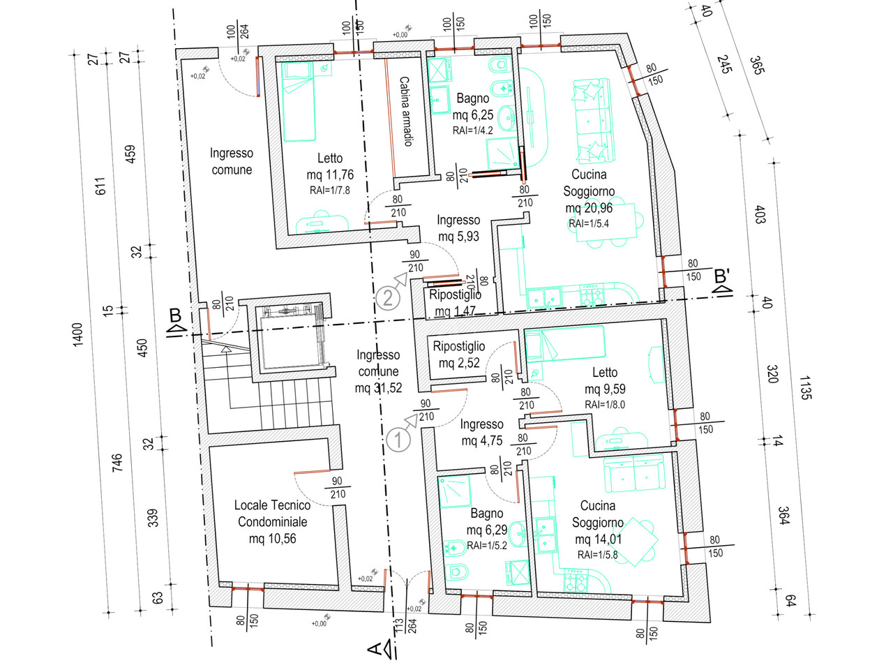
- Apparatmento bilocale di 55 mtq2 sito al piano terra composto da ingresso, soggiorno con cucina open space, bagno, 1camera da letto matrimoniale, ripostiglio e posto auto interno, richiesta Euro 95.000 - Appartamento bilocale di 75 mtq2 sito al piano terra composto da ingresso, soggiorno con cucina open space, bagno, 1camera da letto matrimoniale, ripostiglio e posto auto interno; richiesta Euro 140.000 - Appartamento quadrilocale duplex (disposto su due livelli) di 160 mtq2 composto al piano primo da da soggiorno, cucina abitabile, bagno, ripostiglio, disimpegno e vano scala; al piano secondo mansardato con tetto in legno lamellare di rovere sbiancato da 2 camere da letto, cabina armadio e terrazza; garage per un posto auto al piano terra; possibilita' di ricavare la terza camera da letto; richiesta Euro 290.000 - Appartamento quadrilocale duplex (disposto su due livelli) di 160 mtq2 composto al piano primo da da soggiorno, cucina abitabile, bagno, ripostiglio, disimpegno e vano scala; al piano secondo mansardato con tetto in legno lamellare di rovere sbiancato da 2 camere da letto, cabina armadio e terrazza; garage per un posto auto al piano terra; possibilita' di ricavare la terza camera da letto; richiesta Euro 290.000 Possibilita' di scaricare per gli acquirenti il 25% della spesa sul prezzo totale.
Info e dettagli in agenzia. Contatta l'inserzionista

Virgilio Casa di Berselli PaoloVirgilio Casa di Berselli Paolo
viale Virgilio)
46029, Suzzara (Mantova)
Visualizza Telefono

INFORMAZIONI SULL'IMMOBILE

  • Riferimento: 3646
  • Tipologia: Appartamento in Vendita
  • Locali: 5 Locali
  • Piano: Terra
  • Prezzo: 290.000 €
  • Prezzo al mq: 1.813 €
  • Riscaldamento: Autonomo
  • Modificato il: 13/04/2026
  • Scheda: SC9606542

Stabile

  • Piano: Terra
  • Portineria: No
I.P.E.
175Kwh/m2
A1

Galleria Fotografica

Contatta l'inserzionista

Virgilio Casa di Berselli Paolo

Virgilio Casa di Berselli Paolo di Suzzara propone in vendita questo immobile, contattali subito!

Annunci immobiliari a Luzzara (RE)

Copyright Š 2026 PCase.it. All rights reserved. Sede operativa MILANO. P.IVA 08508420968 - Condizioni d'uso e privacy