Preferiti

Sponsorizza

Stampa

Villa in vendita con giardino a Zumpano in viale della resistenza

  • 198.000€
  • 4 locali
  • 200 mq
  • Vendesi

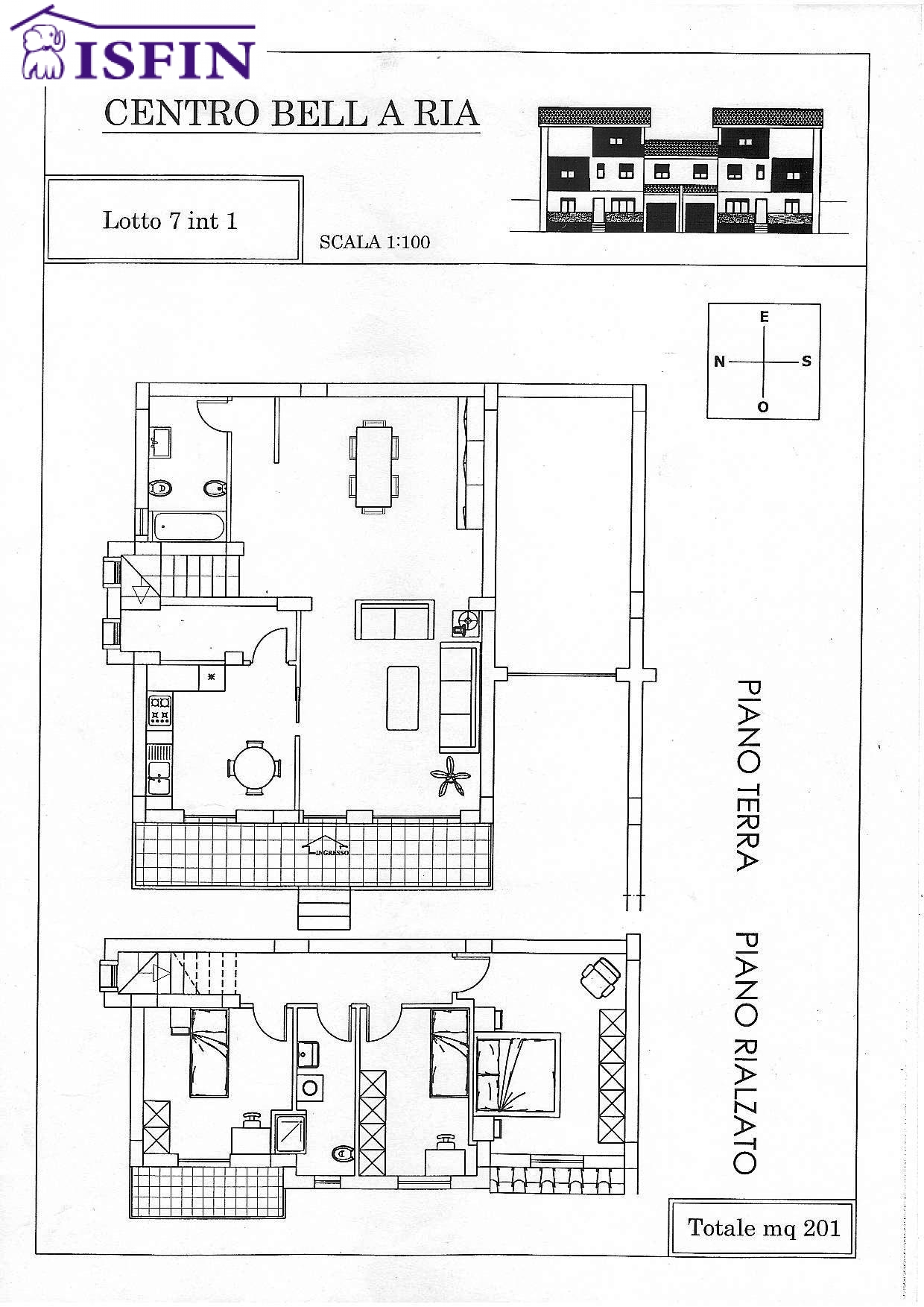
A Zumpano in Viale della Resistenza (localit Mennavence) ISFIN Immobiliare Vende una porzione di villetta trifamiliare angolare di nuova costruzione di circa 200 mq su due livelli cos composta: ingresso - salone, cucina abitabile con lavanderia, bagno, portico e giardino di circa mq 180 al piano terra, tre camere, bagno e balconi al primo piano.
La villetta con ottimo capitolato pu essere personalizzata scegliendo il parquet e le porte interne.
Per ulteriori informazioni e concordare eventuali appuntamenti chiami Isfin Immobiliare al numero 0984 465958 Contatta l'inserzionista

ISFIN ImmobiliareISFIN Immobiliare
Via J.F. Kennedy 55
87036, Rende (Cosenza)
Visualizza Telefono

INFORMAZIONI SULL'IMMOBILE

  • Riferimento: 2266
  • Tipologia: Villa in Vendita
  • Locali: 4 Locali (3 camere con doppi servizi)
  • Piano: Terra
  • Stato: Ottimo
  • Prezzo: 198.000 €
  • Prezzo al mq: 990 €
  • Riscaldamento: Autonomo
  • Giardino: Privato - 180 Mq
  • Spazio Auto: Box singolo
  • Modificato il: 02/03/2026
  • Scheda: SC9611338

Stabile

  • Anno: 2012
  • Piano: Terra su 2 totali
I.P.E.
35,6Kwh/m2
B

Mappa e indirizzo

Villa sito in viale della resistenza
87040 Zumpano (Cosenza)
mappa mostra l'annuncio su mappa

Galleria Fotografica

Contatta l'inserzionista

ISFIN Immobiliare

ISFIN Immobiliare di Rende propone in vendita questo immobile, contattali subito!

Annunci simili

Annunci immobiliari a Zumpano (CS)

Copyright Š 2026 PCase.it. All rights reserved. Sede operativa MILANO. P.IVA 08508420968 - Condizioni d'uso e privacy