Preferiti

Sponsorizza

Stampa

Villa in vendita con giardino a Santa Maria a Monte in via crinale

  • 380.000€
  • 5 locali
  • 143 mq
  • Vendesi

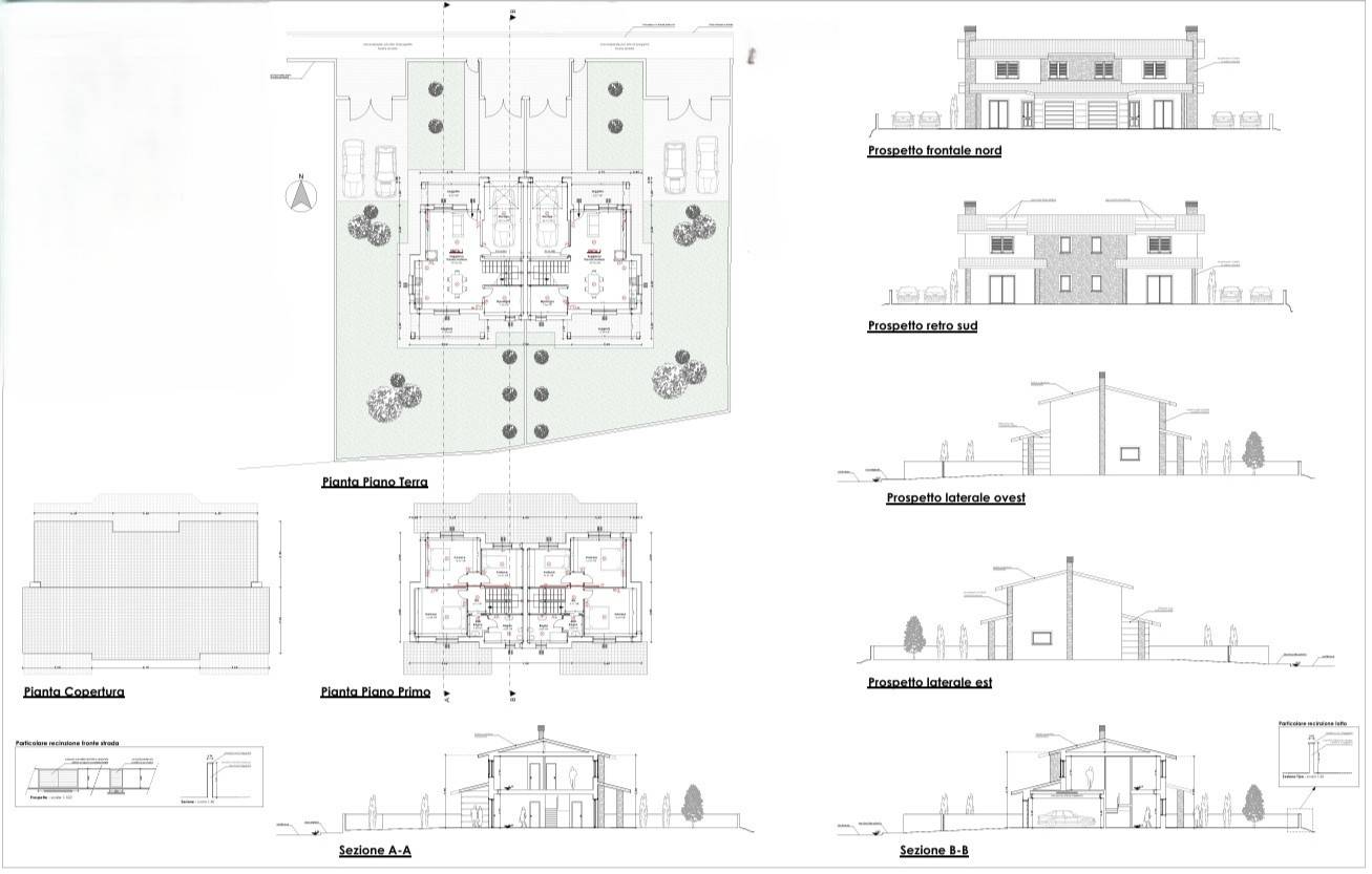
SANTA MARIA A MONTE - PROSSIMA REALIZZAZIONE, CONSEGNA PREVISTA: ESTATE 2027. Proponiamo in vendita VILLETTA BIFAMILIARE IN CLASSE A4 CON TRE CAMERE E AMPIO GIARDINO ESCLUSIVO.
Sulle incantevoli colline pisane, ideale per chi ama vivere in un ambiente sereno e circondato dalla natura, senza rinunciare al comfort e alla modernit.
L'immobile cosi formato: INGRESSO INDIPENDENTE Attraverso un cancello automatizzato arriviamo all' AMPIO GIARDINO PRIVATO DI CIRCA 500 MQ in parte pavimentato, con un loggiato, dove regala una splendida vista sulle colline, offrendo latmosfera perfetta per colazioni allaperto o serate estive sotto le stelle, per godersi il panorama, sono perfetti per momenti di relax in famiglia o con gli amici.
Allinterno, l'abitazione composta da : luminoso soggiorno, cucina abitabile e ripostiglio; al piano superiore, troviamo disimpegno notte Inoltre dotato di IMPIANTO FOTOVOLTAICO, POMPA DI CALORE E RISCALDAMENTO A PAVIMENTO.
LE SOLUZIONI DISPONIBILI TOTALI IN VENDITA SONO DUE. Contatta l'inserzionista

Case Toscane Immobiliare sasCase Toscane Immobiliare sas
corso Matteotti 122
56025, Pontedera (Pisa)
Visualizza Telefono

INFORMAZIONI SULL'IMMOBILE

  • Riferimento: 797aR
  • Tipologia: Villa in Vendita
  • Locali: 5 Locali
  • Piano: Terra
  • Bagni: 2
  • Prezzo: 380.000 €
  • Prezzo al mq: 2.657 €
  • Riscaldamento: Autonomo
  • Giardino: Privato
  • Modificato il: 24/11/2025
  • Scheda: SC9502207

Stabile

  • Piano: Terra su 1 totali
A4

Mappa e indirizzo

Villa sito in via crinale
56020 Santa Maria a Monte (Pisa)
mappa mostra l'annuncio su mappa

Galleria Fotografica

Contatta l'inserzionista

Case Toscane Immobiliare sas

Case Toscane Immobiliare sas di Pontedera propone in vendita questo immobile, contattali subito!

Annunci simili

Annunci immobiliari a Santa Maria a Monte (PI)

Copyright Š 2026 PCase.it. All rights reserved. Sede operativa MILANO. P.IVA 08508420968 - Condizioni d'uso e privacy