Preferiti

Sponsorizza

Stampa

Villa in vendita con giardino a San Pietro in Guarano in via padula due forni 60

  • 198.000€
  • 8 locali
  • 310 mq
  • Vendesi

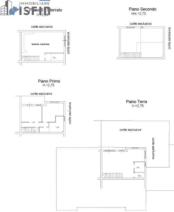
A San Pietro in Guarano (CS) in Via Padula Due Forni n°60 - ISFIN Immobiliare propone in vendita una villa posta su quattro livelli di ca 310 mq e ca 60 mq di giardino.
L'immobile cos suddiviso: Piano seminterrato/tavernetta composto da: ingresso - ampio soggiorno con angolo cottura in muratura, lavanderia/wc e ripostiglio.
Piano terra composto da: ingresso - soggiorno, un bagno e ripostiglio.
Primo piano composto da: camera da letto, stanza uso studio, bagno e cabina armadio.
Secondo piano/mansarda composto da: due camere da letto e un bagno.
Completa la propriet un impianto fotovoltaico di KW 6, climatizzatori al piano sottotetto e stufa a pellet collegata all'impianto di riscaldamento.
Per ulteriori informazioni e/o eventuale appuntamento chiami Isfin al numero 0984465958 o visiti il sito ***.*******.** Contatta l'inserzionista

ISFIN ImmobiliareISFIN Immobiliare
Via J.F. Kennedy 55
87036, Rende (Cosenza)
Visualizza Telefono

INFORMAZIONI SULL'IMMOBILE

  • Riferimento: 2106
  • Tipologia: Villa in Vendita
  • Locali: 8 Locali
  • Stato: Buono
  • Bagni: 3
  • Prezzo: 198.000 €
  • Prezzo al mq: 639 €
  • Riscaldamento: Autonomo
  • Giardino: Privato - 60 Mq
  • Spazio Auto: No
  • Soffitta: Si
  • Modificato il: 16/02/2026
  • Scheda: SC9555446

Stabile

  • Anno: 2008
I.P.E.
62,28Kwh/m2
C

Mappa e indirizzo

Villa sito in via padula due forni, 60
87047 San Pietro in Guarano (Cosenza)
mappa mostra l'annuncio su mappa

Galleria Fotografica

Contatta l'inserzionista

ISFIN Immobiliare

ISFIN Immobiliare di Rende propone in vendita questo immobile, contattali subito!

Annunci immobiliari a San Pietro in Guarano (CS)

Copyright Š 2026 PCase.it. All rights reserved. Sede operativa MILANO. P.IVA 08508420968 - Condizioni d'uso e privacy