Preferiti

Sponsorizza

Stampa

Villa in vendita con giardino a Roccafluvione

  • 210.000€
  • 9 locali
  • 250 mq
  • Vendesi

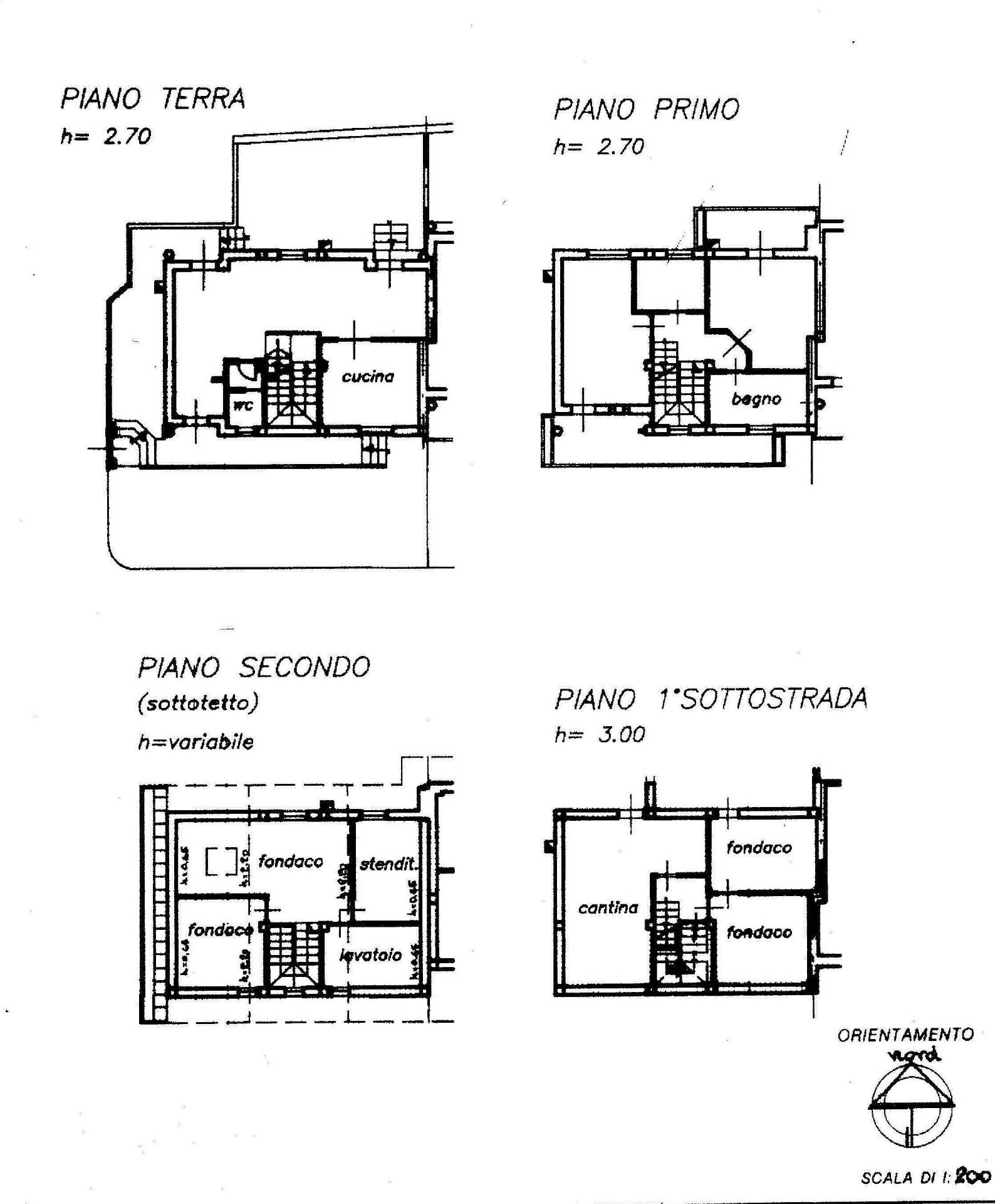
Roccafluvione (AP) - Villa Bifamiliare su pi livelli per una superficie complessiva interna di 250 mq circa oltre corte esterna balconi e terrazza.
La residenza composta da un piano primo sottostrada formato da cantina, due fondaci per una superficie di circa 56 mq, oltre ad un garage di 24 mq. Piano terra o rialzato formato da ingresso, soggiorno, cucina, bagno con antibagno per una superficie di 61 mq circa oltre due corti pertinenziali poste ai lati nord e sud delledificio che sviluppano una superficie di 36 mq circa e un balcone su tre la ti per mq 30 circa.
Al piano primo, al quale si accede tramite una scala interna, sono ubicate tre camere e un bagno che sviluppano una superficie di 56 mq circa oltre a due balconi di 20 mq circa.
Il piano sottotetto non ancora ultimato ma dotato di predisposizione di impianti composto da due fondaci, uno stenditoio con una superficie utilizzabile di 45 mq circa.
Vera opportunit! Contatta l'inserzionista

Vela Immobiliare SrlVela Immobiliare Srl
Via Asiago, 124
63074, San Benedetto del Tronto (Ascoli Piceno)
Visualizza Telefono

INFORMAZIONI SULL'IMMOBILE

  • Riferimento: 1153
  • Tipologia: Villa in Vendita
  • Locali: 9 Locali
  • Stato: Buono
  • Bagni: 3
  • Prezzo: 210.000 €
  • Prezzo al mq: 840 €
  • Riscaldamento: Autonomo
  • Giardino: Privato - 35 Mq
  • Spazio Auto: No
  • Modificato il: 30/03/2026
  • Scheda: SC9560940

Stabile

  • Anno: 1998
  • Classe Energetica: n.d.

Galleria Fotografica

Contatta l'inserzionista

Vela Immobiliare Srl

Vela Immobiliare Srl di San Benedetto del Tronto propone in vendita questo immobile, contattali subito!

Annunci immobiliari a Roccafluvione (AP)

Copyright Š 2026 PCase.it. All rights reserved. Sede operativa MILANO. P.IVA 08508420968 - Condizioni d'uso e privacy