Preferiti

Sponsorizza

Stampa

Villa in vendita con giardino a Molinella

  • trattativa riservata
  • 4 locali
  • 100 mq
  • Vendesi

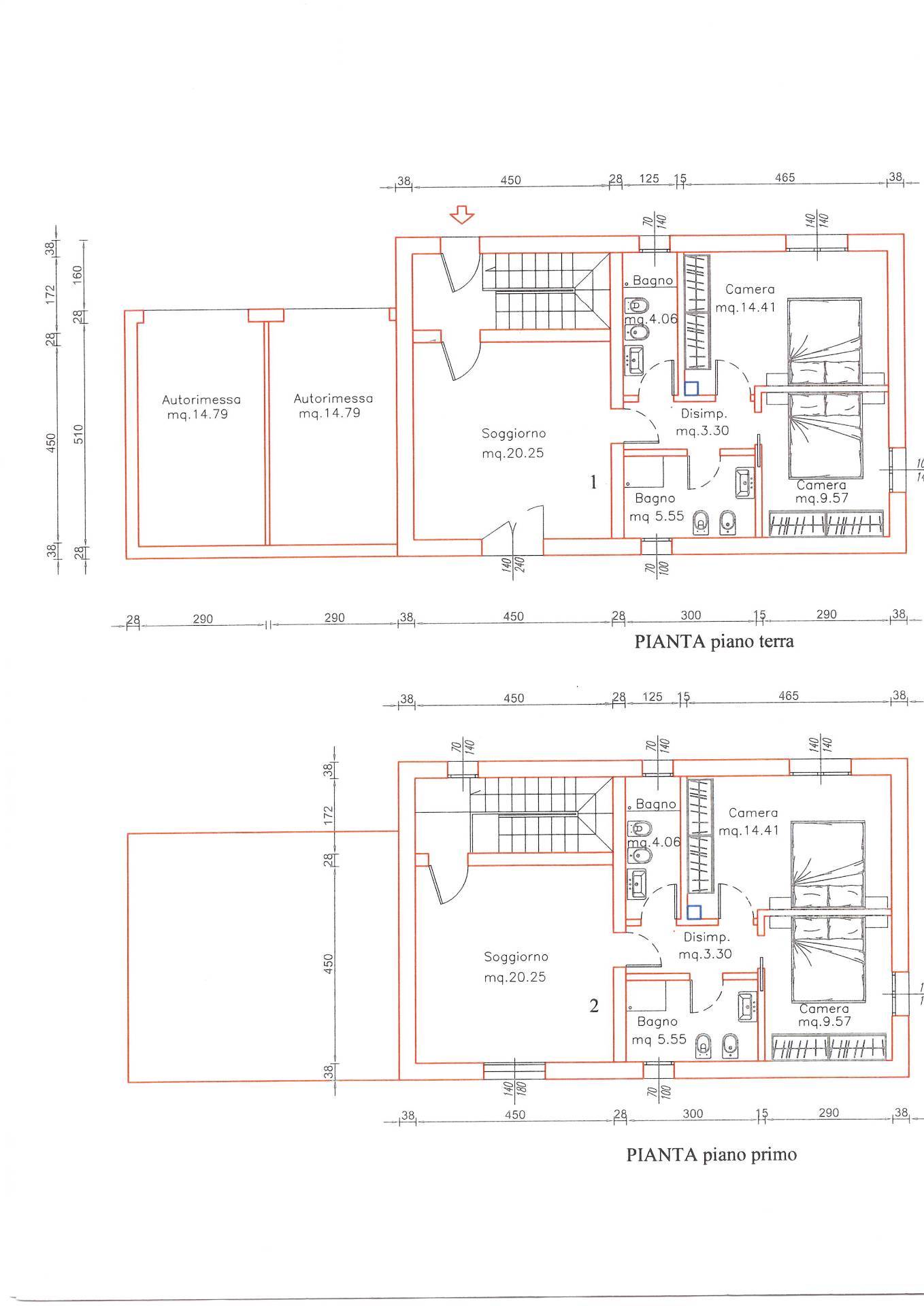
Villa Bifamiliare NUOVO DA IMPRESA - CHIAVI IN MANO cos composta: -piano terra: ingresso su ampio soggiorno con angolo cottura, due o tre camere da letto, due bagni di cui uno lavanderia.
-piano primo: ingresso su ampio soggiorno con angolo cottura, due o tre camere da letto, due bagni di cui uno lavanderia.
A completare entrambe le propriet giardini esclusivi, posto auto e garage.
Gli interni sono attualmente personalizzabili e sono previste soluzioni tecnologiche allavanguardia, efficienza energetica e design moderno.
Ulteriori informazioni verranno date in studio su appuntamento.
Prezzo a partire da 300000,00 ? Le immagini sono fornite a solo scopo illustrativo e non costituiscono rappresentazione fedele e vincolante del bene. Le immagini sono indicative e non riflettono lo stato attuale dellimmobile.
Eventuali arredi, finiture o modifiche rappresentate non sono inclusi.
Tutti i dati e le descrizioni hanno carattere informativo e non costituiscono vincolo contrattuale.
LA TUA CASA formata da professionisti di consolidata esperienza che si affiancano al cliente nella ricerca, nell'acquisto e nella locazione di un immobile con affidabilit e trasparenza.
La professionalit, la qualit, la continua tendenza al miglioramento, in sinergia con l innovazione tecnologica, sono i punti di forza della nostra impresa.
Perseguiamo costantemente la qualit secondo strategie di miglioramento continuo orientate alla massima soddisfazione del cliente, assicurando sempre efficienza e tempismo.
La ringraziamo per aver visitato il nostro sito, saremo lieti di incontrarla presso il nostro ufficio per un approfondimento delle sue esigenze. Contatta l'inserzionista

LA TUA CASA di Biondo RominaLA TUA CASA di Biondo Romina
corso Giuseppe Mazzini 151
40062, Molinella (Bologna)
Visualizza Telefono

INFORMAZIONI SULL'IMMOBILE

  • Riferimento: m995a
  • Tipologia: Villa in Vendita
  • Locali: 4 Locali (3 camere con doppi servizi)
  • Riscaldamento: Autonomo
  • Giardino: Privato
  • Modificato il: 18/03/2026
  • Scheda: SC9567402

Stabile

  • Classe Energetica: n.d.

Mappa e indirizzo

40062 Molinella (Bologna)
mappa mostra l'annuncio su mappa

Galleria Fotografica

Contatta l'inserzionista

LA TUA CASA di Biondo Romina

LA TUA CASA di Biondo Romina di Molinella propone in vendita questo immobile, contattali subito!

Annunci simili

Annunci immobiliari a Molinella (BO)

Copyright Š 2026 PCase.it. All rights reserved. Sede operativa MILANO. P.IVA 08508420968 - Condizioni d'uso e privacy