Preferiti

Sponsorizza

Stampa

Villa in vendita con giardino a Mercato Saraceno

  • 310.000€
  • 5 locali
  • 140 mq
  • Vendesi

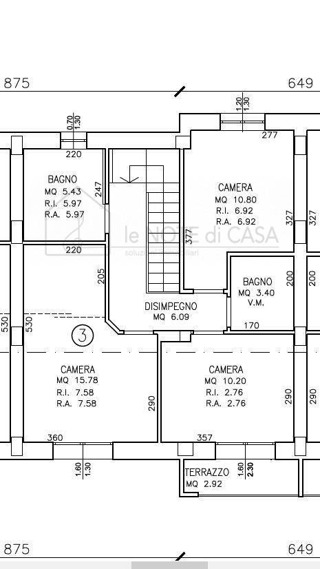
In una zona residenziale tranquilla, nella frazione di Bora, immersa nel verde e con affaccio sulle colline, proponiamo una villetta centrale di ricercato design in un piccolo complesso di 9 unit. Progettata su due livelli, il piano terra contornato sul fronte e sul retro, da un giardino privato e si compone da una zona living con soggiorno e cucina a vista, disimpegno, bagno e accesso diretto al garage.
Il piano superiore dedicato alla zona notte con tre camere (una camera matrimoniale e due camere singole) e due bagni.
La villa progettata secondo i pi moderni criteri di risparmio energetico per raggiungere il livello NZEB con una classe energetica prevista in A4 con possibilit di scelta di finiture di pregio e qualit.
Fra le dotazioni tecnologiche ventilazione meccanica, solare fotovoltaico, riscaldamento a pavimento con pompa di calore per riscaldamento e raffrescamento, impianto di allarme.
Per maggiori informazioni chiama Luca al 347 1392977 oppure scrivi a *******@******* La presente descrizione a carattere informativo e non costituisce vincolo contratttuale Contatta l'inserzionista

Le Note di CasaLe Note di Casa
Via Giordano Bruno 144
47023, Cesena (Forlė-Cesena)
Visualizza Telefono

INFORMAZIONI SULL'IMMOBILE

  • Riferimento: 74
  • Tipologia: Villa in Vendita
  • Locali: 5 Locali
  • Bagni: 3
  • Prezzo: 310.000 €
  • Prezzo al mq: 2.214 €
  • Riscaldamento: Autonomo
  • Giardino: Privato
  • Spazio Auto: Box singolo
  • Modificato il: 13/03/2025
  • Scheda: SC9549857

Stabile

  • Anno: 2024
  • Piani Totali: 2
A3

Mappa e indirizzo

47025 Mercato Saraceno (Forlė-Cesena)
mappa mostra l'annuncio su mappa

Galleria Fotografica

Contatta l'inserzionista

Le Note di Casa

Le Note di Casa di Cesena propone in vendita questo immobile, contattali subito!

Annunci immobiliari a Mercato Saraceno (FC)

Copyright Š 2026 PCase.it. All rights reserved. Sede operativa MILANO. P.IVA 08508420968 - Condizioni d'uso e privacy