Preferiti

Sponsorizza

Stampa

Villa in vendita con giardino a Asolo in via jacopo da ponte

  • 500.000€
  • 4 locali
  • 180 mq
  • Vendesi

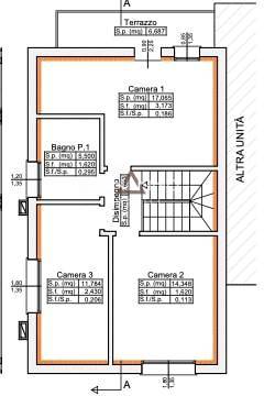
Bonanno Immobili propone in vendita bellissima villetta a schiera di testa a Casella d' Asolo (TV). (LATO OVEST) Varcando la soglia d'ingresso veniamo accolti da un ampio e luminoso soggiorno/cucina open space di 47 mq con vetrate comunicanti con il giardino esterno che costituisce a tutti gli effetti un estensione naturale della zona giorno.
Percorrendo il disimpegno troviamo un antibagno e un bagno.
Salendo le scale al primo piano troviamo una camera matrimoniale compresa di cabina armadio e terrazzo.
Ulteriore camera matrimoniale e una camera doppia; ulteriore bagno con doccia.
Al piano interrato dispone di una taverna di 22 mq, una spaziosa lavanderia e centrale termica Giardino privato di 290 mq . Consegna: Dicembre 2025 La villetta si trova in una zona tranquilla e ben servita, vicina a tutti i principali servizi e comodit.
Per maggiori info chiamare in agenzia 0423 1856238 Rif: OK109 Contatta l'inserzionista

Bonanno Immobili s.r.l.Bonanno Immobili s.r.l.
Via della Cooperazione 10
31033, Castelfranco Veneto (Treviso)
Visualizza Telefono

INFORMAZIONI SULL'IMMOBILE

  • Riferimento: OK109
  • Tipologia: Villa in Vendita
  • Locali: 4 Locali (3 camere con doppi servizi)
  • Prezzo: 500.000 €
  • Prezzo al mq: 2.778 €
  • Riscaldamento: Autonomo
  • Giardino: Privato
  • Spazio Auto: No
  • Modificato il: 19/01/2026
  • Scheda: SC9512356

Stabile

A4

Mappa e indirizzo

Villa sito in via jacopo da ponte
31011 Asolo (Treviso)
mappa mostra l'annuncio su mappa

Galleria Fotografica

Contatta l'inserzionista

Bonanno Immobili s.r.l.

Bonanno Immobili s.r.l. di Castelfranco Veneto propone in vendita questo immobile, contattali subito!

Annunci simili

Annunci immobiliari a Asolo (TV)

Copyright Š 2026 PCase.it. All rights reserved. Sede operativa MILANO. P.IVA 08508420968 - Condizioni d'uso e privacy