Preferiti

Sponsorizza

Stampa

Villa in vendita con giardino a Salzano in via suro

  • 164.000€
  • 5 locali
  • 170 mq
  • Vendesi

Porzione di trivilla centrale a Salzano al grezzo avanzato Proponiamo una porzione centrale di trivilla in centro Salzano, completamente ricostruita a nuovo dalle fondamenta, con ampi spazi interni e consegnata al grezzo avanzato.
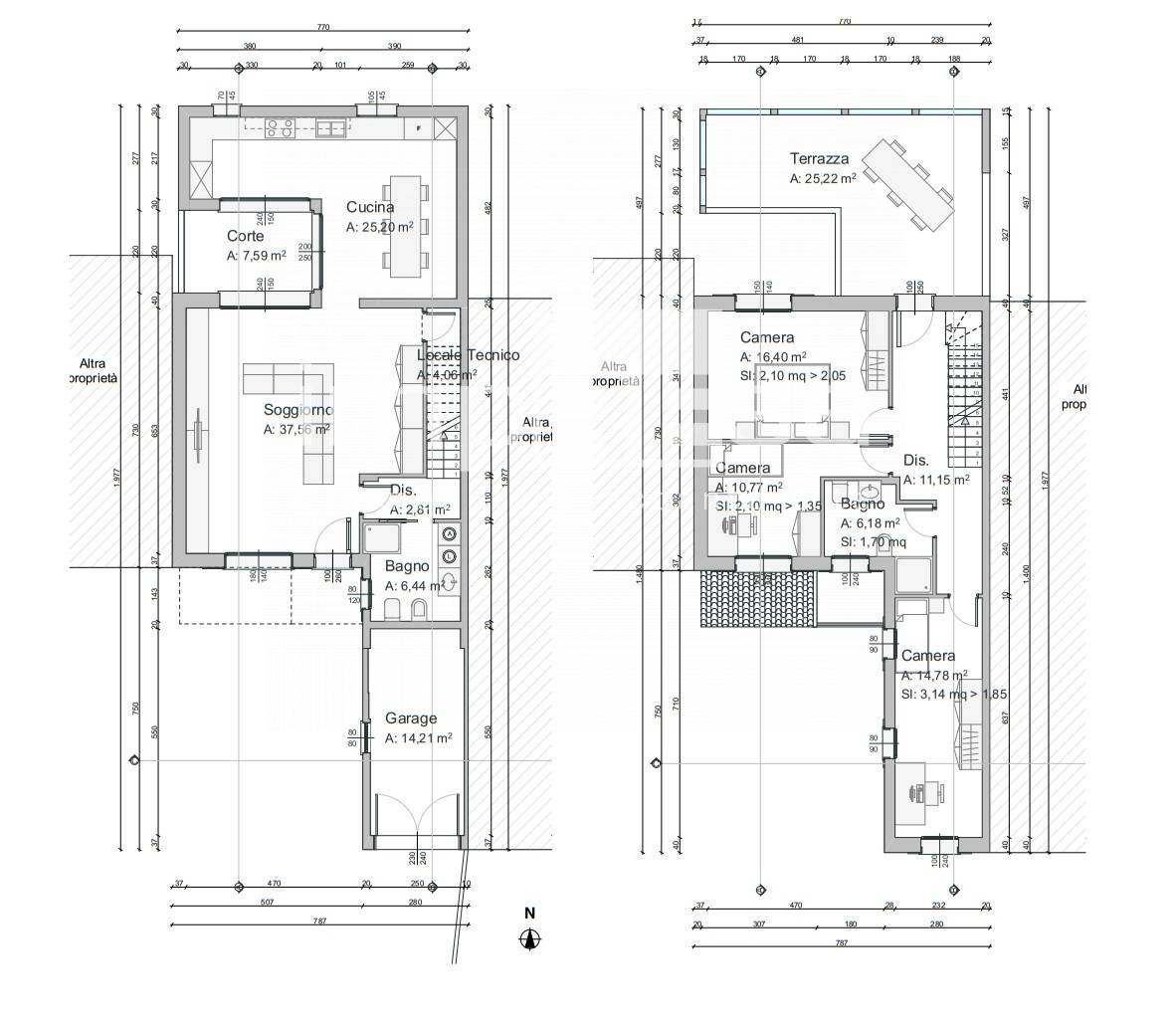
La soluzione ci accoglie con un ampia zona giorno di 37 mq dal quale abbiamo accesso ad una cucina abitabile di 25 mq provvista di loggia ed ad un bagno finestrato.
Attraverso la scala posta nella zona living possiamo raggiungere il primo piano dell'abitazione dove troviamo una camera da 10 mq, una seconda camera da 14mq, la spaziosa camera matrimoniale da 16mq, bagno finestrato dotato di poggiolo ed un ampia terrazza di 25 mq. Al secondo ed ultimo piano troviamo un piccolo sottotetto con acceso ad un'altra terrazza di 20 mq. A concludere il tutto troviamo uno scoperto privato ed un garage fuori terra di 14 mq. Consegna al grezzo avanzato che comprende: intonaci esterni, piane, casse-matte, scuri esterni, ringhiere, cancelli, fognature bianche e nere. Possibilit di modifica degli spazi interni.
Possibile recuperare il 50% delle spese sulle opere di finitura.
Per maggiori informazioni su questa porzione di trivilla a Salzano potete contattare l'agenzia immobiliare impREsa di Martellago al numero 041 2030742 citando il rif. TG134, oppure visitate il nostro sito web ***.*******.** Contatta l'inserzionista

impREsa MartellagoimpREsa Martellago
P.zza Vittoria, 77-62
30030, Martellago (Venezia)
Visualizza Telefono

INFORMAZIONI SULL'IMMOBILE

  • Riferimento: I/TG134
  • Tipologia: Villa in Vendita
  • Locali: 5 Locali
  • Bagni: 2
  • Prezzo: 164.000 €
  • Prezzo al mq: 965 €
  • Riscaldamento: Autonomo
  • Giardino: Privato - 150 Mq
  • Spazio Auto: Box singolo
  • Modificato il: 17/04/2026
  • Scheda: SC9559654

Stabile

  • Anno: 2013
  • Classe Energetica: n.d.

Mappa e indirizzo

Villa sito in via suro
30030 Salzano (Venezia)
mappa mostra l'annuncio su mappa

Galleria Fotografica

Contatta l'inserzionista

impREsa Martellago

impREsa Martellago di Martellago propone in vendita questo immobile, contattali subito!

Annunci immobiliari a Salzano (VE)

Copyright Š 2026 PCase.it. All rights reserved. Sede operativa MILANO. P.IVA 08508420968 - Condizioni d'uso e privacy