Preferiti

Sponsorizza

Stampa

Villa in vendita con giardino a Noto in s. lorenzo

  • 320.000€
  • 3 locali
  • 50 mq
  • Vendesi

Kalika appartamento a San Lorenzo proposta di vendita della Oikos Real Estate Kalika un appartamento inserito in un contesto di grande attrazione turistica infatti situato nella localit balneare di San Lorenzo, considerata i Caraibi della Sicilia.
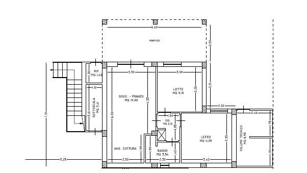
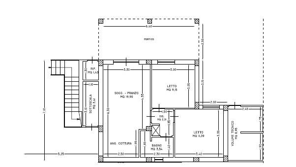
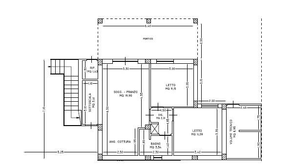
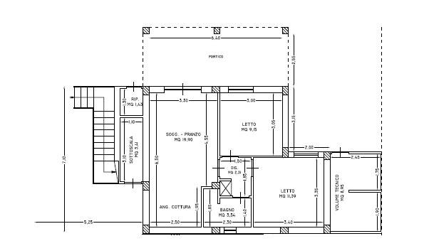
Limmobile grande circa 50 mq. Si tratta di una recente costruzione con un arredamento in stile moderno ed essenziale.
Kalika si trova al piano terra e comprende 3 vani. Una zona living con salotto-soggiorno e zona cottura, due camere da letto, una lavanderia, un ripostiglio e infine due bagni.
Unampia veranda e giardino sono i due elementi davvero interessanti.
Luoghi ideali dove condividere momenti di relax e godere delle serate fresche primaverili ed estive.
USI E POTENZIALITA Lappartamento si presta come un ottimo investimento infatti pu essere utilizzato sia come casa vacanza che per uso abitativo personale.
NEI DINTORNI Kalika si trova a pochi passi dalla spiaggia.
Dista pochi chilometri dal grazioso borgo marinaro di Marzamemi e Vendicari e circa 15 km dalla citt barocca di Noto . Dista circa 95 km dallaeroporto Fontanarossa di Catania. Contatta l'inserzionista

Oikos S.r.l.s. UnipersonaleOikos S.r.l.s. Unipersonale
Via Napoli
96017, Noto (Siracusa)
Visualizza Telefono

INFORMAZIONI SULL'IMMOBILE

  • Riferimento: 79932
  • Tipologia: Villa in Vendita
  • Locali: 3 Locali (2 camere con doppi servizi)
  • Prezzo: 320.000 €
  • Prezzo al mq: 6.400 €
  • Riscaldamento: Autonomo
  • Giardino: Privato
  • Spazio Auto: No
  • Modificato il: 22/08/2024
  • Scheda: SC9559707

Stabile

G

Mappa e indirizzo

Villa sito in s. lorenzo
96017 Noto (Siracusa)
mappa mostra l'annuncio su mappa

Galleria Fotografica

Contatta l'inserzionista

Oikos S.r.l.s. Unipersonale

Oikos S.r.l.s. Unipersonale di Noto propone in vendita questo immobile, contattali subito!

Annunci simili

Annunci immobiliari a Noto (SR)

Copyright Š 2026 PCase.it. All rights reserved. Sede operativa MILANO. P.IVA 08508420968 - Condizioni d'uso e privacy