Preferiti

Sponsorizza

Stampa

Villa in vendita con giardino a Uras in via g. garibaldi 36

  • 178.000€
  • 4 locali
  • 200 mq
  • Vendesi

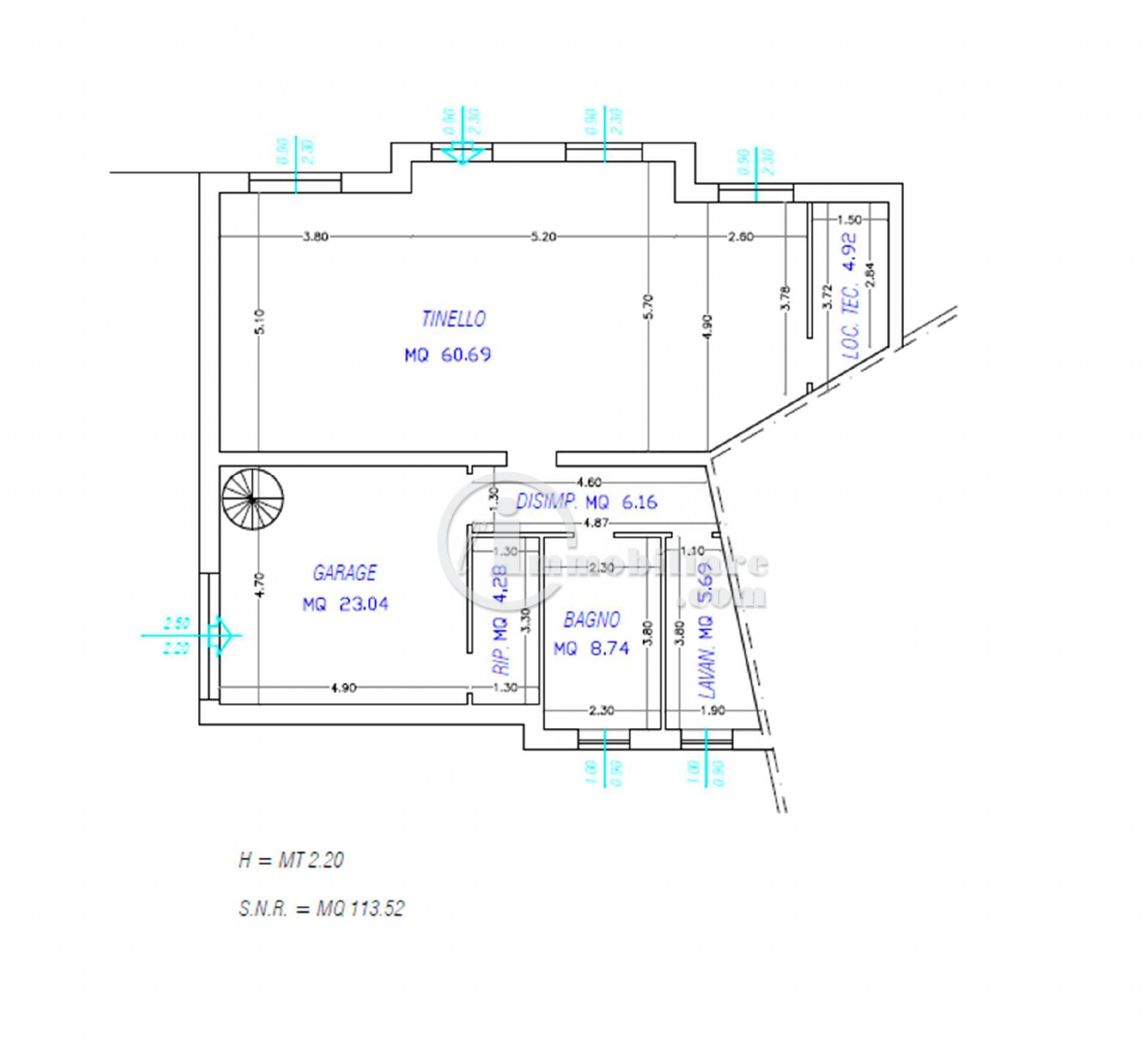
UR01 - Nel Comune di Uras (OR) vendesi villa indipendente su tre lati. La villa si sviluppa su tre livelli per una superficie non residenziale totale di 130 mq. una superficie utile abitabile complessiva di 152 mq. ed una superficie coperta di 135 mq. L'unit accessibile tramite ingresso pedonale e carrabile dal civico 36 della Via Garibaldi, e consta di un cortile anteriore ed un cortile posteriore.
La villa risale a met degli anni 90, risulta completamente rifinita sia all'interno che all'esterno.
L'immobile cos composto: Il piano seminterrato di 60 mq formato da un garage di mq. 23, un ripostiglio, un bagno con comoda doccia, una lavanderia, una zona giorno con annesso angolo cottura realizzato a penisola, camino a legna ed un locale tecnico, dove sono installati gli impianti autoclave.
Il piano terra costituito da un ampio ingresso nel soggiorno, un'attrezzata e spaziosa cucina abitabile, e un luminoso bagno con vasca idromassaggio, completano la soluzione tre spaziose camere matrimoniali adatte per ospitare fino a 6 persone.
Dalla zona giorno, attraverso una scala a chiocciola, si accede al sottotetto avente un'altezza media di 2.70 mt da personalizzare e creare un'altra zona notte.
Gli infissi esterni sono in legno con doppio vetro, persiane in legno e al piano seminterrato vi sono le tapparelle.
Per qualsiasi ulteriore informazione o appuntamento contattare il n. 02/4880196 Quanto riportato puramente indicativo e non costituisce elemento contrattuale Contatta l'inserzionista

Immobilitaliani di Luigi RapettiImmobilitaliani di Luigi Rapetti
viale Lombardia 2
20090, Chieti (Chieti)
Visualizza Telefono

INFORMAZIONI SULL'IMMOBILE

  • Riferimento: UR01
  • Tipologia: Villa in Vendita
  • Locali: 4 Locali (3 camere con doppi servizi)
  • Piano: Terra
  • Prezzo: 178.000 €
  • Prezzo al mq: 890 €
  • Riscaldamento: Autonomo
  • Giardino: Privato
  • Modificato il: 29/07/2025
  • Scheda: SC9574945

Stabile

  • Anno: 1990
  • Piano: Terra
G

Galleria Fotografica

Contatta l'inserzionista

Immobilitaliani di Luigi Rapetti

Immobilitaliani di Luigi Rapetti di Chieti propone in vendita questo immobile, contattali subito!

Annunci immobiliari a Uras (OR)

Copyright Š 2026 PCase.it. All rights reserved. Sede operativa MILANO. P.IVA 08508420968 - Condizioni d'uso e privacy