Preferiti

Sponsorizza

Stampa

Casa indipendente in vendita con giardino a Scorzè in canaletto

  • 475.000€
  • 5 locali
  • 160 mq
  • Vendesi

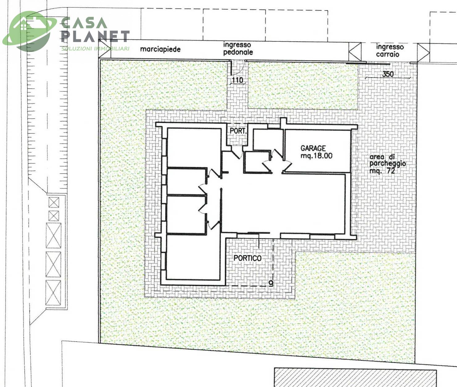
In zona compresa fra Scorz e Mogliano Veneto, in vendita bellissima singola tutta su un livello pronta per primavera Con scoperto su tutti i lati soggiorno esposto a sud, area di parcheggio di 70 mq., soggiorno con cucina a vista di oltre 47 mq., bel portico esposto a sud di 15 mq., tre camere con accesso da disimpegno, di cui due matrimoniali ed una singola, due bagni entrambi finestrati, lavanderia separata, garage singolo di 18 mq. L'abitazione di tipo singolo, disposta tutta su un livello, in classe energetica A4, con riscaldamento a pavimento, raffrescamento predisposto a split quattro zone, pompa di calore, fotovoltaico 7,5 kwh, con predisposizione per batterie di accumulo, serramenti in legno vetrocamera, e porte laccate bianche, allarme volumetrico e perimetrale predisposto, con sensori anche esterni.
Gres porcellanato in soggiorno, legno nelle camere.
Per informazioni e visite a questa bella villa singola, chiamare agenzia Casa Planet di Mogliano Veneto, al n. 041-8940162 e chiedere del rif. CP473 Contatta l'inserzionista

Casa Planet SncCasa Planet Snc
Piazza Caduti, 20
31021, Mogliano Veneto (Treviso)
Visualizza Telefono

INFORMAZIONI SULL'IMMOBILE

  • Riferimento: CP473
  • Tipologia: Casa indipendente in Vendita
  • Locali: 5 Locali
  • Piano: Terra
  • Stato: Ottimo
  • Bagni: 2
  • Prezzo: 475.000 €
  • Prezzo al mq: 2.969 €
  • Riscaldamento: Autonomo
  • Giardino: Privato - 300 Mq
  • Spazio Auto: Box singolo
  • Modificato il: 27/04/2026
  • Scheda: SC9546593

Stabile

  • Anno: 2025
  • Piano: Terra su 1 totali
I.P.E.
12Kwh/m2
A4

Mappa e indirizzo

Casa indipendente sito in canaletto
30037 Scorzè (Venezia)
mappa mostra l'annuncio su mappa

Galleria Fotografica

Contatta l'inserzionista

Casa Planet Snc

Casa Planet Snc di Mogliano Veneto propone in vendita questo immobile, contattali subito!

Annunci simili

Annunci immobiliari a Scorzè (VE)

Copyright © 2026 PCase.it. All rights reserved. Sede operativa MILANO. P.IVA 08508420968 - Condizioni d'uso e privacy