Preferiti

Sponsorizza

Stampa

Villa in vendita con giardino a Parabiago in via pilo snc

  • 549.000€
  • 5 locali
  • 300 mq
  • Vendesi

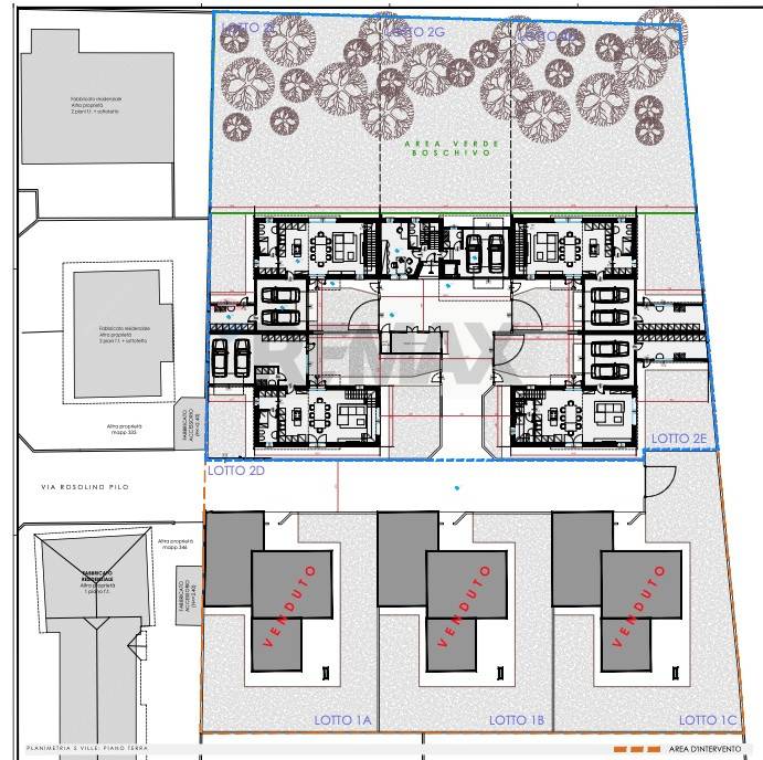
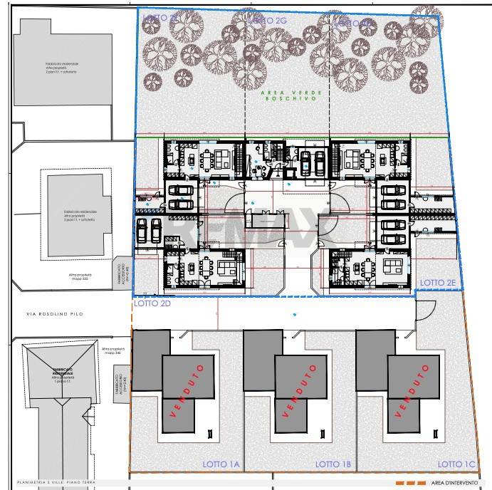
Proponiamo una elegante e moderna villa unifamiliare a Parabiago, situata in un complesso residenziale con 8 ville singole.
-L'immobile, disposto su due livelli, ed dotato di ogni comfort per garantire il massimo benessere.
-Dal box doppio in larghezza, con locale lavanderia si accede ai piani abitativi e al salottino, con bagno, del piano rialzato tramite ascensore interno.
-Al piano primo si trova zona living dove si trovano il luminoso e ampio soggiorno con cucina separata, il disimpegno e il bagno; -Al secondo piano, a cui si accede tramite una comoda scala o tramite l'ascensore interno, si trova la zona notte con due camere singole, un bagno e la grande camera padronale e bagno en suite.
-Gli ambienti sono resi ancora pi accoglienti grazie all'impianto di riscaldamento a pavimento che permette di mantenere una temperatura ideale in ogni stagione.
-La costruzione ha finiture di pregio e infissi in PVC con tripla camera, che garantiscono un'ottima coibentazione termica e acustica, possibile personalizzare le finiture con scelta all'interno di un ampio capitolato.
-Le dotazioni della villa comprendono : pannelli solari per la produzione di energia elettrica, batteria di accumulo, tapparelle rinforzate e motorizzate, impianto domotico di base con possibilit di sviluppo successivo, climatizzazione nella zona giorno e nelle tre camere, predisposizione antifurto.
Le immagini degli ambienti sono puramente esemplificative e non costituisconno vincolo contrattuale.
Classe energetica prevista alla consegna A4 CONSEGNA PREVISTA MARZO 2027 fidejussione che garantisce il rimborso, in caso di crisi dellimpresa, di tutte le somme pagate o da pagare prima del trasferimento definitivo della propriet; polizza assicurativa di durata decennale (cd. decennale postuma) che garantisce il risarcimento dei danni materiali e diretti allimmobile; La legge (***.*******.** n.14/2019) prevede lobbligo di stipulare il contratto preliminare con lintervento del notaio.
RIFERIMENTO RIB 345 VILLA F Non esitare a contattarci per avere maggiori informazioni su questo o su altri immobili gestiti dal Gruppo RE/MAX! Devi vendere un immobile? Contattaci! Facciamo parte del Network Immobiliare n. 1 al Mondo e con le nostre agenzie e i nostri Consulenti affiliati siamo in grado di valorizzare al massimo il tuo immobile, seguendoti con professionalit ed impegno fino alla vendita alle migliori condizioni e con le tempistiche pi adatte alle tue esigenze Contatta l'inserzionista

RE/MAX Class 2RE/MAX Class 2
Corso Sempione, 108
20025, Legnano (Milano)
Visualizza Telefono

INFORMAZIONI SULL'IMMOBILE

  • Riferimento: 32211031-345
  • Tipologia: Villa in Vendita
  • Locali: 5 Locali
  • Bagni: 3
  • Prezzo: 549.000 €
  • Prezzo al mq: 1.830 €
  • Riscaldamento: Autonomo
  • Giardino: Privato - 350 Mq
  • Cantina: Si
  • Modificato il: 31/03/2026
  • Scheda: SC9617405

Stabile

  • Anno: 2026
  • Classe Energetica: n.d.

Mappa e indirizzo

Villa sito in via pilo, snc
20015 Parabiago (Milano)
mappa mostra l'annuncio su mappa

Galleria Fotografica

Contatta l'inserzionista

RE/MAX Class 2

RE/MAX Class 2 di Legnano propone in vendita questo immobile, contattali subito!

Annunci simili

Annunci immobiliari a Parabiago (MI)

Copyright Š 2026 PCase.it. All rights reserved. Sede operativa MILANO. P.IVA 08508420968 - Condizioni d'uso e privacy