Preferiti

Sponsorizza

Stampa

Villa in vendita a Castiadas in le zagare

  • 300.000€
  • 4 locali
  • 120 mq
  • Vendesi

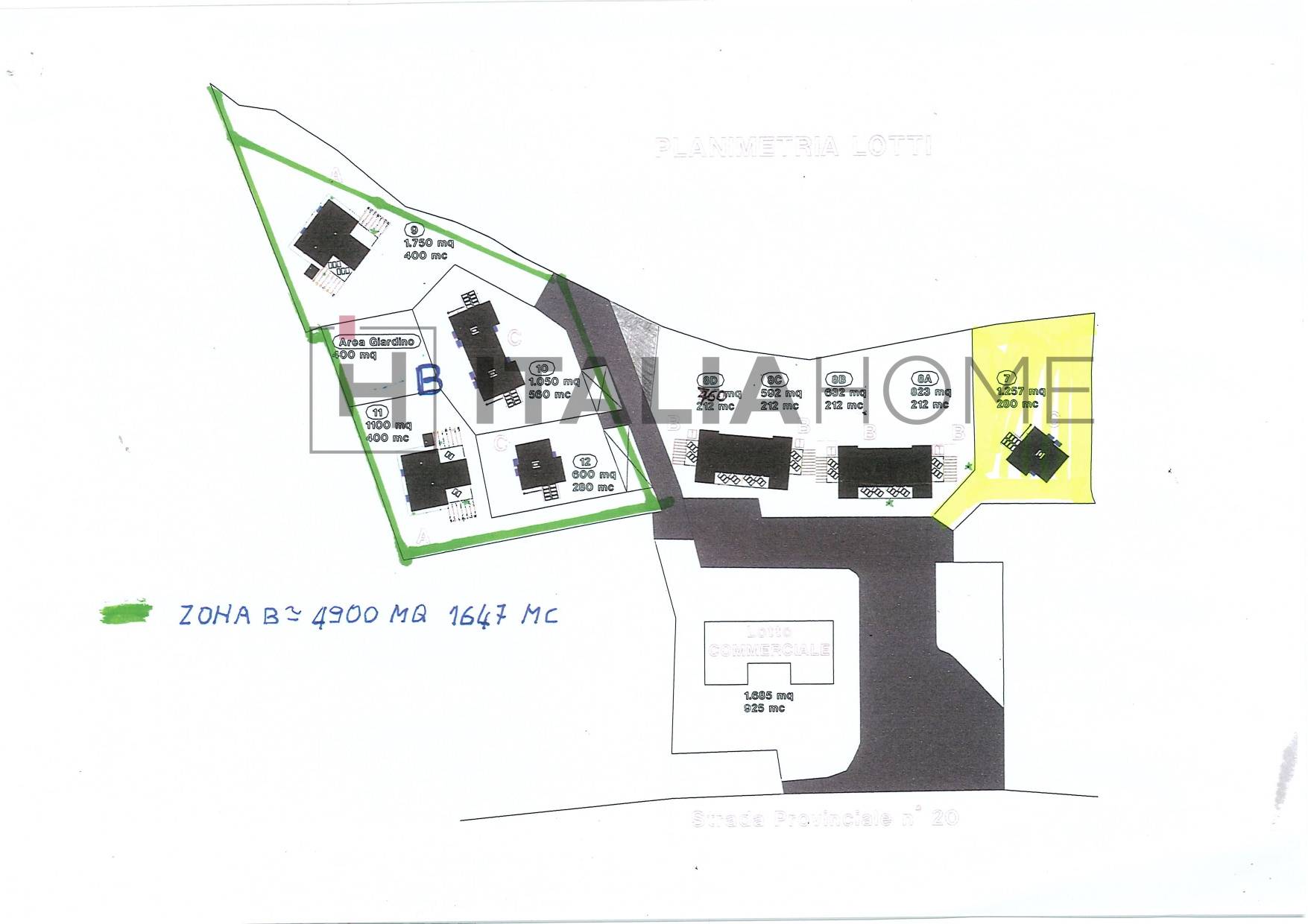
Castiadas: localit Camisa.
Lotto edificabile di circa 1250 mq con progetto approvato per la realizzazione di una villa indipendente di 280 mc unica nella sua tipologia.
Il progetto prevede un patio d'ingresso, al piano terra ampio soggiorno di circa 26 mq, una cucina abitabile, una camera matrimoniale e un bagno.
Al piano superiore sono previste due camere da letto e un bagno.
Lo spazio esterno rimanente corrisponde a circa 850 mq con possibilit di fare la piscina.
Per ulteriori informazioni oppure per concordare un sopralluogo contattare il numero +39 373 527 2688 oppure all'indirizzo mail *******@*******. Vendi anche tu la tua casa con ITALIA HOME, scarica il tuo voucher Vendita del valore di 1000 euro su ***.*******.** Contatta l'inserzionista

Italia Home S.r.l.Italia Home S.r.l.
Via Ottone Bacaredda 82
09100, Cagliari (Cagliari)
Visualizza Telefono

INFORMAZIONI SULL'IMMOBILE

  • Riferimento: T23
  • Tipologia: Villa in Vendita
  • Locali: 4 Locali (3 camere con doppi servizi)
  • Prezzo: 300.000 €
  • Prezzo al mq: 2.500 €
  • Modificato il: 12/06/2025
  • Scheda: SC9568421

Stabile

  • Classe Energetica: n.d.

Mappa e indirizzo

Villa sito in le zagare
09040 Castiadas (Sud Sardegna)
mappa mostra l'annuncio su mappa

Galleria Fotografica

Contatta l'inserzionista

Italia Home S.r.l.

Italia Home S.r.l. di Cagliari propone in vendita questo immobile, contattali subito!

Annunci immobiliari a Castiadas (SU)

Copyright Š 2026 PCase.it. All rights reserved. Sede operativa MILANO. P.IVA 08508420968 - Condizioni d'uso e privacy