Preferiti

Sponsorizza

Stampa

Villa in vendita con giardino a Brembate in via grignano

  • 489.000€
  • 5 locali
  • 385 mq
  • Vendesi

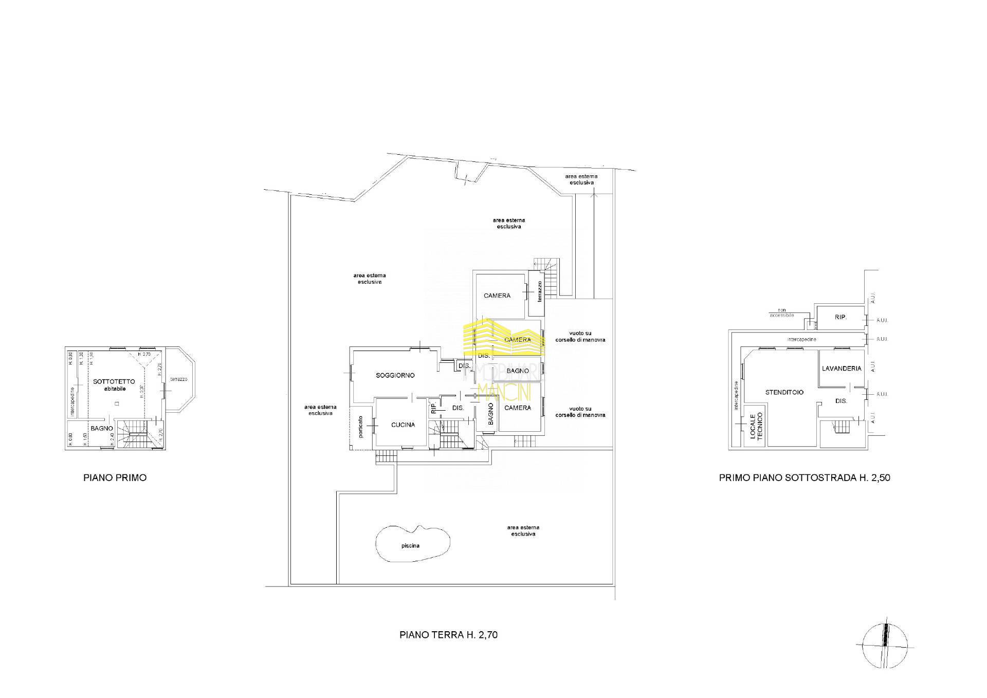
A BREMBATE, in zona semi-centrale immersa nel verde, Immobiliare Mancini propone IN ESCLUSIVA BELLISSIMA VILLA SINGOLA SU DUE LIVELLI + SEMI-INTERRATO CON TAVERNA, GIARDINO ESCLUSIVO E PISCINA + TRIPLO BOX. L'immobile dislocato su tre livelli, due fuori terra e un semi interrato, edificato nel 1998, situato in zona residenziale e tranquilla; l'INTERO LOTTO misura 910 mq circa.
La villa, in OTTIMO STATO e libera su 4 lati, composta da ingresso da GIARDINO ESCLUSIVO di circa 665 mq, soggiorno, cucina abitabile, ripostiglio, disimpegno, camera matrimoniale con accesso su terrazzo, due camere da letto e bagno, per un totale di 140 mq calpestabili interni al solo piano terra.
Tramite scala si accede al PIANO PRIMO sottotetto abitabile dove troviamo ampia zona giorno con accesso su terrazzo e bagno, per un totale escluso il terrazzo di 60 mq calpestabili.
Al PIANO SEMI-INTERRATO troviamo stenditoio/taverna con lavanderia, locale tecnico e altro ripostiglio/legnaia, per un totale di 80 mq calpestabili.
TRIPLO BOX di 80 mq calpestabili circa.
Gli infissi sono in legno doppio vetro con persiane in legno ed inferriate.
Pavimentazione in gres su tutto l'immobile e parquet in zona notte.
Riscaldamento autonomo con caloriferi in ghisa e fancoil/convettori al piano semi-interrato.
Accessoriato di CAPPOTTO DA 8 CM, TETTO VENTILATO ED ISOLATO CON PANNELLI ISOTEC, ingresso indipendente, porta blindata, tende da sole, inferriate, doppi vetri, ripostiglio, taverna/stenditoio, lavanderia, aria condizionata, piscina, sanitari sospesi, stufa/camino, basculanti elettriche.
La villa situata in una zona tranquilla e residenziale, ma allo stesso tempo vicina ai servizi principali e ai mezzi pubblici.
La sua posizione strategica permette di raggiungere facilmente anche le principali citt della Lombardia, come Milano e Bergamo.
Questa villa singola una splendida opportunit per chi cerca una residenza di prestigio e di alto livello, in una delle zone pi belle e ricercate della regione.
Con i suoi ampi spazi, le finiture di lusso e la posizione ideale, rappresenta la soluzione perfetta per chi desidera vivere in un'abitazione unica ed esclusiva.
Ideale per una famiglia numerosa o anche per due famiglie.
SE SIETE INTERESSATI NON ESITATE A CONTATTARE IMMOBILIARE MANCINI AI NUMERI 0262068566 O 3311211947, OPPURE LASCIATE UN MESSAGGIO ALLA MAIL *******@******* E VERRETE RICONTATTATI.
CI TROVATE IN VIA MAZZINI N. 70, TREZZO SULL'ADDA , CENTRO POLIFUNZIONALE "LA PIAZZA" Contatta l'inserzionista

IMMOBILIARE MANCINIIMMOBILIARE MANCINI
VIA MAZZINI 70
20056, Trezzo sull'Adda (Milano)
Visualizza Telefono

INFORMAZIONI SULL'IMMOBILE

  • Riferimento: 235
  • Tipologia: Villa in Vendita
  • Locali: 5 Locali
  • Piano: Terra
  • Stato: Ottimo
  • Bagni: 3
  • Prezzo: 489.000 €
  • Prezzo al mq: 1.270 €
  • Riscaldamento: Autonomo
  • Giardino: Privato - 665 Mq
  • Cantina: Si
  • Modificato il: 07/11/2024
  • Scheda: SC9563254

Stabile

  • Anno: 1998
  • Piano: Terra su 3 totali
  • Classe Energetica: n.d.

Mappa e indirizzo

Villa sito in via grignano
24041 Brembate (Bergamo)
mappa mostra l'annuncio su mappa

Galleria Fotografica

Contatta l'inserzionista

IMMOBILIARE MANCINI

IMMOBILIARE MANCINI di Trezzo sull'Adda propone in vendita questo immobile, contattali subito!

Annunci immobiliari a Brembate (BG)

Copyright Š 2026 PCase.it. All rights reserved. Sede operativa MILANO. P.IVA 08508420968 - Condizioni d'uso e privacy