Preferiti

Sponsorizza

Stampa

Villa in vendita con giardino a Venezia

  • 380.000€
  • 5 locali
  • 130 mq
  • Vendesi

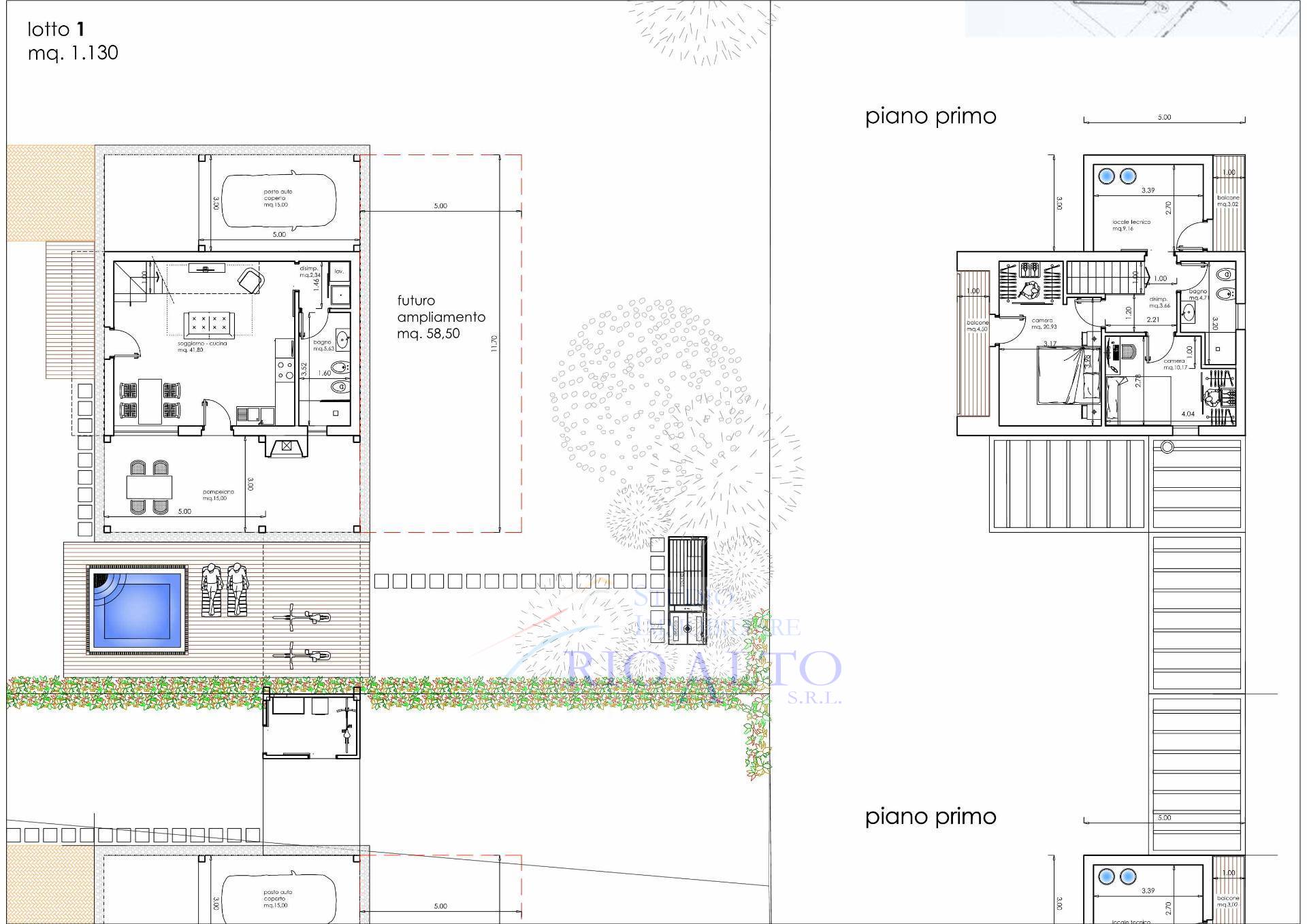
Venezia - Favaro In zona tranquilla e ben servita proponiamo villa singola in bioedilizia edificata su un lotto di oltre 1.200 mq. Labitazione si sviluppa su due livelli e offre un ambiente moderno e sostenibile, con spazi pensati per il comfort e la flessibilit.
Al piano terra troviamo un ampio soggiorno con cucina a vista e una bagno con doccia.
Al primo piano sono presenti una spaziosa camera matrimoniale con cabina armadio e una camera singola oltre al secondo bagno con doccia.
Completano la villa un box singolo e una pompeiana di circa 15 mq. Il progetto abitativo modulare e consente di ampliare in futuro la zona giorno, aggiungendo ulteriori camere oppure realizzare un piccolo appartamento indipendente al piano terra, ideale per genitori o familiari che desiderano vivere vicino mantenendo per autonomia e comodit, grazie anche al grande giardino di oltre 1.000 mq. La propriet sar predisposta per linstallazione di una piscina idromassaggio, una sauna con doccia e una casetta per attrezzi, bici o moto. Unopportunit unica per chi cerca una villa moderna, ecologica e personalizzabile, immersa nel verde ma vicina ai tutti i servizi di Mestre.
Richiesta ? 380.00 Riferimento ME002 Classe energetica A4 Contatta l'inserzionista

Studio Immobiliare Rio AltoStudio Immobiliare Rio Alto
San Polo 56
30125, Venezia (Venezia)
Visualizza Telefono

INFORMAZIONI SULL'IMMOBILE

  • Riferimento: ME002
  • Tipologia: Villa in Vendita
  • Locali: 5 Locali
  • Bagni: 2
  • Prezzo: 380.000 €
  • Prezzo al mq: 2.923 €
  • Riscaldamento: Autonomo
  • Giardino: Privato
  • Spazio Auto: Box singolo
  • Modificato il: 12/01/2026
  • Scheda: SC9546067

Stabile

  • Anno: 2026
  • Piani Totali: 2
A4

Mappa e indirizzo

30126 Venezia (Venezia)
Aeroporto-Ca' Noghera, Campalto, Carpenedo, Dese
mappa mostra l'annuncio su mappa

Galleria Fotografica

Contatta l'inserzionista

Studio Immobiliare Rio Alto

Studio Immobiliare Rio Alto di Venezia propone in vendita questo immobile, contattali subito!

Annunci immobiliari a Venezia (VE)

Copyright Š 2026 PCase.it. All rights reserved. Sede operativa MILANO. P.IVA 08508420968 - Condizioni d'uso e privacy