Preferiti

Sponsorizza

Stampa

Villa in vendita con giardino a Treviso in viale fellisent

  • 550.000€
  • 6 locali
  • 230 mq
  • Vendesi

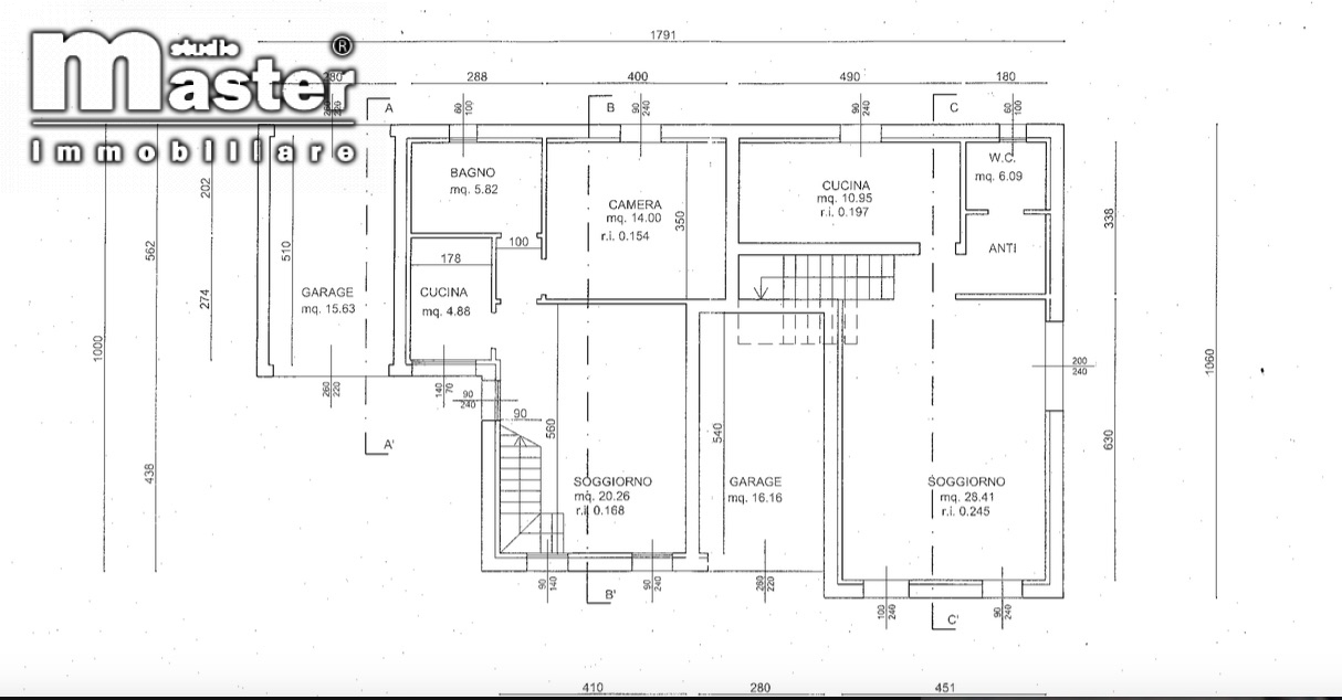
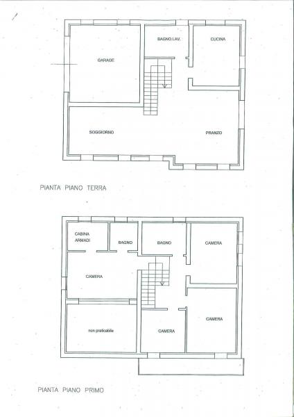
Treviso nord, villa singola di prossima realizzazione sviluppata su due piani fuori terra.
L'immobile composto da ampio soggiorno, cucina abitabile, quattro camere, tre bagni, ripostiglio e cabina armadi, terrazzo, garage doppio.
Giardino privato netto di circa 280 mq. Possibilit di personalizzazione con scelta delle finiture, ed eventualmente tecnica di costruzione (anche bioedilizia). Ottima opportunit. Contatta l'inserzionista

Studio Master ImmobiliareStudio Master Immobiliare
Via dei Lombardi n. 14
31100, Treviso (Treviso)
Visualizza Telefono

INFORMAZIONI SULL'IMMOBILE

  • Riferimento: V159
  • Tipologia: Villa in Vendita
  • Locali: 6 Locali
  • Bagni: 3
  • Prezzo: 550.000 €
  • Prezzo al mq: 2.391 €
  • Riscaldamento: Autonomo
  • Giardino: Privato - 280 Mq
  • Modificato il: 13/11/2023
  • Scheda: SC9566749

Stabile

  • Piani Totali: 2
  • Classe Energetica: Immobile non soggetto a certificazione energetica

Mappa e indirizzo

Villa sito in viale fellisent
31100 Treviso (Treviso)
Fiera, Santa Maria del Rovere, Selvana
mappa mostra l'annuncio su mappa

Galleria Fotografica

Contatta l'inserzionista

Studio Master Immobiliare

Studio Master Immobiliare di Treviso propone in vendita questo immobile, contattali subito!

Annunci simili

Annunci immobiliari a Treviso (TV)

Copyright Š 2026 PCase.it. All rights reserved. Sede operativa MILANO. P.IVA 08508420968 - Condizioni d'uso e privacy