Preferiti

Sponsorizza

Stampa

Villa in vendita con giardino a Soncino in via benzi

  • 370.000€
  • 5 locali
  • 177 mq
  • Vendesi

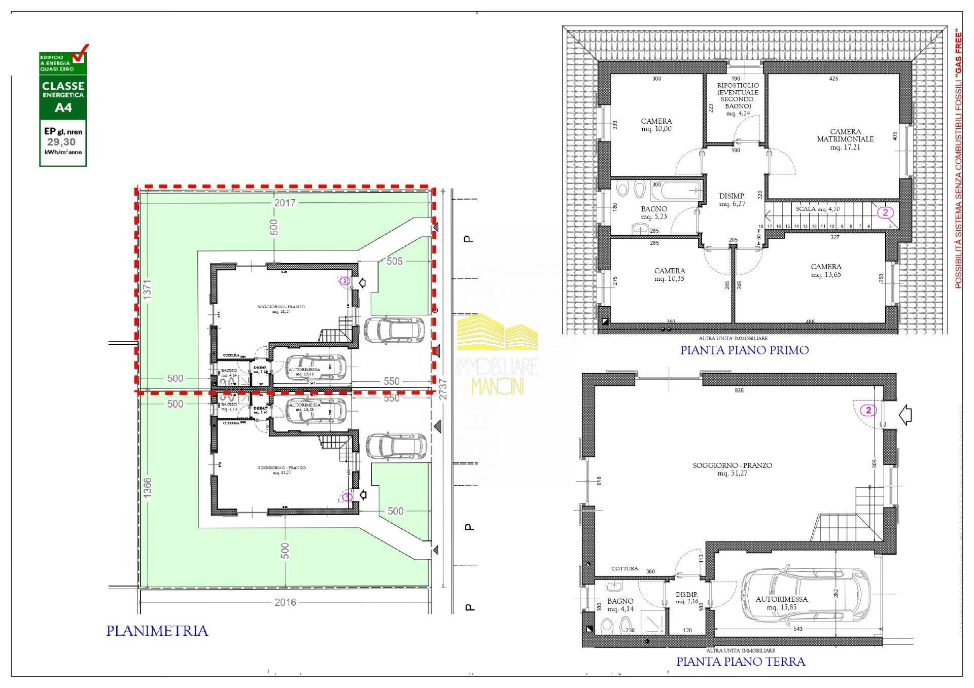
A SONCINO, in NUOVA ZONA RESIDENZIALE di prestigio, Immobiliare Mancini propone NUOVA COSTRUZIONE - BELLISSIMA PORZIONE DI VILLA BIFAMILIARE SU DUE LIVELLI CON GIARDINO ESCLUSIVO + BOX SINGOLO FUORI TERRA - IMMAGINI CAMPIONE INDICATIVE - L'immobile, di NUOVA COSTRUZIONE 2024, si trover in contesto residenziale di sole ville.
In FASE DI COSTRUZIONE e IN PRONTA CONSEGNA A DICEMBRE 2025! La villa, in CLASSE ENERGETICA "A4", composta da ingresso pedonale coperto su GIARDINO ESCLUSIVO di 189 mq, ingresso in ampia zona giorno con cucina a vista per un totale di 51 mq , disimpegno e bagno.
Tramite scala si accede al PIANO PRIMO dove troviamo ampia CAMERA MATRIMONIALE di 17 mq, disimpegno, secondo bagno, ripostiglio con possibilit di trasformazione in terzo bagno o lavanderia e tre ampie CAMERE DA LETTO.
A completare la propriet, BOX SINGOLO di 15 mq fuori terra.
Accatastamenti ed allacciamenti fuori dal prezzo di vendita, per un importo di ? 5.000,00. Questa unit abitativa sar COMPLETAMENTE INDIPENDENTE e CON ALTA POSSIBILITA' DI PERSONALIZZAZIONE.
Accessoriata di impianto fotovoltaico ampliabile, pompa di calore gi fornita con predisposizione climatizzazione estiva, riscaldamento a pavimento, predisposizione sistema di allarme.
Possibilit soluzione interamente elettrica e dotata di impianto fotovoltaico e di installare un accumulatore di corrente con il quale possibile abbattere ulteriormente i costi di gestione.
Capitolato dettagliato, con relativi riferimenti tecnici e finiture di qualit garantita e possibilit di accesso a detrazioni fiscali e mutui tassi agevolati tipo Green.
L'unit immobiliare sorger vicino le scuole, fermata del bus e AUTOSTRADA A4. E' un ottima soluzione, perfetta sia per una coppia che desidera ampi spazi sia per una famiglia che cerca una soluzione adatta alle proprie esigenze! SE SIETE INTERESSATI NON ESITATE A CONTATTARE IMMOBILIARE MANCINI AI NUMERI 0262068566 O 3311211947, OPPURE LASCIATE UN MESSAGGIO ALLA MAIL *******@******* E VERRETE RICONTATTATI.
CI TROVATE IN VIA MAZZINI N. 70, TREZZO SULL'ADDA , CENTRO POLIFUNZIONALE "LA PIAZZA". Contatta l'inserzionista

IMMOBILIARE MANCINIIMMOBILIARE MANCINI
VIA MAZZINI 70
20056, Trezzo sull'Adda (Milano)
Visualizza Telefono

INFORMAZIONI SULL'IMMOBILE

  • Riferimento: 265
  • Tipologia: Villa in Vendita
  • Locali: 5 Locali
  • Piano: Terra
  • Bagni: 3
  • Prezzo: 370.000 €
  • Prezzo al mq: 2.090 €
  • Riscaldamento: Autonomo
  • Giardino: Privato - 189 Mq
  • Spazio Auto: Box singolo
  • Modificato il: 06/05/2024
  • Scheda: SC9563263

Stabile

  • Anno: 2024
  • Piano: Terra su 2 totali
A4

Mappa e indirizzo

Villa sito in via benzi
26029 Soncino (Cremona)
mappa mostra l'annuncio su mappa

Galleria Fotografica

Contatta l'inserzionista

IMMOBILIARE MANCINI

IMMOBILIARE MANCINI di Trezzo sull'Adda propone in vendita questo immobile, contattali subito!

Annunci simili

Annunci immobiliari a Soncino (CR)

Copyright Š 2026 PCase.it. All rights reserved. Sede operativa MILANO. P.IVA 08508420968 - Condizioni d'uso e privacy