Preferiti

Sponsorizza

Stampa

Villa in vendita con giardino a Folignano in via verga

  • 300.000€
  • 10 locali
  • 372 mq
  • Vendesi

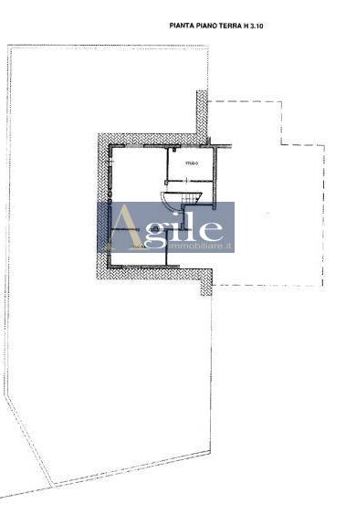
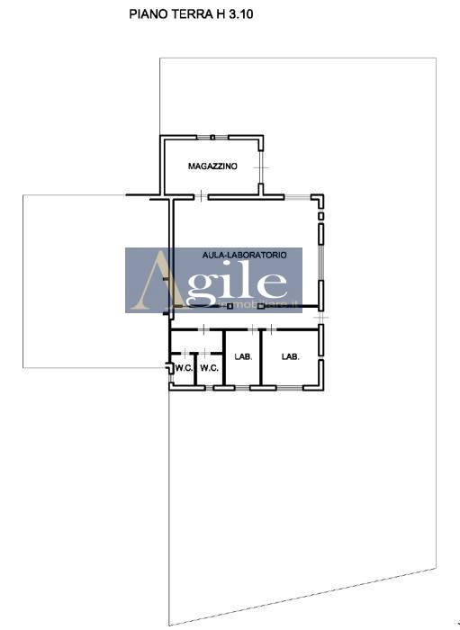
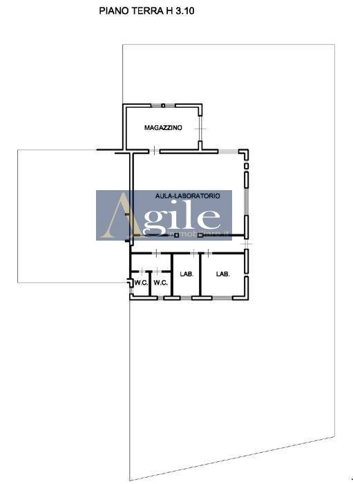
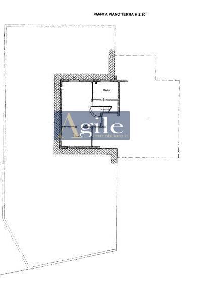
Villa a Folignano con laboratorio e corte privata zona Piane di Morro - Rif: 2449 Disposta su due livelli per complessivi 172,00 mq. circa, 1113,00 mq. circa di corte esterna privata, 76,00 mq. circa di terrazzo, e laboratorio di 161,00 mq. circa; L'unit risulta cos suddivisa : Piano terra di 115,00 mq. circa cos suddiviso: ingresso su soggiorno con camino, cucina abitabile, studio, camera studio e locale laboratorio di complessivi 161,00 mq. circa di con bagno e locale magazzino; Primo piano accessibile da una comoda scala situata sul soggiorno di 57,00 mq. circa cos suddiviso: due camere da letto matrimoniali, bagno finestrato e terrazzo accessibile da tutti i lati; Completa la prima unit una corte esterna di 1113,00 mq. circa e adibiti a giardino; L'unit necessita di ristrutturazione interna; Ottima soluzione per chi cerca una soluzione abitativa indipendente, vicina a tutti i servizi e disposta per due nuclei famigliari; Per ulteriori informazioni e per eventuali visite potete contattare il numero 0735.060012, siamo disponibili presso i nostri uffici siti a San Benedetto del Tronto in via L. Bianchi, 18 Contatta l'inserzionista

Agile ImmobiliareAgile Immobiliare
via bianchi 18
63074, San Benedetto del Tronto (Ascoli Piceno)
Visualizza Telefono

INFORMAZIONI SULL'IMMOBILE

  • Riferimento: 2449
  • Tipologia: Villa in Vendita
  • Locali: 10 Locali
  • Stato: da Ristrutturare
  • Bagni: 2
  • Prezzo: 300.000 €
  • Prezzo al mq: 806 €
  • Riscaldamento: Autonomo
  • Giardino: Privato - 150 Mq
  • Spazio Auto: Box singolo
  • Modificato il: 28/02/2024
  • Scheda: SC9561263

Stabile

  • Anno: 1970
  • Piani Totali: 2
  • Classe Energetica: n.d.

Mappa e indirizzo

Villa sito in via verga
63040 Folignano (Ascoli Piceno)
mappa mostra l'annuncio su mappa

Galleria Fotografica

Contatta l'inserzionista

Agile Immobiliare

Agile Immobiliare di San Benedetto del Tronto propone in vendita questo immobile, contattali subito!

Annunci simili

Annunci immobiliari a Folignano (AP)

Copyright Š 2026 PCase.it. All rights reserved. Sede operativa MILANO. P.IVA 08508420968 - Condizioni d'uso e privacy