Preferiti

Sponsorizza

Stampa

Villa in vendita con giardino a Corte Brugnatella in via ferriere 68

  • 295.000€
  • 9 locali
  • 300 mq
  • Vendesi

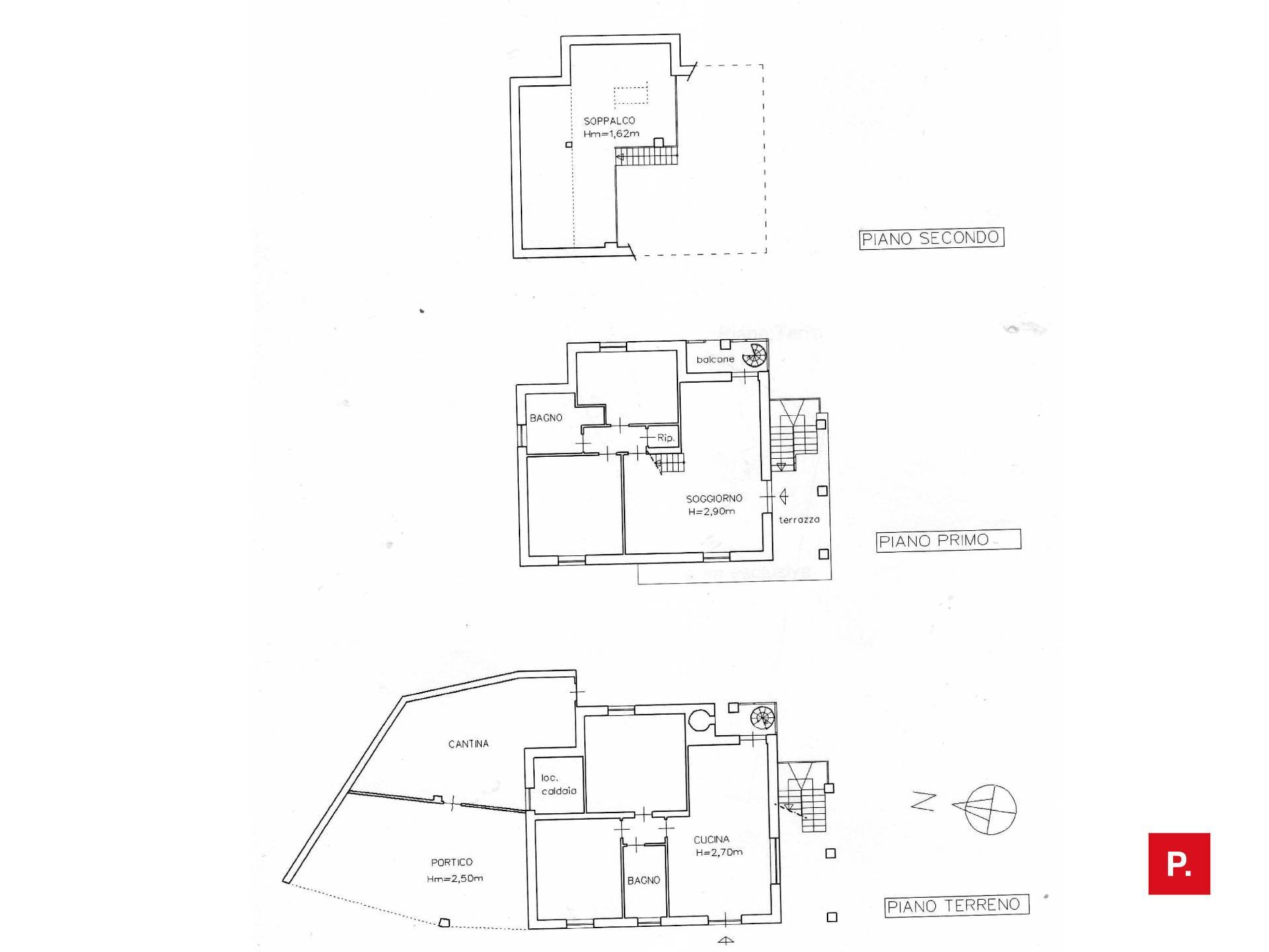
La villa si estende su una superficie totale di 300 metri quadrati e si sviluppa su tre piani.
Al primo terra si trovano un ampio soggiorno, una cucina abitabile e 2 camere da letto 1 bagno, mentre al piano superiore sono presenti 2 camere da letto 1 bagno ed una spaziosa mansarda con idromassaggio.
In totale, la villa dispone di nove locali, quattro camere da letto e due bagni, il che la rende perfetta per ospitare una famiglia numerosa o per accogliere amici e parenti.
L'immobile dotato di un impianto di riscaldamento autonomo a radiatori o pannelli radianti alimentato a pellet autopulente e con tecnologia che permette di verificare la temperatura di ogni piano con app via telefono, una scelta ecologica e conveniente per garantire il massimo comfort e ridurre i costi di gestione.
Gli impianti dell'immobile sono gi predisposti per un'eventuale frazionamento in 2 unit abitative indipendenti.
Lo stato di conservazione della villa ottimo, grazie anche alle finiture di alta qualit e agli infissi a camera d'aria che garantiscono un'ottima efficienza energetica.
La villa dotata di un sistema di allarme e cancello elettrico per garantire la massima sicurezza e tranquillit ai suoi abitanti.
La presenza di un balcone e di un terrazzo permette di godere appieno della vista panoramica sulla valle circostante e di trascorrere piacevoli momenti all'aperto.
La villa circondata da un ampio giardino privato, ideale per organizzare pranzi e cene all'aperto o per rilassarsi in mezzo alla natura.
La propriet include anche un magazzino e tre posti auto coperti, in modo da poter parcheggiare i propri veicoli al riparo dalle intemperie.
In sintesi, questa villa in vendita a Corte Brugnatella un'oasi di pace e tranquillit, perfetta per chi desidera una casa spaziosa, confortevole e immersa nella natura.
Grazie alla sua posizione strategica, ideale sia come residenza principale che come casa vacanze per godere delle bellezze della Val Trebbia. Contatta l'inserzionista

Immobiliare Petrella srlImmobiliare Petrella srl
Corso Garibaldi 43
81055, Santa Maria Capua Vetere (Caserta)
Visualizza Telefono

INFORMAZIONI SULL'IMMOBILE

  • Riferimento: A8605
  • Tipologia: Villa in Vendita
  • Locali: 9 Locali
  • Stato: Ottimo
  • Bagni: 2
  • Prezzo: 295.000 €
  • Prezzo al mq: 983 €
  • Riscaldamento: Autonomo
  • Giardino: Privato - 300 Mq
  • Modificato il: 22/11/2023
  • Scheda: SC9568687

Stabile

  • Piani Totali: 3
  • Classe Energetica: n.d.

Mappa e indirizzo

Villa sito in via ferriere, 68
29020 Corte Brugnatella (Piacenza)
mappa mostra l'annuncio su mappa

Galleria Fotografica

Contatta l'inserzionista

Immobiliare Petrella srl

Immobiliare Petrella srl di Santa Maria Capua Vetere propone in vendita questo immobile, contattali subito!

Annunci immobiliari a Corte Brugnatella (PC)

Copyright Š 2026 PCase.it. All rights reserved. Sede operativa MILANO. P.IVA 08508420968 - Condizioni d'uso e privacy