Preferiti

Sponsorizza

Stampa

Villa in vendita con giardino a Casirate d'Adda in via san francesco d'assisi

  • 385.000€
  • 5 locali
  • 215 mq
  • Vendesi

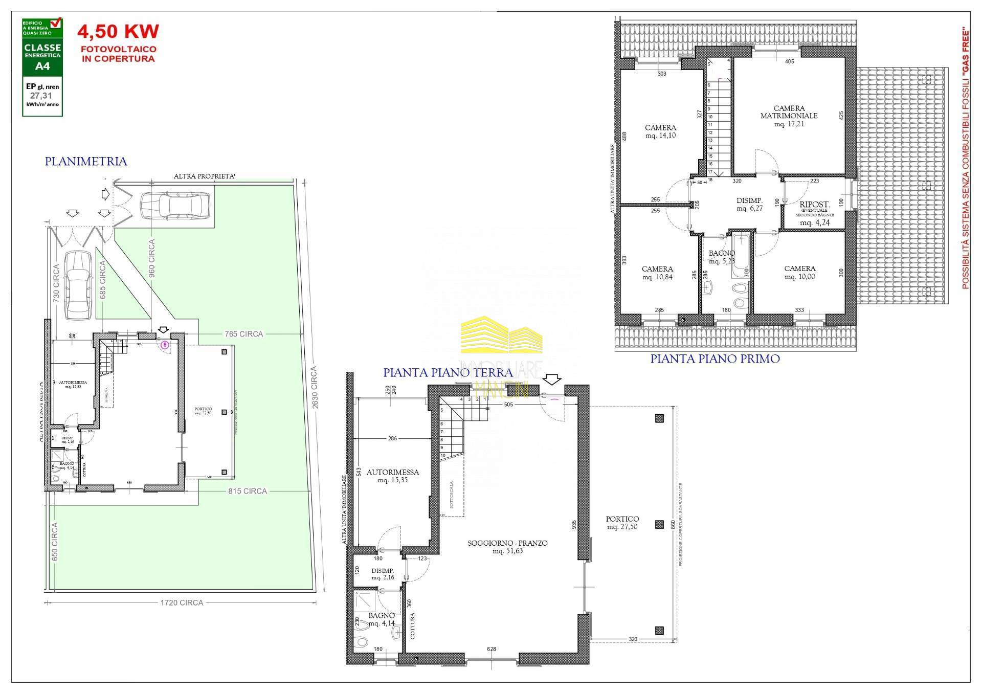
A CASIRATE D'ADDA, in NUOVA ZONA RESIDENZIALE di prestigio, Immobiliare Mancini propone NUOVA COSTRUZIONE - BELLISSIMA VILLA SU DUE LIVELLI CON GIARDINO ESCLUSIVO + BOX SINGOLO FUORI TERRA.
- IMMAGINI CAMPIONE INDICATIVE - L'immobile, di NUOVA COSTRUZIONE 2024, si trover in contesto residenziale di sole ville.
In FASE DI COSTRUZIONE e IN PRONTA CONSEGNA IN PRIMAVERA 2027! La villa, in CLASSE ENERGETICA "A4", composta da ingresso in ampio e luminoso soggiorno e ampia cucina A VISTA con sbarco su PORTICO di 27 mq e GIARDINO ESCLUSIVO di 308 mq circa che circonda l'immobile su tre lati, disimpegno e bagno.
Tramite scala si accede al PIANO PRIMO dove troviamo CAMERA MATRIMONIALE, tre camere da letto, bagno e ripostiglio adibito ad eventuale lavanderia/secondo bagno.
A completare la propriet, BOX SINGOLO di 14 mq fuori terra con accesso diretto all'immobile.
Accatastamenti ed allacciamenti fuori dal prezzo di vendita, per un importo di ? 5.000,00. Questa unit abitativa sar COMPLETAMENTE INDIPENDENTE e CON ALTA POSSIBILITA' DI PERSONALIZZAZIONE.
Accessoriata di impianto fotovoltaico ampliabile, pompa di calore gi fornita con predisposizione climatizzazione estiva, riscaldamento a pavimento, predisposizione sistema di allarme.
Possibilit soluzione interamente elettrica e dotata di impianto fotovoltaico e di installare un accumulatore di corrente con il quale possibile abbattere ulteriormente i costi di gestione.
Capitolato dettagliato, con relativi riferimenti tecnici e finiture di qualit garantita e possibilit di accesso a detrazioni fiscali e mutui tassi agevolati tipo Green.
L'unit immobiliare sorger vicino le scuole, fermata del bus e AUTOSTRADA A4. E' un ottima soluzione, perfetta sia per una coppia che desidera ampi spazi sia per una famiglia che cerca una soluzione adatta alle proprie esigenze! SE SIETE INTERESSATI NON ESITATE A CONTATTARE IMMOBILIARE MANCINI AI NUMERI 0262068566 O 3311211947, OPPURE LASCIATE UN MESSAGGIO ALLA MAIL *******@******* E VERRETE RICONTATTATI.
CI TROVATE IN VIA MAZZINI N. 70, TREZZO SULL'ADDA , CENTRO POLIFUNZIONALE "LA PIAZZA". Contatta l'inserzionista

IMMOBILIARE MANCINIIMMOBILIARE MANCINI
VIA MAZZINI 70
20056, Trezzo sull'Adda (Milano)
Visualizza Telefono

INFORMAZIONI SULL'IMMOBILE

  • Riferimento: 331
  • Tipologia: Villa in Vendita
  • Locali: 5 Locali
  • Bagni: 3
  • Prezzo: 385.000 €
  • Prezzo al mq: 1.791 €
  • Riscaldamento: Autonomo
  • Giardino: Privato - 308 Mq
  • Spazio Auto: Box singolo
  • Modificato il: 28/06/2025
  • Scheda: SC9563273

Stabile

  • Anno: 2024
  • Piani Totali: 2
I.P.E.
11,2Kwh/m2
A4

Mappa e indirizzo

Villa sito in via san francesco d'assisi
24040 Casirate d'Adda (Bergamo)
mappa mostra l'annuncio su mappa

Galleria Fotografica

Contatta l'inserzionista

IMMOBILIARE MANCINI

IMMOBILIARE MANCINI di Trezzo sull'Adda propone in vendita questo immobile, contattali subito!

Annunci simili

Annunci immobiliari a Casirate d'Adda (BG)

Copyright Š 2026 PCase.it. All rights reserved. Sede operativa MILANO. P.IVA 08508420968 - Condizioni d'uso e privacy