Preferiti

Sponsorizza

Stampa

Villa in vendita con giardino a Caerano di San Marco

  • 380.000€
  • 4 locali
  • 188 mq
  • Vendesi

RESIDENCE SANT'ANTONIO - DETRAZIONI PER INTERVENTI ANTISISMICI SISMA BONUS (PARI AD EURO 50.000,00) In un ampio spazio protetto sorger linnovativo complesso residenziale destinato a ridisegnare la qualit della vita dell area. Disposte su due piani in altezza, le abitazioni godono tutte di luminosi affacci verande e/o terrazzi su giardini privati e sono concepite per accogliere i migliori comfort dellabitare contemporaneo.
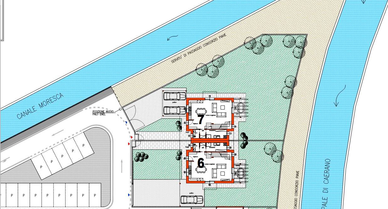
Il Residence si trova in unarea strategica del comune di Caerano di San Marco, a pochi passi dagli impianti sportivi, dall'asilo nido, dalle scuole elementari, dalla posta.
Supermercato e farmacia sono a 600 metri.
Adiacente alla Strada Provinciale che collega Caerano con Cornuda, Bassano, Castelfranco e Montebelluna, siete in posizione strategica per la vostra mobilit! Un contesto urbano vivo e dinamico servito dalla strada regionale 348 Feltrina e comodo per i collegamenti rapidi in direzione di Castelfranco Veneto, Feltre, Bassano e Treviso.
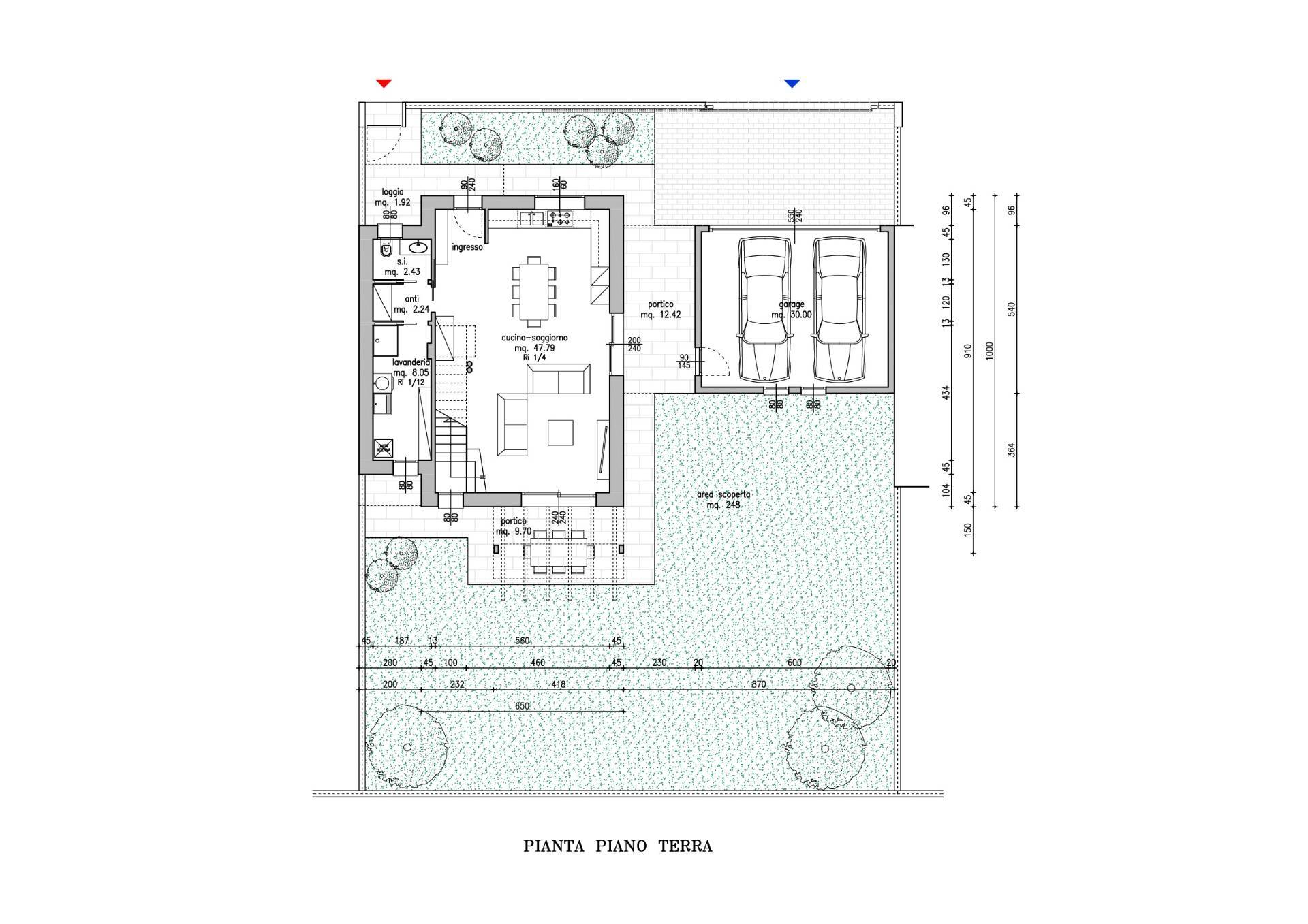
L'intervento si definisce con la realizzazione di 5=(cinque)unit abitative, che vista la loro esposizione e distribuzione interna, si possono considerare delle vere e proprie abitazioni singole.
Ciascuna unit si svilupper su due piani fuori terra con giardino esclusivo e ampio porticato prospiciente la zona giorno e il terrazzo della camera matrimoniale, a protezione da sole e intemperie.
Gli spazi comuni Laccesso alle unit sar mediante una strada privata comune, lungo il canale a nord del complesso, spazio comune dotato di parcheggi privati esclusivi esterni alla propria unit. Ingresso, soggiorno, cucina, bagno e lavanderia al piano terra, tre camere, corridoio e bagno al piano primo saranno in pavimento vinilico eterogeneo di grande formato che si caratterizza per la sua stabilit dimensionale.
Star.k un LVT di nuova generazione, armato e caricato con minerali CaCo3, tutto d'un pezzo, dotato di un pannello estruso che lo rende semirigido ma flessibile, forte e stabile anche se sottoposto a forti sbalzi di temperatura, realizzato secondo la nuova tecnologia SPC. Provvisto di sottofondo acustico pre-accoppiato, non teme l'umidit.
disponibile in decori effetto legno o effetto materico.
Nel bagno al piano primo e lavanderia al piano terra le pareti saranno gres porcellanato di prima scelta dimensioni 60x30cm con rivestimento sulle pareti interno doccia per un' altezza di cm 220 e restanti cm 150. Il servizio igienico al piano terra e il bagno al piano primo saranno in microresina a tuttaltezza, per le pareti non piastrellate, colore a scelta, la scala interna sar a vista, con struttura e parapetto metallico verniciato bianco e gradini in legno della stessa essenza del pavimento della zona notte.
I battiscopa saranno in legno multistrato sezione mm 75x10 impiallacciati in tinta con serramenti o pavimenti.
Le pareti e i soffitti dell'abitazione saranno tinteggiate con tre mani di tempera traspirante, colore a scelta.
Gli impianti previsti per labitazione in oggetto consentono di ottemperare a quanto richiesto dalle normative vigenti in materia di fonti rinnovabili.
Grazie infatti alla contestuale installazione della pompa di calore condensata ad aria esterna (ricorrendo quindi ad energia di origine aerotermica) e allinstallazione dellimpianto fotovoltaico, labitazione raggiunger elevati standard di efficienza energetica, con classificazione energetica A4. Lunit immobiliare si presenta quindi gi da ora in grado di rispondere pienamente alle esigenze di risparmio energetico che col passare degli anni diventeranno sempre pi pressanti.
Per ottenere un risparmio di energia ancora maggiore sar installato un impianto fotovoltaico.
Sar realizzata la predisposizione per la Tv satellitare in ogni fabbricato.
In caso di mancanza di energia elettrica la zona giorno, e la zona notte, saranno dotati di lampade di emergenza con autonomia di un' ora. I termostati ambiente... Contatta l'inserzionista

Casanet s.a.s.Casanet s.a.s.
piazza Oberkochen, 21
31044, Pozzallo (Ragusa)
Visualizza Telefono

INFORMAZIONI SULL'IMMOBILE

  • Riferimento: 3680-1
  • Tipologia: Villa in Vendita
  • Locali: 4 Locali (3 camere e 3 bagni)
  • Prezzo: 380.000 €
  • Prezzo al mq: 2.021 €
  • Riscaldamento: Autonomo
  • Giardino: Privato - 480 Mq
  • Modificato il: 07/02/2025
  • Scheda: SC9571030

Stabile

  • Anno: 2023
  • Piani Totali: 2
A3

Galleria Fotografica

Contatta l'inserzionista

Casanet s.a.s.

Casanet s.a.s. di Pozzallo propone in vendita questo immobile, contattali subito!

Annunci immobiliari a Caerano di San Marco (TV)

Copyright Š 2026 PCase.it. All rights reserved. Sede operativa MILANO. P.IVA 08508420968 - Condizioni d'uso e privacy